Eladó felújított ház - Üllő
- INGYENES HIRDETÉS FELADÁS
Ingatlan adatai
- Eladó vagy kiadó:Eladó
- Település:Üllő
- Kategória:Ház
- Alkategória:Családi ház
- Alapterület:160 m2
- Telekterület:543 m2
- Csere is:Nem
- Hirdető:Cég
- Élő videón megtekinthető:Nem
- Építés éve:1980
- Szobaszám:5 + 2 fél
- Állapot:Felújított
- Hány szintes az ingatlan:nincs megadva
- Tetőtér:nincs megadva
- Komfortosság:nincs megadva
- Pince:nincs megadva
- Parkolási lehetőség:nincs megadva
- Fűtés:Gáz (cirko)
- Bútorozottság:nincs megadva
- Fényviszony:nincs megadva
- Tájolás:nincs megadva
- Kilátás:nincs megadva
- Internet:nincs megadva
- Klíma:nincs megadva
- Akadálymentesített:nincs megadva
- Energiatanúsítvány:nincs megadva
- Villany:nincs megadva
- Víz:nincs megadva
- Gáz:nincs megadva
- Csatorna:nincs megadva
- Kapcsolatfelvétel

István Ivanics
+36-(70)-422-2567
Mondd meg a hirdetőnek, hogy a megveszLAK-on találtad a hirdetést.
Hitel ajánlatok
Ingatlan hirdetés leírása
ÜLLŐN KÉTGENERÁCIÓS CSALÁDI HÁZ + ÜZLETHELYISÉG!
Eladásra kínálunk Üllő egyik nyugodt, mégis kiválóan megközelíthető részén egy sokoldalú lehetőségeket rejtő, kétgenerációs családi házat, 543 m²-es telken, különálló, 40 m²-es üzlethelyiséggel. Az 1980-ban épült ingatlan 2019-ben jelentős felújításon és bővítésen esett át, melynek során korszerű műszaki megoldásokkal és praktikus térkialakítással tették még élhetőbbé. a garázs fölé könnyűszerkezetes ráépítés készült, így az ingatlan ideális választás nagycsaládosoknak, összeköltözőknek, illetve akár vállalkozás indítására is.
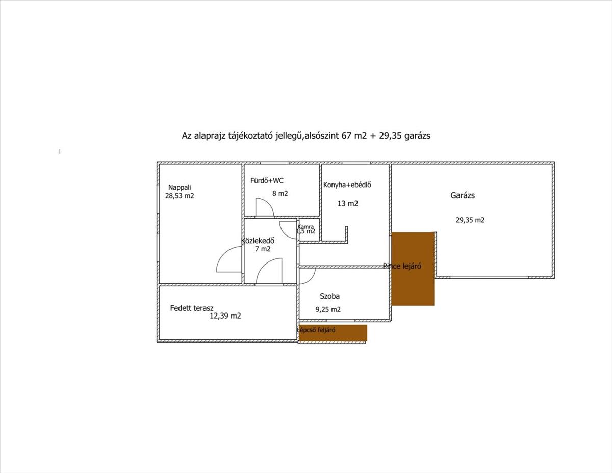
A főépület alsó szintje (67 m²) teljes körű felújításon esett át: tágas nappali, hálószoba, konyha étkezővel és kamrával, fürdőszoba WC-vel, közlekedő és egy hangulatos fedett terasz kapott helyet. a felújítás során új, redőnnyel és szúnyoghálóval ellátott nyílászárók kerültek beépítésre, megújultak a burkolatok, valamint kondenzációs kazán és hűtő-fűtő klíma biztosítja a komfortot.
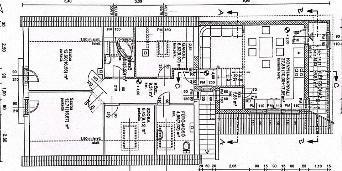
A felső szint (93 m²) egy tágas amerikai konyhás nappalival, két teljes és két félszobával, fürdőszobával, külön háztartási helyiséggel, valamint galériával rendelkezik. Itt is korszerű műszaki tartalom található: 3 rétegű műanyag nyílászárók, kondenzációs kazán, réz villanyhálózat és hűtő-fűtő klíma.
Az ingatlan további előnyei közé tartozik a teljes alápincézés, a 29 m²-es garázs, a 10 cm-es dryvit szigetelés, a vegyes tetőfedés (cserép és zsindely), az ipari áram, a fúrt kút, valamint a külön mérőórák, amelyek lehetővé teszik a két lakrész gazdaságos fenntartását.
A telken található egy különálló, 40 m²-es, téglaépítésű üzlethelyiség is, amely jelenleg lakásként funkcionál. Konyha étkezővel, szoba, fürdőszoba, külön wc, konvektoros fűtés, hűtő-fűtő klíma és villanybojler teszi teljes értékűvé – kiváló lehetőség vállalkozásra, kiadásra.
Az elhelyezkedés kiváló: a buszmegálló mindössze 2 perc sétára található, míg iskola, óvoda és bevásárlási lehetőségek 5–10 percen belül elérhetők.
Az ingatlanhoz teljes körű ügyintézést, kedvezményes ügyvédi hátteret és gyors hitelügyintézést is biztosítunk.
Ha olyan otthont keres, amely több generáció számára is ideális, vagy befektetési és vállalkozási lehetőséget kínál egy helyen, ezt az ingatlant mindenképpen érdemes megtekinteni. Várom hívását, egyeztessünk időpontot!
(Hivatkozási szám: m126648) FIX 3% lakáshitelre megvehető
Tetszett ez az eladó Üllői felújított 5 egész és 2 fél szobás családi ház? Hívd fel a hirdetőt most, és tudj meg mindent erről az eladó családi házról! Ha gondolod nézelődj tovább az eladó ház Üllő oldal hirdetései között. Ennek az eladó háznak az ára 135000000 Ft és mivel az alapterülete 160 négyzetméter, ezért az átlagos négyzetméterára 843750 HUF/m2.
Az eladó házak menüpontban további hirdetések között is böngészhetsz. Ha van kedved, akkor böngészhetsz a István Ivanics összes hirdetése között.

