Eladó jó állapotú ház - Üllő
- INGYENES HIRDETÉS FELADÁS
Ingatlan adatai
- Eladó vagy kiadó:Eladó
- Település:Üllő
- Kategória:Ház
- Alkategória:Családi ház
- Alapterület:103 m2
- Telekterület:1050 m2
- Csere is:Nem
- Hirdető:Cég
- Élő videón megtekinthető:Nem
- Építés éve:1972
- Szobaszám:2 + 2 fél
- Állapot:Jó állapotú
- Hány szintes az ingatlan:Földszintes
- Tetőtér:nincs megadva
- Komfortosság:nincs megadva
- Pince:nincs megadva
- Parkolási lehetőség:Udvaron
- Fűtés:Gáz (cirko)
- Bútorozottság:nincs megadva
- Fényviszony:Napfényes
- Tájolás:nincs megadva
- Kilátás:nincs megadva
- Internet:nincs megadva
- Klíma:Van
- Akadálymentesített:nincs megadva
- Energiatanúsítvány:nincs megadva
- Villany:nincs megadva
- Víz:nincs megadva
- Gáz:nincs megadva
- Csatorna:nincs megadva
- Kapcsolatfelvétel

Alföldi Attila
+36-(30)-790-8866
Mondd meg a hirdetőnek, hogy a megveszLAK-on találtad a hirdetést.
Referencia szám: M322928
Hitel ajánlatok
Ingatlan hirdetés leírása
Eladó Ház, Üllő, Eladó jó állapotú ház - Üllő
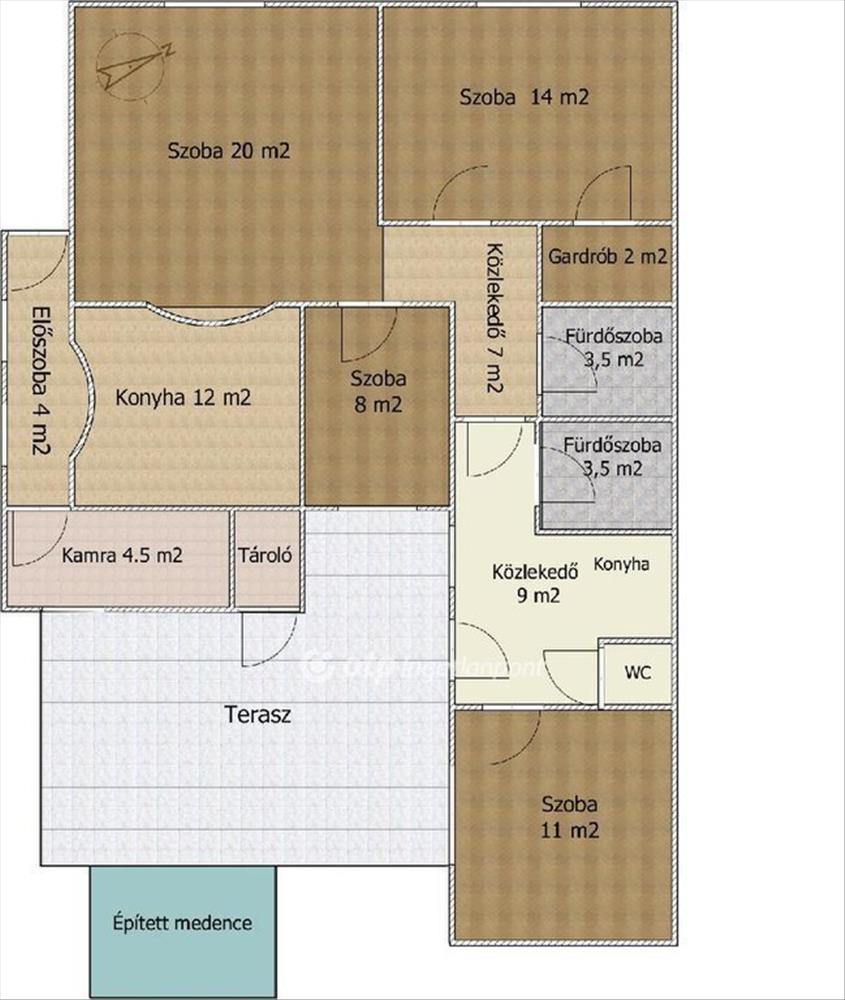
Pest megyében Üllőn eladó egy csendes nívós környéken lévő, 103 m2-s 2+2 félszobás felújított, duplakomfortos, családi ház amely egy1050 m2-s telken helyezkedik el. Állapot: Szigetelt falak, esztétikus betoncserép fedés, frissen felújított belső terek. Az ingatlan egy ajtó beépítésével kétgenerációs házzá alakítható át. Kérem nézze meg az alaprajzot.
Fűtés-hűtés: Gazdaságos gáz-cirkó és hűtő fűtő klíma.
Kert és extrák: a parkosított telken egy épített kismedence várja a nyári felfrissülést. a nagy méretű terasz lehetőséget teremt a grillezésekre, pihenésre. a tárolást melléképület az autók parkolását saját garázs biztosítja.
A környék infrastruktúrája kiváló! ! ! Minden ami számit pár perc sétával elérhető. Beleértve a vasút állómást is. Teljes körű ügyintézéssel állunk az eladók és a vevők rendelkezésére! a kínálatunkból választott ingatlan finanszírozásához kedvezményes hitel- konstrukciókat kínálunk. Az adásvételi szerződés megkötéséhez igény szerint megbízható ügyvédi közreműködést biztosítunk, és segítséget nyújtunk az adásvételhez kapcsolódó ügyek intézéséhez. Kérdés, mutatás esetén hívjon bizalommal! Ref. Szám:M322928 Az ingatlan megfelel a kedvezményes hitelek felvételére is. Beleértve a 3%-s osp hitelt is.
Referencia szám: m322928 FIX 3% lakáshitelre megvehető
Tetszett ez az eladó Üllői jó állapotú 2 egész és 2 fél szobás családi ház? Hívd fel a hirdetőt most, és tudj meg mindent erről az eladó családi házról! Ha gondolod nézelődj tovább az eladó ház Üllő oldal hirdetései között. Ennek az eladó háznak az ára 95000000 Ft és mivel az alapterülete 103 négyzetméter, ezért az átlagos négyzetméterára 922330 HUF/m2.
Az eladó házak menüpontban további hirdetések között is böngészhetsz. Ha van kedved, akkor böngészhetsz a Alföldi Attila összes hirdetése között, vagy akár a/az OTPip Budapest I. kerület Zsolt utca 6 - OTP Ingatlanpont Iroda összes hirdetése között is.

