Eladó újszerű állapotú ház Vágáshuta
| Kedvencbe | Megosztás | Árfigyelő |
| Kedvezményes lakáshitel ajánlatok | ||
| 299 000 000 HUF | ||
Ingatlan adatai
- Eladó vagy kiadó:Eladó
- Település:Vágáshuta
- Kategória:Ház
- Alkategória:Családi ház
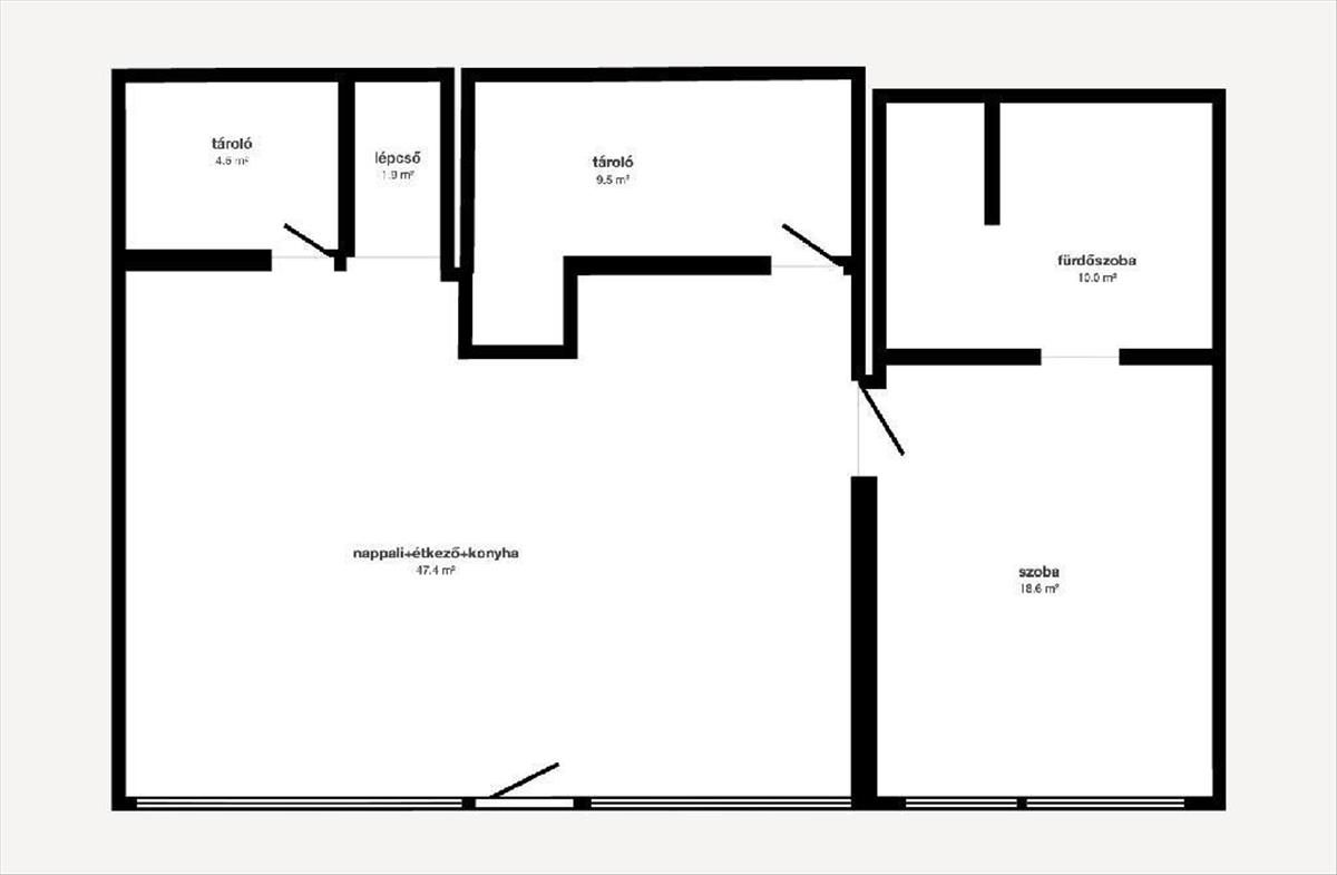
- Alapterület:160 m2
- Telekterület:1301 m2
- Csere is:Nem
- Hirdető:Cég
- Élő videón megtekinthető:Nem
- Építés éve:2024
- Szobaszám:3
- Állapot:Újszerű, kitűnő
- Hány szintes az ingatlan:2 szintes
- Tetőtér:nincs megadva
- Komfortosság:nincs megadva
- Parkolási lehetőség:Udvaron
- Fűtés:Hőszivattyús
- Bútorozottság:nincs megadva
- Fényviszony:Napfényes
- Tájolás:nincs megadva
- Kilátás:nincs megadva
- Internet:nincs megadva
- Klíma:Van
- Akadálymentesített:nincs megadva
- Energiatanúsítvány:nincs megadva
- Villany:nincs megadva
- Víz:nincs megadva
- Gáz:nincs megadva
- Csatorna:nincs megadva
- Üzenetküldés
- Hívás

Referencia szám: M316945

Hitel ajánlat
Ingatlan hirdetés leírása
Eladó Ház, Vágáshuta
Eladó prémium lakóház vágáshután! Még egy ilyen ingatlannal biztosan nem fog találkozni a piacon! Az egyedi tervezésű, luxus kivitelezésű épület jelenleg vendégházként működik, ugyanakkor tökéletesen alkalmas elegáns, modern családi otthonnak is. a Zempléni hegyvidék legexkluzívabb településén, a festői Vágáshután kínál páratlan kényelmet és teljes nyugalmat.Az eladási ár tartalmazza a teljes bútorzatot, gépeket, berendezéseket. a 1301 négyzetméteres telken álló prémium ingatlan lenyűgöző panorámát kínál. a 2024-ben átadott, 160 négyzetméteres hasznos alapterületű ház impozáns vasbeton szerkezettel, hat méter belmagasságú nappalival és három olyan szobával rendelkezik, amelyek mindegyike saját fürdőszobát kapott. a háromrétegű, hőszigetelt, alumínium tokos nyílászárók elsőrangú hővédelmet biztosítanak. Műszaki tartalmát illetően a ház minden részlete a modern technológiai színvonalat képviseli. a fűtést és a meleg vizet hőszivattyú adja, a vasbeton szerkezetbe integrált fűtési rendszer hosszú ideig tartja a meleget. a 15 kW-os napelem rendszer még ad-vesz mérővel működik. a központi légtechnika és a klíma egész évben kellemes hőérzetet biztosít. Kamerarendszer gondoskodik a biztonságról. a wellness élményt a Wellis jakuzzi és az elektromos finn szauna adja. a házi szennyvízmű élő kultúrás, öntisztuló technológiával működik. Az okos otthon rendszer távolról vezérelhető, beleértve a fűtést, a hűtést, a légkondicionálást, a jacuzzit és a szaunát. a teljes porta körbekerített, a házhoz végig szilárd betonút vezet, így minden körülmény adott a gondtalan használathoz. Vágáshuta mindössze negyven állandó lakossal rendelkezik, így garantált a teljes csend és nyugalom. Ez az ingatlan kivételes lehetőség mindazok számára, akik a természet közelségében keresik a luxust, a letisztult modern kényelmet és az abszolút békét. Jöjjön el, és nézzük meg együtt! Garantáltan nem fog csalódni!
OTP Banki hátterünknek köszönhetően finanszírozási igényekben (pl. Otthon Start Hitelprogram, Babaváró, Falusi csok, CSOK Plusz, Lakáshitel, Személyi kölcsön stb. ), Illetve biztosítások tekintetében is díjmentesen, soron kívüli ügyintézéssel segítem ügyfeleim! Referenciaszám: m316945 Hitel.hu - Hasonlítsa össze a bankok lakáshitel ajánlatait

