Eladó felújítandó ház Zagyvarékas
| Kedvencbe | Megosztás | Árfigyelő |
| FIX 3% lakáshitelre megvehető | ||
| 33 990 000 HUF | ||
Ingatlan adatai
- Eladó vagy kiadó:Eladó
- Település:Zagyvarékas
- Kategória:Ház
- Alkategória:Családi ház
- Alapterület:180 m2
- Telekterület:848 m2
- Csere is:Nem
- Hirdető:Cég
- Élő videón megtekinthető:Nem
- Építés éve:1979
- Szobaszám:5
- Állapot:Felújítandó
- Hány szintes az ingatlan:2 szintes
- Tetőtér:nincs megadva
- Komfortosság:nincs megadva
- Parkolási lehetőség:Teremgarázsban
- Fűtés:Házközponti
- Bútorozottság:nincs megadva
- Fényviszony:Jó
- Tájolás:nincs megadva
- Kilátás:nincs megadva
- Internet:nincs megadva
- Klíma:Van
- Akadálymentesített:nincs megadva
- Energiatanúsítvány:nincs megadva
- Villany:nincs megadva
- Víz:nincs megadva
- Gáz:nincs megadva
- Csatorna:nincs megadva
- Üzenetküldés
- Hívás

Czinegéné Deák Judit
Mondd meg a hirdetőnek, hogy a megveszLAK-on találtad a hirdetést.
Referencia szám: M300951

Hitel ajánlat
Ingatlan hirdetés leírása
Eladó Ház, Zagyvarékas
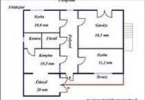
Jász-Nagykun Szolnok Vármegye. Eladásra kínálunk Zagyvarékas központi részén egy 180 nm-es téglából épült 5 szobás családi házat, ami 848 nm-es telken fekszik.Figyelem, a családi ház akár két külön lakásként is használható!
A földszinten található 2 tágas szoba, konyha nagy étkezővel (amerikai konyhás nappalinak is ideális), kamra, zuhanyzós fürdőszoba WC-vel, garázs. Az emelet külső lépcsővel közelíthető meg, így akár külön lakrész is lehet. Hatalmas, világos nappalit találunk itt klímával. Ezenkívül 2 szoba, kádas fürdőszoba külön WC-vel, konyha és kamra is kialakításra került.
A fürdőszobák teljeskörűen fel lettek újítva.
A házban központi fűtés gondoskodik a kellemes hőmérsékletről. Az udvar rendezett, részben térkövezett, növényekkel beültetett. a kerítés pár éve lett kicserélve.
Extrák: Fúrt kút, ipari áram, grillező- és bográcsozóhely. Több melléképület is találunk, melyeket állattartásra, műhelynek és nyári konyhának használtak.
Tökéletes választás nagycsaládosoknak, összeköltözőknek, vagy akár vállalkozásra is! a ház egyes részei felújítást igényelnek, de hatalmas lehetőségeket rejtenek magukban!
Zagyvarékas Szolnoktól 10 km távolságra, a Zagyva folyó mellett található. Tömegközlekedését a Volánbusz és a vasút is biztosítja. Rendelkezik bölcsödével, óvodával és iskolával is. Kulturális rendezvényeket a Művelődési Ház és Könyvtár biztosítja.
Amennyiben az OTP Ingatlanpont kínálatából választ ingatlant, úgy kedvezőbb kamatozású OTP Bank hitelhez juthat.
Vállalom Babaváró kölcsön, CSOK Plusz illetve Otthon Start Program ügyintézését is!
Ingatlant kereső ügyfeleink részére szolgáltatásaink és az ingatlanvásárlással, ingatlan felújítással kapcsolatos hitel ügyintézése ingyenes.
Az adás-vétel lebonyolításához korrekt ügyvédi közreműködést tudunk biztosítunk. FIX 3% lakáshitelre megvehető

