Eladó felújítandó ház Zagyvarékas
| Kedvencbe | Megosztás | Árfigyelő |
| FIX 3% lakáshitelre megvehető | ||
| 33 990 000 HUF | ||
Ingatlan adatai
- Eladó vagy kiadó:Eladó
- Település:Zagyvarékas
- Kategória:Ház
- Alkategória:Családi ház
- Alapterület:180 m2
- Telekterület:848 m2
- Csere is:Nem
- Hirdető:Cég
- Élő videón megtekinthető:Nem
- Építés éve:1979
- Szobaszám:5
- Állapot:Felújítandó
- Hány szintes az ingatlan:2 szintes
- Tetőtér:nincs megadva
- Komfortosság:nincs megadva
- Parkolási lehetőség:Teremgarázsban
- Fűtés:Házközponti
- Bútorozottság:nincs megadva
- Fényviszony:Jó
- Tájolás:nincs megadva
- Kilátás:nincs megadva
- Internet:nincs megadva
- Klíma:Van
- Akadálymentesített:nincs megadva
- Energiatanúsítvány:nincs megadva
- Villany:nincs megadva
- Víz:nincs megadva
- Gáz:nincs megadva
- Csatorna:nincs megadva
- Üzenetküldés
- Hívás

Gombkötőné Turi Zsuzsanna
Mondd meg a hirdetőnek, hogy a megveszLAK-on találtad a hirdetést.
Referencia szám: M300951

Hitel ajánlat
Ingatlan hirdetés leírása
Eladó Ház, Zagyvarékas
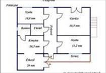
Zagyvarékas központi részén kínálunk megvásárlásra egy 180 nm-es téglából épült 5 szobás családi házat, 848 nm-es telken.A két szintes családi ház, akár két külön lakásként is használható!
A földszinten található 2 tágas szoba, konyha nagy étkezővel (amerikai konyhás nappalinak is ideális), kamra, zuhanyzós fürdőszoba WC-vel, garázs. Az emelet külső lépcsővel közelíthető meg, így akár külön lakrész is lehet. Hatalmas, világos nappalit találunk itt klímával. Ezenkívül 2 szoba, kádas fürdőszoba külön WC-vel, konyha és kamra is kialakításra került.
A fürdőszobák teljes körűen fel lettek újítva.
A otthon melegéről központi fűtés gondoskodik. Az udvar rendezett, részben térkövezett, növényekkel beültetett. a kerítés pár éve lett kicserélve.
Extrák: Fúrt kút, ipari áram, grillező- és bográcsozóhely. Több melléképület is találunk, melyeket állattartásra, műhelynek és nyári konyhának használtak.
Tökéletes választás nagycsaládosoknak, összeköltözőknek, vagy akár vállalkozásra is! a ház egyes részei felújítást igényelnek, de hatalmas lehetőségeket rejtenek magukban!
Zagyvarékas Szolnoktól 10 km távolságra, a Zagyva folyó mellett található. Tömegközlekedését a Volánbusz és a vasút is biztosítja. Rendelkezik bölcsődével, óvodával és iskolával is. Kulturális rendezvényeket a Művelődési Ház és Könyvtár biztosítja.
A vásárlás finanszírozásában az OTP kedvező hitelkonstrukcióival, csok+, és támogatott hitel lehetőségével, vagy akár a babváró hitel ilyen célra történő felhasználásával tud segíteni. Használja ki a lehetőséget, hogy kedvezőbb kamatozású OTP Bank hitelhez juthat, ha az OTP Ingatlanpont kínálatából vásárol. Ingatlant kereső ügyfeleink részére szolgáltatásaink és az ingatlanvásárlással, ingatlan felújítással kapcsolatos hitel ügyintézése ingyenes. Az adás-vétel lebonyolításához korrekt ügyvédi közreműködést tudunk ajánlani. Amennyiben felkeltettem érdeklődését, kérem, hívjon bizalommal, nézzük meg együtt akár hétvégén is! FIX 3% lakáshitelre megvehető

