- >>
- eladó ingatlanok
- >>
- eladó ház
- >>
- eladó ház Zagyvarékas
- >>
Eladó felújítandó ház - Zagyvarékas
| | |||
| Kedvencnek jelölöm | Elküldöm emailben | Megosztás | Szavazás |
| FIX 3% lakáshitelre megvehető | |||
| 35 990 000 HUF | |||
Ingatlan adatai
- Eladó vagy kiadó:Eladó
- Település:Zagyvarékas
- Kategória:Ház
- Alkategória:Családi ház
- Alapterület:180 m2
- Telekterület:848 m2
- Csere is:Nem
- Hirdető:Cég
- Élő videón megtekinthető:Nem
- Építés éve:1979
- Szobaszám:5
- Állapot:Felújítandó
- Hány szintes az ingatlan:2 szintes
- Tetőtér:nincs megadva
- Komfortosság:nincs megadva
- Parkolási lehetőség:Teremgarázsban
- Fűtés:Házközponti
- Bútorozottság:nincs megadva
- Fényviszony:Jó
- Tájolás:nincs megadva
- Kilátás:nincs megadva
- Internet:nincs megadva
- Klíma:Van
- Akadálymentesített:nincs megadva
- Energiatanúsítvány:nincs megadva
- Villany:nincs megadva
- Víz:nincs megadva
- Gáz:nincs megadva
- Csatorna:nincs megadva
- Üzenetküldés
- Hívás

Ferencziné Jordán Györgyi
Mondd meg a hirdetőnek, hogy a megveszLAK-on találtad a hirdetést.
Referencia szám: M300951

Hitel ajánlat
Ingatlan hirdetés leírása
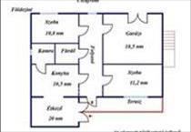
Eladó Ház, Zagyvarékas
Jász-Nagykun Szolnok Vármegye. Eladásra kínálunk Zagyvarékas központi részén egy 180 nm-es téglából épült 5 szobás családi házat, ami 848 nm-es telken fekszik. a családi ház akár két külön lakásként is használható!A földszinten található 2 tágas szoba, konyha nagy étkezővel (amerikai konyhás nappalinak is ideális), kamra, zuhanyzós fürdőszoba WC-vel, garázs. Az emelet külső lépcsővel közelíthető meg, így akár külön lakrész is lehet. Hatalmas, világos nappalit találunk itt klímával. Ezenkívül 2 szoba, kádas fürdőszoba külön WC-vel, konyha és kamra is kialakításra került.
A fürdőszobák teljeskörűen fel lettek újítva.
A házban központi fűtés gondoskodik a kellemes hőmérsékletről. Az udvar rendezett, részben térkövezett, növényekkel beültetett. a kerítés pár éve lett kicserélve.
Extrák: Fúrt kút, ipari áram, grillező- és bográcsozóhely. Több melléképület is találunk, melyeket állattartásra, műhelynek és nyári konyhának használtak.
Tökéletes választás nagycsaládosoknak, összeköltözőknek, vagy akár vállalkozásra is! a ház egyes részei felújítást igényelnek, de hatalmas lehetőségeket rejtenek magukban!
A vásárlás finanszírozásában az OTP kedvező hitelkonstrukcióval, CSOK és a támogatott hitel lehetőségével, vagy akár a Babaváró hitel ilyen célra történő felhasználásával tud segíteni. Használja ki a lehetőséget, hogy kedvezőbb kamatozású OTP Bank hitelhez juthat, ha az OTP Ingatlanpont kínálatából vásárol. Ingatlant kereső ügyfeleink részére szolgáltatásaink és az ingatlanvásárlással, ingatlan felújítással kapcsolatos hitel ügyintézése ingyenes. Amennyiben felkeltettem érdeklődését, kérem hívjon bizalommal! FIX 3% lakáshitelre megvehető

