Eladó új építésű ház - Zalaegerszeg
- INGYENES HIRDETÉS FELADÁS
Ingatlan adatai
- Feladva:4 hónapja a megveszLAK-on
- Eladó vagy kiadó:Eladó
- Település:Zalaegerszeg
- Kategória:Ház
- Alkategória:Családi ház
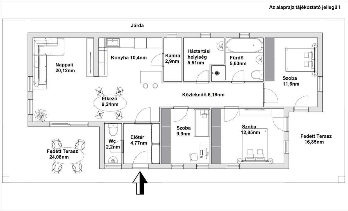
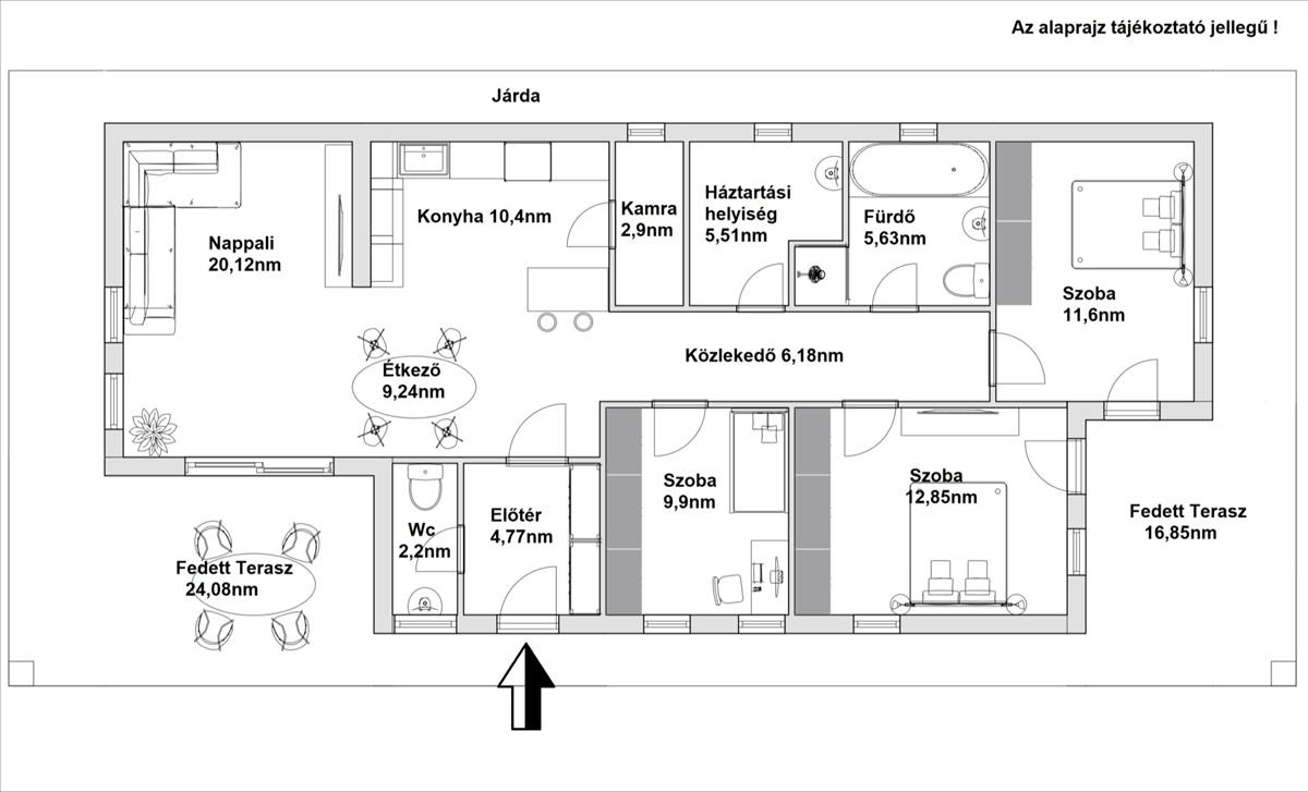
- Alapterület:101 m2
- Telekterület:545 m2
- Csere is:Nem
- Hirdető:Cég
- Élő videón megtekinthető:Nem
- Építés éve:2026
- Szobaszám:2 + 2 fél
- Állapot:Új építésű
- Hány szintes az ingatlan:nincs megadva
- Tetőtér:nincs megadva
- Komfortosság:nincs megadva
- Pince:nincs megadva
- Parkolási lehetőség:nincs megadva
- Fűtés:nincs megadva
- Bútorozottság:nincs megadva
- Fényviszony:nincs megadva
- Tájolás:nincs megadva
- Kilátás:nincs megadva
- Internet:nincs megadva
- Klíma:Van
- Akadálymentesített:nincs megadva
- Energiatanúsítvány:nincs megadva
- Villany:nincs megadva
- Víz:nincs megadva
- Gáz:nincs megadva
- Csatorna:nincs megadva
- Kapcsolatfelvétel

Vulpe Péterné Tóth Adr...
+36706688227
Mondd meg a hirdetőnek, hogy a megveszLAK-on találtad a hirdetést.
Hitel ajánlatok
Ingatlan hirdetés leírása
Eladásra kínálok Zalaegerszegen a Gébárti-tó közelében, 545 m²...
Eladásra kínálok Zalaegerszegen a Gébárti-tó közelében, 545 m²-es közel sík telken, hangulatos terasszal megálmodott 101 m²-es családi házat, melyet a vevő igényeihez igazodva, megegyezés alapján épít/szerel fel a kivitelező.
A tervek alapján nappali + 3 hálószoba, étkezős konyha, fürdőszoba, 2 toalett, kamra és háztartási helyiségből áll az egyszintes családi ház.
Az épület belső hasznos alapterülete 101, 18 m², a külső fedett teraszok összesen 40, 93 m²-t tesznek ki, így az épület összes nettó területe 142, 11 m².
A kivitelező rugalmas, a vevő igényei és elképzelése alapján változtatható a fűtési rendszertől, szürkevíz hasznosítástól a napelemekig, és még számos opcionális lehetőséggel, amit lejjebb olvashat.
A telek két utcafrontról is megközelíthető, a tervezett elrendezés célja a funkcionalitás, a természetes fény optimális kihasználása és a korszerű, energiatakarékos lakókörnyezet megteremtése.
Az épület külső megjelenését és használhatóságát tovább növeli a két, különböző irányba tájolt fedett terasz, amelyek kellemes kültéri pihenő- és étkező funkciót biztosítanak, valamint szoros kapcsolatot teremtenek a kerttel.
A falazat ytong téglából készül, a főfalak 30 cm vastagságúak, melyekre 10 cm-es eps hőszigetelés kerül kívülről.
A falak 10 cm, a vizes helyiségekben 12, 5 cm vastagságú szerelt válaszfalakból készülnek.
A tervezett födém szintén szerelt, némely helyiségben tűzálló gipszkarton álmennyezet, felette minimum 30cm vastagságú hőszigeteléssel.
Ezzel a szerkezeti megoldással aa+ energetikai besorolással bír majd az épület.
A tető beton anyagú tetőcserép, antracit szürke színben, 10 cm-es szigeteléssel készül, nyeregtető szerkezettel.
Műszaki tartalom:
Az épületben víztárolós kondenzációs gázkazán biztosítja a melegvíz ellátást, valamint a padlófűtést is. Alternatív fűtésre és hűtésre is alkalmas klíma, és a fürdőszobába egy törölközőszárítós radiátor kerül felszerelésre.
A nyílászárók műanyag szerkezetűek, hőszigetelő, 3 rétegű, víztiszta üvegezéssel ellátott, fokozott hő- és hangszigetelő tulajdonsággal rendelkeznek.
A vételár tartalmazza:
- bejárati ajtó 150. 000 Ft értékhatárig
- redőnyök és rovarhálók
- 8 db beltéri ajtó
- fehér falfestés
- hidegburkolatok br 6. 000-8000 Ft/m²-ig
- melegburkolat br 5. 000-7000 Ft/m²-ig
Opcionálisan megrendelhető:
- falazott kerítés
- parkosított udvar
- öntözőrendszer csőrendszer kiépítése
- 2 kerti csap
- 2 kocsibejáró
- járda, térkövezett kocsibeálló, kültéri fedett beálló
- napelem
- motoros redőny
- színes falfestés
- br 9. 000-10. 000 Ft/m² burkolat
- duál fűtésrendszer: a hőszivattyúról is működtethető padlófűtés és helyiségenként külön szabályozható hőmérséklet
- szürkevíz hasznosítás a toalettben, mellyel jelentősen csökkenhet a vízfogyasztás.
70 % Opcionális megrendelésnél - a konyhabútor árából 2 Millió forint értékhatárig átvállal a kivitelező.
Ajánlom:
Ez a ház ideális választás mindazoknak, akik közel szeretnének maradni a városhoz, mégis természetközeli környezetben képzelik el jövőjüket egy modern, új otthonban, ami tényleg úgy készül, ahogy megálmodták. FIX 3% lakáshitelre megvehető
Tetszett ez az eladó Zalaegerszegi új építésű 2 egész és 2 fél szobás családi ház? Hívd fel a hirdetőt most, és tudj meg mindent erről az eladó családi házról! Ha gondolod nézelődj tovább az eladó ház Zalaegerszeg oldal hirdetései között. Ennek az eladó háznak az ára 99500000 Ft és mivel az alapterülete 101 négyzetméter, ezért az átlagos négyzetméterára 985149 HUF/m2.
Az eladó házak menüpontban további hirdetések között is böngészhetsz. Ha van kedved, akkor böngészhetsz a Vulpe Péterné Tóth Adrienn összes hirdetése között, vagy akár a/az Immo1 Zalaegerszeg összes hirdetése között is.

