Eladó felújított ház - Budapest XVI. kerület
- INGYENES HIRDETÉS FELADÁS
Ingatlan adatai
- Feladva:87 napja a megveszLAK-on
- Eladó vagy kiadó:Eladó
- Település:Budapest XVI. kerület
- Kategória:Ház
- Alkategória:Házrész
- Alapterület:103 m2
- Telekterület:393 m2
- Csere is:Nem
- Hirdető:Magánszemély
- Élő videón megtekinthető:Nem
- Építés éve:1970
- Szobaszám:5
- Állapot:Felújított
- Hány szintes az ingatlan:2 szintes
- Tetőtér:nincs megadva
- Komfortosság:Dupla komfortos
- Pince:Van
- Parkolási lehetőség:Garázsban
- Fűtés:Gáz (cirko)
- Bútorozottság:Részben bútorozott
- Fényviszony:Napfényes
- Tájolás:nincs megadva
- Kilátás:nincs megadva
- Internet:nincs megadva
- Klíma:Van
- Akadálymentesített:Nem akadálymentesített
- Energiatanúsítvány:D
- Villany:Van
- Víz:Van
- Gáz:Van
- Csatorna:Van
- Kapcsolatfelvétel

Szilvia
+36-(70)-638-1177
Mondd meg a hirdetőnek, hogy a megveszLAK-on találtad a hirdetést.
Hitel ajánlatok
Ingatlan hirdetés leírása
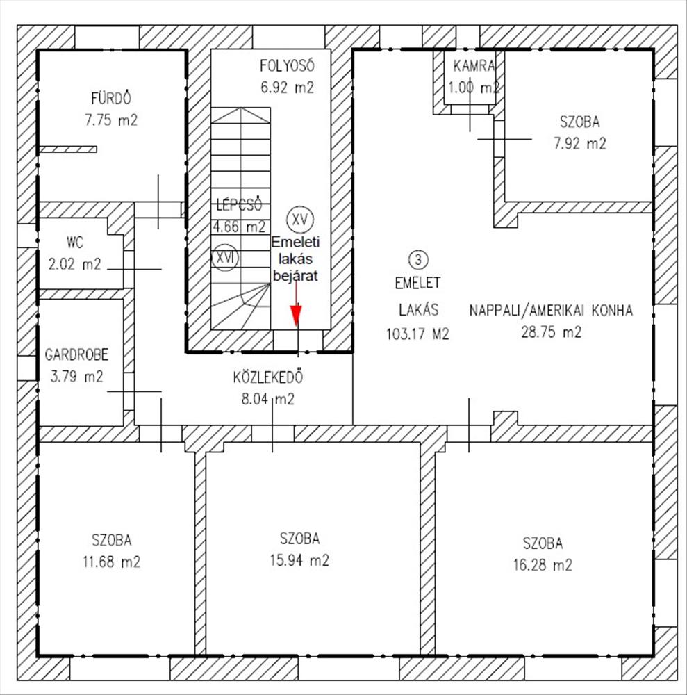
5 szobás családi otthon csendes utcában
Magánszemélytől eladó Budapest 16. kerületében Sashalmon, kertvárosi környezetben, nyugodt/csendes utcában, tehermentes, 103 m2-es, amerikai konyhás nappali + 4 szobás, világos, tágas lakás (házrész).
A lakáshoz tartozik saját használatú 199 m2-es kertrész, a kertben 20 m2-es garázs, szaletli, kerti tároló, plusz egy térkövezett kocsibeálló, valamint 7 m2-es pince.
Ára: 137 millió Ft
Főbb jellemzők:
-tágas amerikai konyhás 28, 75 m2-es nappali, beépített Zanussi indukciós főzőlappal és elektromos sütővel, a konyha mellett kamra
-4 különnyíló szoba méretek: 16, 28; 15, 94; 11, 68 és 7. 92 m2-es (mind laminált parkettás)
-a szobákban és a fürdőszobában redőny és szúnyoghálós ablakok
-gardrób beépített gardróbszekrénnyel
-zuhanyzós fürdőszoba wc-vel
-külön wc kézmosóval
-klíma
-biztonsági bejárati ajtó
-Ariston gázkazán biztosítja a melegvizet fürdéshez és fűtéshez (minden helyiségben lapradiátorok)
-közművek egyedi mérőórákkal (kertben locsolási mérő)
-2 lakásos tégla építésű, szigetelt, körbenapozott családi ház első emelete (felső szintje, de nem tetőtér)
-a lapostető 2020 őszén lett felújítva, szigetelve
-saját használatú 199 m2-es rendezett kertrész, termő szederbokorral
-sétatávra: Spar, óvoda, iskola
-közlekedés: 45-ös autóbusszal 10 perc az Örs vezér tere, 10 perc sétatávra Sashalom hév megálló, továbbá a 44-es, 46-os és 92-es buszok, 908-as éjszakai járat
-közelben: járóbeteg szakrendelő, Rossmann, gyógyszertár, zöldséges, pékség, posta, Lidl, cukrászda
Képeket kérésre küldök e-mailben, messengeren.
Érdeklődni az alábbi elérhetőségeken lehet:
telefonszám: 70/638-1177
e-mail: rekadam975@gmail. Com FIX 3% lakáshitelre megvehető
Tetszett ez az eladó Budapest XVI. kerületi felújított 5 szobás házrész? Hívd fel a hirdetőt most, és tudj meg mindent erről az eladó házrészről! Ha gondolod nézelődj tovább az eladó ház Budapest XVI. kerület oldal hirdetései között. Ennek az eladó háznak az ára 137000000 Ft és mivel az alapterülete 103 négyzetméter, ezért az átlagos négyzetméterára 1330097 HUF/m2.
Az eladó házak menüpontban további hirdetések között is böngészhetsz. Ha van kedved, akkor böngészhetsz a Szilvia összes hirdetése között.

