Eladó jó állapotú ház - Budapest XXII. kerület
- INGYENES HIRDETÉS FELADÁS
Ingatlan adatai
- Eladó vagy kiadó:Eladó
- Település:Budapest XXII. kerület
- Kategória:Ház
- Alkategória:Házrész
- Alapterület:56 m2
- Telekterület:220 m2
- Csere is:Nem
- Hirdető:Cég
- Élő videón megtekinthető:Nem
- Építés éve:1960
- Szobaszám:1
- Állapot:Jó állapotú
- Hány szintes az ingatlan:Földszintes
- Tetőtér:nincs megadva
- Komfortosság:nincs megadva
- Pince:nincs megadva
- Parkolási lehetőség:Udvaron
- Fűtés:Gáz (cirko)
- Bútorozottság:nincs megadva
- Fényviszony:Közepes
- Tájolás:K
- Kilátás:nincs megadva
- Internet:nincs megadva
- Klíma:nincs megadva
- Akadálymentesített:nincs megadva
- Energiatanúsítvány:nincs megadva
- Villany:Telken belül
- Víz:Telken belül
- Gáz:Telken belül
- Csatorna:Telken belül
- Kapcsolatfelvétel

Zatykó Krisztina
+36-(70)-237-2705
Mondd meg a hirdetőnek, hogy a megveszLAK-on találtad a hirdetést.
Referencia szám: M311350
Hitel ajánlatok
Ingatlan hirdetés leírása
Eladó Ház, Budapest 22. ker.
XXII. Budatétényben 4 szobássá BŐVíTHETŐ kertesház ELADÓ
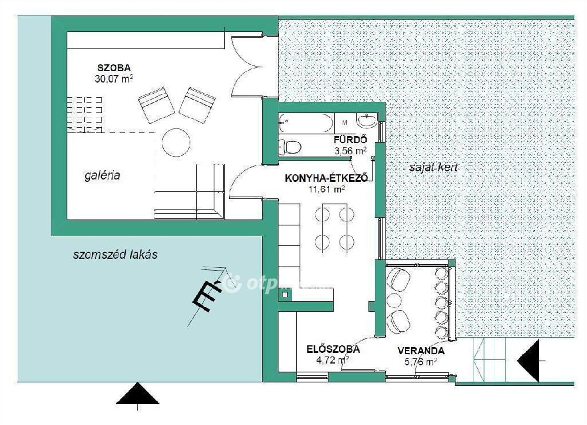
A XXII. kerület kertvárosi lakóövezetében kiváló lokációban vált eladóvá egy saját nagy kerttel rendelkező házrész, mely egy szint ráépítéssel 110m2-es 4 szobás otthonná alakítható a mellékelt terv és látványok szerint.
AZ INGATLAN
A 440 m2-es hangulatos kert 11 méteres utcafronttal bír. Az utcán saját parkolóhely, a kertben autóbeálló található. Az ingatlan megközelítése és használata független a szomszédoktól. Az utca csendes, kis forgalmú.
A HÁZ:
A kerten keresztül érkezünk a bejárati verandára, majd az előszobába. a lakásban egy jól felszerelt konyha-étkező, egy fürdőszoba és egy nagy méretű, nagy belmagasságú, alvó galériával kibővített szoba található. Innen egy terasz ajtón keresztül a kertbe juthatunk.
A fűtés gáz cirko kazán radiátoros hőleadókkal.
A külső nyílászárók két rétegű hőszigetelt üvegezésű műanyag szerkezetű ablakok. Az ingatlan jó állapotú, költözhető.
Igény esetén egy szinttel bővíthető.
BŐVíTHETŐSÉG:
Az épület Lke-2/BT/2 övezeti besorolású, ami 20 % beépíthetőséget és 6m homlokzatmagasságot enged. a mellékelt fejlesztési terv a szoba feletti tetőtér beépítésével, és a többi épületrész emeletráépítésével egy korszerű négy szobás 110m2-es családiház kialakítását javasolja.
Kiváló befektetés magán célra is.
A KÖRNYÉK:
Budatétény kedvelt kertvárosi övezetében helyezkedik el. Kiváló közlekedés és infrastruktúra szempontjából. Buszmegálló a háztól 50 méterre, óvoda, bölcsőde, boltok 500 méteren belül találhatók. Egy kilométer távolságban Campona bevásárló központ, Művelődési ház, Tanuszoda, vasútállomás.
A parkolás díjmentes az utcákban.
Otthon Start Hitelprogram igénybe vehető. a lakás megfelel a törvényi kritériumoknak, és az ügyintézésben is segítünk.
Referencia szám: m311350 FIX 3% lakáshitelre megvehető
Tetszett ez az eladó Budapest XXII. kerületi jó állapotú 1 szobás házrész? Hívd fel a hirdetőt most, és tudj meg mindent erről az eladó házrészről! Ha gondolod nézelődj tovább az eladó ház Budapest XXII. kerület oldal hirdetései között. Ennek az eladó háznak az ára 64900000 Ft és mivel az alapterülete 56 négyzetméter, ezért az átlagos négyzetméterára 1158929 HUF/m2.
Az eladó házak menüpontban további hirdetések között is böngészhetsz. Ha van kedved, akkor böngészhetsz a Zatykó Krisztina összes hirdetése között, vagy akár a/az OTPip Budapest XI. kerület Bartók Béla út 62 - OTP Ingatlanpont Iroda összes hirdetése között is.

