Eladó jó állapotú ház - Budapest XXIII. kerület (14864914)
+ 20 fotó
hirdetés 1. fotó

Eladó jó állapotú ház Budapest XXIII. kerület

árcsökkenés figyelő
Kedvencbe Megosztás Árfigyelő
FIX 3% lakáshitelre megvehető
59 900 000 HUF

Ingatlan adatai

  • Eladó vagy kiadó:Eladó
  • Település:Budapest XXIII. kerület
  • Kategória:Ház
  • Alkategória:Házrész
  • Alapterület:63 m2
  • Telekterület:145 m2
  • Csere is:Nem
  • Hirdető:Cég
  • Élő videón megtekinthető:Nem
  • Szobaszám:3
  • Állapot:Jó állapotú
  • Hány szintes az ingatlan:nincs megadva
  • Tetőtér:nincs megadva
  • Komfortosság:nincs megadva
  • Pince:Nincs
  • Parkolási lehetőség:nincs megadva
  • Fűtés:Gáz (cirko)
  • Bútorozottság:nincs megadva
  • Fényviszony:nincs megadva
  • Tájolás:nincs megadva
  • Kilátás:nincs megadva
  • Internet:nincs megadva
  • Akadálymentesített:Nem akadálymentesített
  • Energiatanúsítvány:nincs megadva
  • Villany:nincs megadva
  • Víz:nincs megadva
  • Gáz:nincs megadva
  • Csatorna:nincs megadva
INGYENES HIRDETÉS FELADÁS
  • Üzenetküldés
  • Hívás
Érdekel kedvezményes lakáshitel ajánlat is
Az ASZF-et és az Adatkezelési tájékoztatót elfogadom
Norbert
Norbert
Mondd meg a hirdetőnek, hogy a megveszLAK-on találtad a hirdetést.
ingatlan mutatása térképen

Hitel ajánlat

Ingatlan hirdetés leírása

Dupla komfortos házrész saját kerttel a XXIII. kerület csendes...

Dupla komfortos házrész saját kerttel a XXIII. kerület csendes mellékutcájában, hitelre is megvásárolható
Budapest XXIII. kerületének egyik legnyugodtabb részén, a Szitás utcában, egy csendes mellékutcában kínálunk megvételre egy háromlakásos udvarban található, önálló házrészt. Az ingatlanhoz ügyvéd által készített használati megosztási szerződés tartozik, így hitelkonstrukcióban is megvásárolható, jogilag rendezett formában.
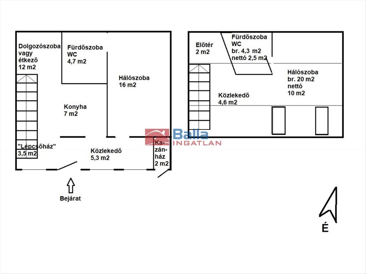
A lakás összesen 79, 4 m²-es valós alapterülettel rendelkezik, amely nettó 53 m²-t jelent, de a terek kihasználtsága és a tetőtér beépítése miatt jóval tágasabbnak érződik. a földszint 48, 5 m², a tetőtér bruttó 30, 9 m², nettó 14, 5 m², így a lakás ideális lehet pároknak, kis családoknak vagy akár két generáció számára is.

Felújított, kényelmes otthon
A ház 2008-ban teljes körű felújításon esett át: megújult az elektromos, víz- és csatornahálózat, ekkor történt a tetőtér beépítése is, betonfödémmel. a fűtést gázcirkó rendszer biztosítja, radiátorokon keresztül, a gázfelhasználás pedig bőven a kvóta alatt tartható. a földszinten 270 cm, a tetőtérben 250 cm a belmagasság a gerincnél, így a terek szellősek és világosak.
A ház dupla komfortos, azaz két külön fürdőszobával rendelkezik, ez ritka előny ebben a kategóriában.
A falazat vegyes: eredetileg vályog- és mészkőtéglából épült, a felújítás során Ytong téglákkal alakították ki a válaszfalakat és a közlekedőket, így a szerkezet stabil és jól szigetelt.

Saját kert és melléképületek
Az ingatlanhoz 70 m²-es saját kertrész tartozik, amely ideális pihenésre, kerti munkára vagy akár kisállattartásra. a kertben három különálló melléképület található: 4 m², 7 m² és 12 m² alapterülettel. a legnagyobb épületben elektromos áram és gázfűtés is rendelkezésre áll, így akár műhelynek, tárolónak vagy hobbihelyiségnek is kiválóan alkalmas.

Környezet és közlekedés
A Szitás utca nyugodt, családi házas övezet, ahol a természet közelsége és a városi infrastruktúra ideális egyensúlyban van. a környék rendezett, barátságos lakóközösséggel, kevés átmenő forgalommal, tökéletes választás azoknak, akik nyugalmat keresnek, de nem szeretnének elszakadni Budapesttől.
Közlekedés:
• Autóval gyorsan elérhető az M0-s, az M5-ös és a régi 51-es út
• Tömegközlekedéssel a belváros 30–40 perc alatt elérhető
• a közelben több buszjárat is közlekedik, amelyek Soroksár, Pesterzsébet és Kispest felé biztosítanak kapcsolatot

Ez az ingatlan azoknak szól, akik nem csupán négy falat keresnek, hanem egy valódi otthont, saját kerttel, nyugalommal, és minden olyan műszaki háttérrel, amely hosszú távon is kényelmes és fenntartható életet biztosít. Ha szeretné megtapasztalni, milyen érzés lehet itt élni, szívesen megmutatjuk! FIX 3% lakáshitelre megvehető

Hasonló ingatlan hirdetések




Felhívom
© megveszLAK.hu
Az egyszerűen jó ingatlan hirdetési oldal