- >>
- eladó ingatlanok
- >>
- eladó ház
- >>
- eladó ház Szekszárd
- >>
Eladó átlagos állapotú ház - Szekszárd
| | |||
| Kedvencnek jelölöm | Elküldöm emailben | Megosztás | Szavazás |
| FIX 3% lakáshitelre megvehető | |||
| 18 500 000 HUF | |||
Ingatlan adatai
- Eladó vagy kiadó:Eladó
- Település:Szekszárd
- Kategória:Ház
- Alkategória:Házrész
- Alapterület:80 m2
- Telekterület:421 m2
- Csere is:Nem
- Hirdető:Cég
- Élő videón megtekinthető:Nem
- Építés éve:1960
- Szobaszám:2
- Állapot:Átlagos állapotú
- Hány szintes az ingatlan:nincs megadva
- Tetőtér:nincs megadva
- Komfortosság:nincs megadva
- Parkolási lehetőség:nincs megadva
- Fűtés:Gáz (konvektor)
- Bútorozottság:nincs megadva
- Fényviszony:nincs megadva
- Tájolás:K
- Kilátás:nincs megadva
- Internet:nincs megadva
- Akadálymentesített:nincs megadva
- Energiatanúsítvány:nincs megadva
- Villany:Van
- Víz:Van
- Gáz:Van
- Csatorna:Van
- Üzenetküldés
- Hívás

Dániel Lilla Anna
Mondd meg a hirdetőnek, hogy a megveszLAK-on találtad a hirdetést.

Hitel ajánlat
Ingatlan hirdetés leírása
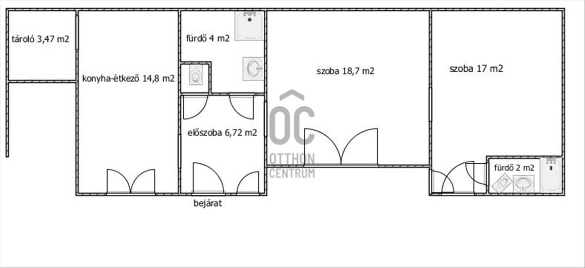
Az ingatlan egy családi ház elfelezésével lett kialakítva hasz...
Az ingatlan egy családi ház elfelezésével lett kialakítva használati megosztással, elkerítve. /Telekkönyvileg lakásként nyilvántartott/A házhoz nagy kert, tároló és füves telekrész is tartozik. a füves rész nincs bekerítve.
A ház vegyes falazatú, egy részén szigetelés van. a nyílászárók 95%-a műanyag, hőszigetelt.
A tető jó állapotú, cseréppel fedett.
A jelenlegi tulajdonos újította fel tavaly.
Két zuhanyzós fürdőszoba van a házban.
A konyha -étkező tágas, mellette egy befejezetlen helyiség van, amiből még bármi lehet.
A wc külön helyiségben is, és a fürdőben is bent van.
Akár bútorokkal együtt is eladó.
A két szoba egymás mellett van, de külön bejáraton át is megközelíthető a belső.
Fűtése jelenleg konvektorokkal történik.
Közelben buszmegálló van, de a Béla tér gyalogosan is csak 10 perc.
Ha megnézné, hívjon bátran!
Kedves Ügyfelünk, az ingatlanról videót is készítettünk. Ha ezt a hirdetést az Otthon Centrum weboldalán nézi, akkor a videóra a képek után tud kattintani. Ha egy másik weboldalon találta ezt a hirdetést, kérem nyissa meg az Otthon Centrum weboldalát, kattintson a „Regisztrációs szám keresése” menüpontra, és írja be ezt a regisztrációs számot a keresőbe: h502228 Itt meg tudja tekinteni az ingatlanról készült videót. Vagy írjon nekem, és szívesen elküldöm a videót.
Házrész csaldi ház vegyes 2 szoba két fürdő nagy udvar oc h502228 FIX 3% lakáshitelre megvehető

