Eladó új építésű nyaraló - Balatonszemes
- INGYENES HIRDETÉS FELADÁS
Ingatlan adatai
- Eladó vagy kiadó:Eladó
- Település:Balatonszemes
- Kategória:Nyaraló
- Alkategória:Hétvégi ház
- Alapterület:53 m2
- Telekterület:24 m2
- Csere is:Nem
- Hirdető:Cég
- Élő videón megtekinthető:Nem
- Építés éve:2026
- Szobaszám:2
- Állapot:Új építésű
- Hány szintes az ingatlan:nincs megadva
- Tetőtér:nincs megadva
- Komfortosság:nincs megadva
- Pince:Nincs
- Parkolási lehetőség:nincs megadva
- Fűtés:Egyedi
- Téliesített:nincs megadva
- Bútorozottság:nincs megadva
- Fényviszony:nincs megadva
- Tájolás:nincs megadva
- Kilátás:nincs megadva
- Internet:nincs megadva
- Klíma:nincs megadva
- Akadálymentesített:nincs megadva
- Energiatanúsítvány:nincs megadva
- Villany:nincs megadva
- Víz:nincs megadva
- Gáz:nincs megadva
- Csatorna:nincs megadva
- Kapcsolatfelvétel

Hitel ajánlatok
Ingatlan hirdetés leírása
Eladó PANORÁMÁS vízparti üdülő Balatonszemesen
Panorámás társasházi lakások és üdülők a Balaton SZOMSZÉDSÁGÁBAN!
A lido home ingatlan siófoki irodája eladásra kínálja ezt az új építésű, prémium minőségű balatoni panorámás üdülőt balatonszemesen közvetlen a Balaton partja mellett.
Balatonszemes Balaton parti részén most épülő, liftes társasházban kínálunk többféle áron és méretben lakásokat. Kiváló választás befektetők, családok, egyedülállók részére.
Az épületek gyönyörű természeti környezetbe tervezett mutatós, modern stílusú hatást keltenek.
Az emeleti lakások meghatározó eleme a páratlan kilátást biztosító terasz, amely az épületek felfelé szűkülő, földszint + 3 emelet kialakítású tömege miatt kifejezetten kényelmes használatot tesz lehetővé.
A beruházás részeként a telken belül a zöldterületen gyerekeknek játszótér készül.
AZONNAL birtokba VEHETŐEK!
A lakások a legkorszerűbb technológiával és anyagokkal készülnek, minden lakás energiatakarékos Panasonic hőszivattyúval ellátottak.
Hűtő-fűtő Fan-coil oldalfali egységgel, melegvízellátás Ariston villanybojlerrel. H-tarifás villanyóra.
Parkolóhely vásárolható 3m forintért. Tároló mérettől függően 0, 875M-tól-2, 25M-ig.
A beruházó az udvaron játszótér elhelyezésével gondolt a családok igényére, szabadtéri fitness parkkal pedig a nyaralni vágyóknak.
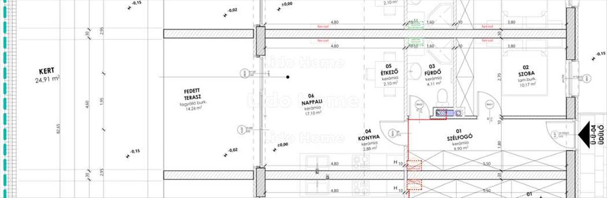
Jelen hirdetésben szereplő Ü4. Sz. Lakás jellemzői:
- földszinti,
- NY-i fekvésű,
- 46 m2 terület + 14 m2 fedett terasz + 24 m2 kert,
- nappali + egy szobás,
- rendezett jogi helyzet, lakásonként önálló helyrajzi szám.
Bármilyen kérdés esetén szívesen állok rendelkezésre.
Siessen, előzze meg a többi érdeklődőt, hogy az Öné legyen ez a kiváló lakás!
Amennyiben a lido home által kínált balatonszemesi nyaraló, vagy bármely a kínálatunkban található egyéb ingatlan felkeltette az érdeklődését, hívjon a megadott telefonszámon.
Vásárolna, de nincs rá keret? Kollégám díjmentes, bank semleges hitel ügyintézéssel áll rendelkezésére.
LIDO home- Ingatlanok egy életen át! Hitel.hu - Hasonlítsa össze a bankok lakáshitel ajánlatait
Tetszett ez az eladó Balatonszemesi új építésű 2 szobás nyaraló? Hívd fel a hirdetőt most, és tudj meg mindent erről az eladó nyaralóról! Ha gondolod nézelődj tovább az eladó nyaraló Balatonszemes oldal hirdetései között. Ennek az eladó nyaralónak az ára 78900000 Ft és mivel az alapterülete 53 négyzetméter, ezért az átlagos négyzetméterára 1488679 HUF/m2.
Az eladó nyaralók menüpontban további hirdetések között is böngészhetsz. Ha van kedved, akkor böngészhetsz a Tódor Dominik összes hirdetése között, vagy akár a/az Lido Home Siófok összes hirdetése között is.
További hirdetéseket találsz az eladó Balaton déli parti nyaralók között. Ha a teljes régió kínálata érdekel, nézd meg az eladó Balatoni nyaralók oldalt.

