Eladó újszerű állapotú nyaraló - Kiskunlacháza
- INGYENES HIRDETÉS FELADÁS
Ingatlan adatai
- Eladó vagy kiadó:Eladó
- Település:Kiskunlacháza
- Kategória:Nyaraló
- Alkategória:Hétvégi ház
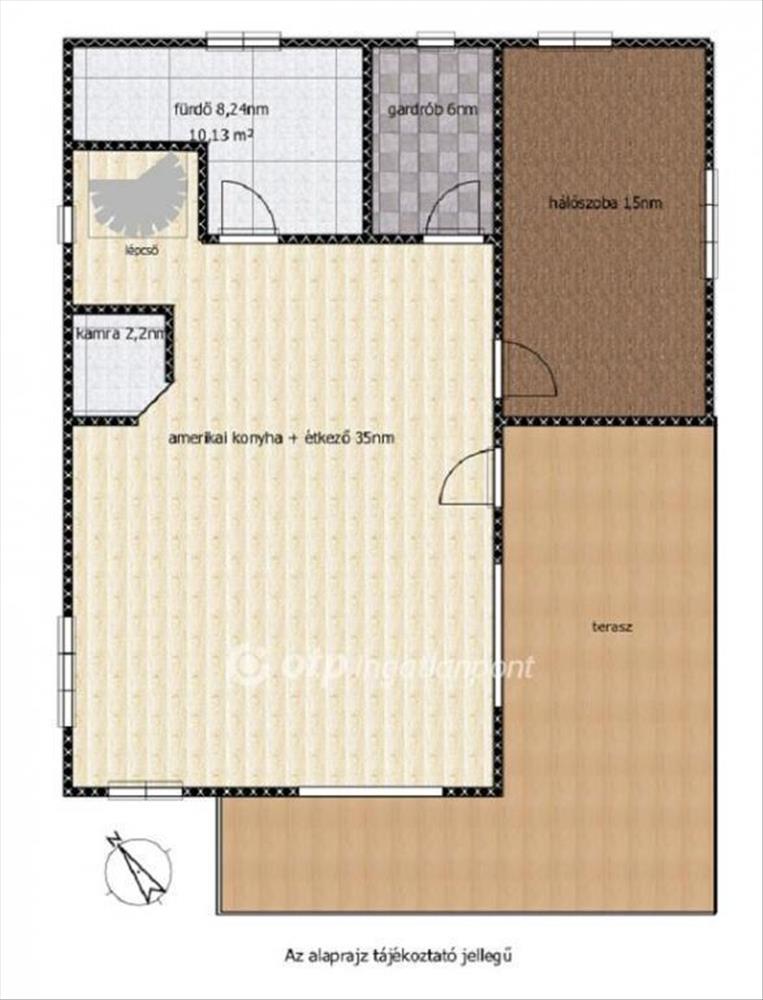
- Alapterület:92 m2
- Telekterület:588 m2
- Csere is:Nem
- Hirdető:Cég
- Élő videón megtekinthető:Nem
- Építés éve:2021
- Szobaszám:3 + 1 fél
- Állapot:Újszerű, kitűnő
- Hány szintes az ingatlan:2 szintes
- Tetőtér:nincs megadva
- Komfortosság:nincs megadva
- Pince:nincs megadva
- Parkolási lehetőség:Udvaron
- Fűtés:Elektromos
- Téliesített:nincs megadva
- Bútorozottság:nincs megadva
- Fényviszony:Napfényes
- Tájolás:nincs megadva
- Kilátás:nincs megadva
- Internet:nincs megadva
- Klíma:nincs megadva
- Akadálymentesített:nincs megadva
- Energiatanúsítvány:nincs megadva
- Villany:nincs megadva
- Víz:nincs megadva
- Gáz:nincs megadva
- Csatorna:nincs megadva
- Kapcsolatfelvétel

Kissné Pergő Viktória
+36-(30)-613-2373
Mondd meg a hirdetőnek, hogy a megveszLAK-on találtad a hirdetést.
Referencia szám: M318962
Hitel ajánlatok
Ingatlan hirdetés leírása
Eladó Ház, Kiskunlacháza
Eladó egy prémium kivitelezésű hétvégi ház! !
Dunától mindössze 60 méterre eladó egy 92 m2-es, modern technológiával épült, thermoblock falazatú, kívül-belül szigetelt, kiemelkedő minőségű, belterületi, hétvégi ház, 575 m2-es, parkosított telken.
A ház különlegességét a látványos vörösfenyő tetőszerkezet, a padlófűtés, a korszerű légkondicionált fűtési rendszer, valamint a beépített kandalló adják. a tágas, 35 m2-es gépesített amerikai konyha, nappali egy légtérben található, ami ideális családi és baráti összejövetelekhez is.
Az ingatlan része továbbá egy 7, 5 × 4 méteres fűthető medence, egy impozáns vörösfenyő terasz, valamint rendezett, zöld, parkosított kert. Az ingatlan elektromos kapuval, riasztó rendszerrel ellátott.
Az OTP Bankcsoport teljeskörű ügyintézéssel áll az eladók és a vevők rendelkezésére! A
kínálatunkból választott ingatlan finanszírozásához kedvezményes hitelkonstrukciókat
kínálunk. Az adásvételi szerződés megkötéséhez igény szerint megbízható ügyvédi
közreműködést biztosítunk és segítséget nyújtunk az adásvételhez kapcsolódó ügyek intézéséhez.
M318962
Ár: 118 millió Hitel.hu - Hasonlítsa össze a bankok lakáshitel ajánlatait
Tetszett ez az eladó Kiskunlacházai újszerű állapotú 3 egész és 1 fél szobás nyaraló? Hívd fel a hirdetőt most, és tudj meg mindent erről az eladó nyaralóról! Ha gondolod nézelődj tovább az eladó nyaraló Kiskunlacháza oldal hirdetései között. Ennek az eladó nyaralónak az ára 118000000 Ft és mivel az alapterülete 92 négyzetméter, ezért az átlagos négyzetméterára 1282609 HUF/m2.
Az eladó nyaralók menüpontban további hirdetések között is böngészhetsz. Ha van kedved, akkor böngészhetsz a Kissné Pergő Viktória összes hirdetése között, vagy akár a/az OTPip Szigetszentmiklós Tököli út 19.B - OTP Ingatlanpont Iroda összes hirdetése között is.

