- >>
- eladó ingatlanok
- >>
- eladó nyaraló
- >>
- eladó nyaraló Siófok
- >>
Eladó befejezetlen nyaraló - Siófok
| | |||
| Kedvencnek jelölöm | Elküldöm emailben | Megosztás | Szavazás |
| Kedvezményes lakáshitel ajánlatok | |||
| 117 300 000 HUF | |||
Ingatlan adatai
- Eladó vagy kiadó:Eladó
- Település:Siófok
- Kategória:Nyaraló
- Alkategória:Hétvégi ház
- Alapterület:68 m2
- Telekterület:nincs megadva
- Csere is:Nem
- Hirdető:Cég
- Élő videón megtekinthető:Nem
- Építés éve:2025
- Szobaszám:2 + 1 fél
- Állapot:Befejezetlen
- Hány szintes az ingatlan:nincs megadva
- Tetőtér:nincs megadva
- Komfortosság:nincs megadva
- Parkolási lehetőség:Beállóban
- Fűtés:nincs megadva
- Téliesített:nincs megadva
- Bútorozottság:nincs megadva
- Fényviszony:nincs megadva
- Tájolás:É
- Kilátás:nincs megadva
- Internet:nincs megadva
- Klíma:Van
- Akadálymentesített:nincs megadva
- Energiatanúsítvány:nincs megadva
- Villany:Van
- Víz:Van
- Gáz:nincs megadva
- Csatorna:Van
- Üzenetküldés
- Hívás


Hitel ajánlat
Ingatlan hirdetés leírása
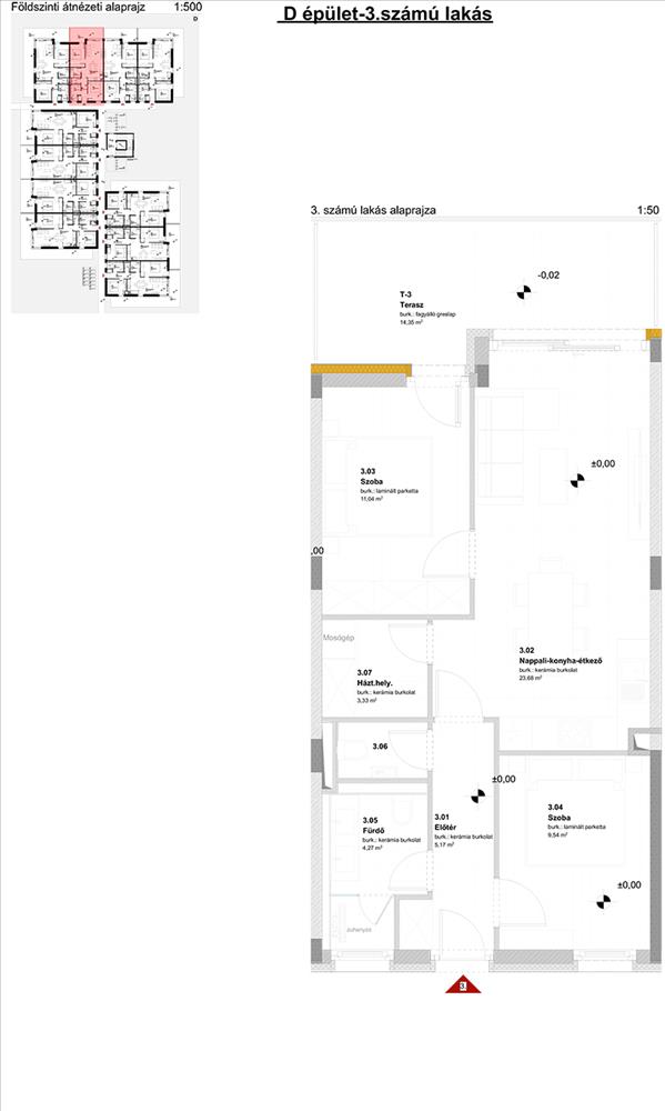
SIÓFOK EZÜSTPARTON, ÚJ ÉPÍTÉSŰ NYARALÓ/LAKÁSOK ELADÓK!
A siófoki update vip ingatlaniroda kínálatából:Eladó luxus apartman Siófok Ezüstpartján – közvetlen vízparti épületben!
Új építésű, földszinti, teraszos 2 szoba + nappalis lakás, két kényelmes fürdőszobával és részleges panorámával a Balatonra.
Az ingatlanhoz saját kocsibeálló is tartozik (ára: 5 millió Ft).
61m2 a lakrész és 15m2 a terasz mely északi tájolású, részpanorámával!
A lakás nyaraló minősítésű 27% Áfát tartalmaz!
Cégeknek is kíváló befektetés!
A Villapark minden apartmanját a modern technológia és a kényelem tökéletes ötvözete jellemzi:
Hőszivattyús hűtő-fűtő rendszer távoli, mobil applikációról vezérelhető, energiatakarékos üzemeltetéssel.
Okos otthon rendszer (fibaro) világításvezérléssel, fogyasztásméréssel, riasztási funkcióval és nyitásérzékelőkkel.
Az alap rendszer bővíthető árnyékolás- és biztonságtechnikával, így lakása teljesen az Ön igényeire szabható.
Ez az ingatlan nemcsak nyaralónak tökéletes választás, hanem értékálló befektetés is Siófok legkedveltebb részén, az Ezüstpart közvetlen közelében.
Az építőnek több referenciája is megtekinthető a helyszínen!
Jelenleg a képen látható készültségben van a lakópark.
Várható átadás 2026 nyár
Bővebb információért, megtekintés egyeztetésért,
kérem keressen a megadott elérhetőségeimen!
UPDATE vip ingatlan iroda további szolgáltatásai:
Energetikai tanúsítvány készítés, Díjmentes-bank semleges hitelügyintézés,
Ügyvédi háttér, Közjegyző, Földhivatali ügyintézés, Építész, Lakberendező. Hitel.hu - Hasonlítsa össze a bankok lakáshitel ajánlatait

