Eladó új építésű ház Budapest XVIII. kerület
| Kedvencbe | Megosztás | Árfigyelő |
| Kedvezményes lakáshitel ajánlatok | ||
| 210 000 000 HUF | ||
Ingatlan adatai
- Eladó vagy kiadó:Eladó
- Település:Budapest XVIII. kerület
- Kategória:Ház
- Alkategória:Ikerház
- Alapterület:143 m2
- Telekterület:300 m2
- Csere is:Nem
- Hirdető:Cég
- Élő videón megtekinthető:Nem
- Építés éve:2026
- Szobaszám:4
- Állapot:Új építésű
- Hány szintes az ingatlan:Földszintes
- Tetőtér:nincs megadva
- Komfortosság:nincs megadva
- Parkolási lehetőség:Teremgarázsban
- Fűtés:Hőszivattyús
- Bútorozottság:nincs megadva
- Fényviszony:Napfényes
- Tájolás:DNY
- Kilátás:nincs megadva
- Internet:nincs megadva
- Klíma:Van
- Akadálymentesített:nincs megadva
- Energiatanúsítvány:nincs megadva
- Villany:Van
- Víz:Van
- Gáz:Van
- Csatorna:Van
- Üzenetküldés
- Hívás

Takácsné Domján Adrienn
Mondd meg a hirdetőnek, hogy a megveszLAK-on találtad a hirdetést.
Referencia szám: HZ080682

Hitel ajánlat
Ingatlan hirdetés leírása
Eladó ház, Budapest 18. ker.
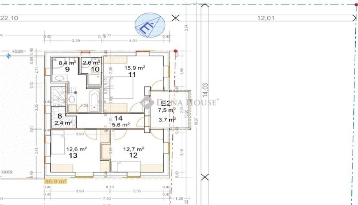
Eladó a Szent Imre kertvárosban egy 2026 negyedik negyedévére elkészülő, modern, új építésű, kétszintes, kertkapcsolatos ház megbízható, tapasztalt kivitelezőtől.Az ingatlan kényelmes és átgondolt elrendezésének köszönhetően tökéletes választás családoknak és mindazoknak, akik új otthonukat minőségi környezetben képzelik el.
A földszinten egy tágas, amerikai konyhás nappali kapott helyet, amely közvetlen kapcsolatot biztosít a 7. 5 M²-es teraszhoz, ahonnan továbbhaladva elérhető a kb. 550 M²-es saját használatú kert. a szinten található továbbá egy háztartási helyiség és egy kényelmes vendég-WC is.
Az emelet három kényelmes méretű szobát kínál, melyekhez a szinten két fürdőszoba tartozik ami WC-vel is felszerelt. a szobákban több beépített szekrény kialakítására is lehetőség van. Ezen a szinten található egy 7, 5 m²-es erkély, amely az egyik szobából közelíthető meg, kellemes kilátást és privát szabadtéri pihenőteret biztosítva.
Az otthon fűtését modern hőszivattyúval működő padlófűtés biztosítja, amely nemcsak energiatakarékos, hanem magas komfortérzetet is nyújt. a hűtésről menyezeti hűtés gondoskodik. a lakáshoz tartozik egy 23. 8 M²-es, saját, önálló garázs, amely kiváló helyet biztosít az autó és további tárolási igények számára.
A modern, letisztult kivitelezés, a nagy méretű kertkapcsolat, a több terasz és erkély, valamint az átgondolt belső terek összessége egy igazán élhető, hosszú távon értékálló otthont eredményez.
A kertben kialakításra kerül egy 5 nm-es medence is ami a nyári kikapcsolódást teszi lehetővé.
Ha felkeltette a figyelmét ez a páratlan lehetőség ne habozón hívjon még ma!
Hitellel vásárlás esetén bankfüggetlen és díjmentes hiteltanácsadó közreműködését biztosítjuk, aki a teljes folyamaton végigkíséri Önt.
Az adásvétel biztonságos és gördülékeny bonyolítása érdekében tapasztalt ingatlan szakjogászaink szolgáltatását is ajánlom.
Referencia szám: hz080682 Hitel.hu - Hasonlítsa össze a bankok lakáshitel ajánlatait

