- >>
- eladó ingatlanok
- >>
- eladó ház
- >>
- eladó ház Budapest XXII. kerület
- >>
Eladó új építésű ház - Budapest XXII. kerület
| | |||
| Kedvencnek jelölöm | Elküldöm emailben | Megosztás | Szavazás |
| FIX 3% lakáshitelre megvehető | |||
| 130 000 000 HUF | |||
Ingatlan adatai
- Eladó vagy kiadó:Eladó
- Település:Budapest XXII. kerület
- Kategória:Ház
- Alkategória:Ikerház
- Alapterület:96 m2
- Telekterület:300 m2
- Csere is:Nem
- Hirdető:Cég
- Élő videón megtekinthető:Nem
- Építés éve:2025
- Szobaszám:4
- Állapot:Új építésű
- Hány szintes az ingatlan:Földszintes
- Tetőtér:nincs megadva
- Komfortosság:nincs megadva
- Parkolási lehetőség:nincs megadva
- Fűtés:Hőszivattyús
- Bútorozottság:nincs megadva
- Fényviszony:Napfényes
- Tájolás:D
- Kilátás:nincs megadva
- Internet:nincs megadva
- Klíma:Van
- Akadálymentesített:nincs megadva
- Energiatanúsítvány:A+
- Villany:Van
- Víz:Van
- Gáz:Nincs
- Csatorna:Van
- Üzenetküldés
- Hívás

Referencia szám: HZ081299

Hitel ajánlat
Ingatlan hirdetés leírása
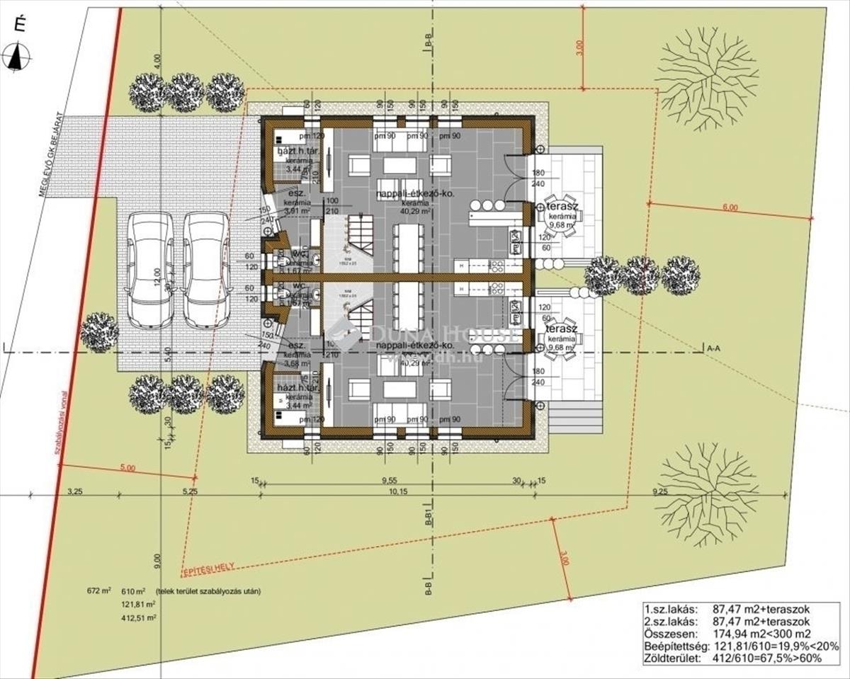
Eladó ház, Budapest 22. ker.
**Újépítésű ikerházfél a 22. kerületben**Fedezze fel Budapest 22. kerületében ezt a különleges ajánlatot: egy újépítésű ikerházfelet, amely egyaránt ideális választás családoknak és befektetőknek. Az ingatlan a közkedvelt Bartók Béla utcában található, amely tökéletesen ötvözi a kertvárosi nyugalmat és a város közelségét.
Tulajdonságok
A nettó 87, 5 négyzetméteres lakótér kiváló tervezésű, két szinten elhelyezkedő otthon, amely négy szobával és egy tágas nappalival rendelkezik. a két terasz még több lehetőséget kínál a pihenésre vagy családi összejövetelekre. Emellett egy saját, 300 négyzetméteres kert és egy kocsibeálló is a rendelkezésére áll. Az energiatakarékos hőszivattyús rendszer garantálja az alacsony fűtési és hűtési költségeket, így hosszú távon fenntartható és gazdaságos megoldást kínál.
Rugalmasság a kivitelezésben
Jelen állapotában még lehetősége van a belső terek testreszabására, kiválaszthatja a burkolatokat és szanitereket, így teljesen az Ön igényeire szabhatja új otthonát. Az építkezést egy megbízható, számos referenciával rendelkező helyi építő cég végzi, biztosítva a minőségi kivitelezést.
Kiváló infrastruktúra és elhelyezkedés
Elhelyezkedése ideális, hiszen könnyen elérhető a városközpont autóval és tömegközlekedéssel egyaránt. a közelben számos szolgáltatás áll rendelkezésre: iskola, óvoda, gyógyszertár, posta és boltok mind karnyújtásnyira találhatók.
A tömegközlekedés kiváló: a 187-es és 941-es buszok megállói rövid sétatávolságra vannak, míg a Budafok vasútállomás gyors kapcsolatot biztosít a Déli pályaudvar felé. Az M0-s autópálya közelsége pedig megkönnyíti a közlekedést az agglomeráció és az ország többi része felé.
Kérdése van? Forduljon hozzánk bizalommal!
A Duna House teljes kínálatával kapcsolatban forduljanak hozzám bizalommal!
Bankfüggetlen pénzügyi szakembereink tanácsadással, ügyintézéssel tudják segíteni Önöket álmaik, céljaik megvalósításában!
Vegye igénybe díjmentes konzultációinkat!
Https://www. Facebook. Com/otthonkonnyeden
Referencia szám: hz081299 FIX 3% lakáshitelre megvehető

