Eladó új építésű ház - Budapest XXII. kerület
- INGYENES HIRDETÉS FELADÁS
Ingatlan adatai
- Eladó vagy kiadó:Eladó
- Település:Budapest XXII. kerület
- Kategória:Ház
- Alkategória:Ikerház
- Alapterület:175 m2
- Telekterület:553 m2
- Csere is:Nem
- Hirdető:Cég
- Élő videón megtekinthető:Nem
- Építés éve:2025
- Szobaszám:4
- Állapot:Új építésű
- Hány szintes az ingatlan:Földszintes
- Tetőtér:nincs megadva
- Komfortosság:nincs megadva
- Pince:nincs megadva
- Parkolási lehetőség:Teremgarázsban
- Fűtés:Hőszivattyús
- Bútorozottság:nincs megadva
- Fényviszony:Jó
- Tájolás:DNY
- Kilátás:nincs megadva
- Internet:nincs megadva
- Klíma:nincs megadva
- Akadálymentesített:nincs megadva
- Energiatanúsítvány:nincs megadva
- Villany:Van
- Víz:Van
- Gáz:Nincs
- Csatorna:Van
- Kapcsolatfelvétel

Oroszné Gróf Ildikó
+36-(30)-847-2489
Mondd meg a hirdetőnek, hogy a megveszLAK-on találtad a hirdetést.
Referencia szám: HZ043980
Hitel ajánlatok
Ingatlan hirdetés leírása
Eladó ház, Budapest 22. ker.
Prémium minimal ikerház eladó a 22. kerületben! Panorámás terasszal!
Budapest 22. kerületének Óhegy keresett részen prémium minőségű ikerház épül. Az épületek dupla fallal és légréssel elválasztva, így semmilyen hang nem zavarhatja a nyugalmát. Szolgalmi úttal
Az ingatlant a 2025-ös év kedvezményes feltételeivel tudja megvásárolni, az építkezés céges.
CSOK Plusz igényelhető és Illeték kedvezmény egyaránt.
Foglalja le már most leendő otthonát 10%-al. Az építkezés hamarosan kezdetét veszi. a környéken rengeteg referencia ház, amit közösen megtekinthetünk, ami segíti a döntést.
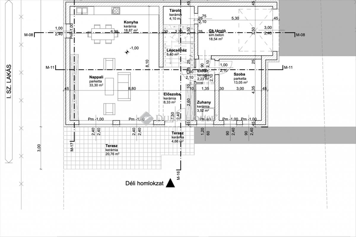
Az ingatlan nettó hasznos területe 130, 58 m2 + 18, 54 m2 garázs, 3 db terasz 553 m2 kertkapcsolattal. a helyiségek napfényesek, köszönhetően a jó tájolásnak és a jó méretű egyedi nyílászáróknak.
Elosztását tekintve:
Földszint:
- Előszoba
- 1 jó méretű hálószoba
- Tágas, 52 m2-es amerikai konyhás nappali
- Fürdőszoba
- Tároló
- 1 állásos garázs /kérhető szobának is /
- 20, 76 m2-es terasz
- 553 m2-es saját kert
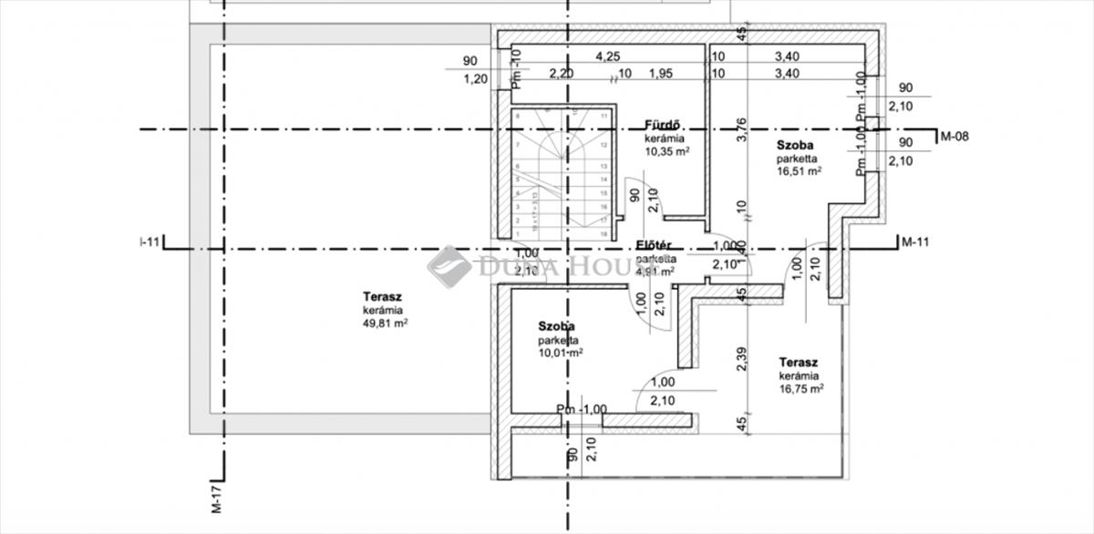
Emelet:
- 2 szoba. Mindegyik szoba hangulatos terasszal / 49, 81 m2 és egy 16, 75 m2-es/, ahonnan hangulatos panoráma tárul elénk
- Fürdőszoba
EXTRÁK:
- Mennyezet hűtés-fűtés
- Hővisszanyerős szellőztető berendezés
- Elektromos alumínium redőnyök
Műszaki adatok:
- 30-as Porotherm tégla, 10 cm Ytong válaszfalak
- 15 cm grafitos homlokzati szigetelés
- Panasonic hőszivattyú 300 literes használati meleg víz tartállyal, minden lakásnak külön hőszivattyú berendezés
- h- tarifás mérőszekrény kialakítás
- Minden helyiségben padlófűtés
- Betoncserép
- 3 rétegű 6 légkamrás nyílászárók, kívül antracit kivitelben
- 2 db autónak kocsibeálló
- Riasztó előkészítése
- Szaniterek
- Hideg/meleg burkolatok ( 10 000 Ft/m2 meleg: 10 000 Ft/ m2 )
- Beltéri ajtók ( 100 000 Ft/ db )
- Bejárati ajtó
Ezek mind kiemelkedő minőségben és az átlagnál magasabb áron választhatóak. Árlista tőlem kérhető. Az építkezés megtekintése után minden a házzal kapcsolatos dokumentáció rendelkezésre áll.
Vállalkozó garantáltan megbízható, rugalmas, rengeteg referencia munkával, amit közösen megtudunk tekinteni a nagy döntés előtt.
Környék rendezett, minden perceken belül elérhető. Iskola, óvoda, bevásárlási lehetőségek, MO-s autópálya.
Várható átadás: 2026 június
Referencia szám: hz043980-ml Hitel.hu - Hasonlítsa össze a bankok lakáshitel ajánlatait
Tetszett ez az eladó Budapest XXII. kerületi új építésű 4 szobás ikerház? Hívd fel a hirdetőt most, és tudj meg mindent erről az eladó ikerházról! Ha gondolod nézelődj tovább az eladó ház Budapest XXII. kerület oldal hirdetései között. Ennek az eladó háznak az ára 199900000 Ft és mivel az alapterülete 175 négyzetméter, ezért az átlagos négyzetméterára 1142286 HUF/m2.
Az eladó házak menüpontban további hirdetések között is böngészhetsz. Ha van kedved, akkor böngészhetsz a Oroszné Gróf Ildikó összes hirdetése között, vagy akár a/az Duna House Istenhegyi út összes hirdetése között is.

