Eladó jó állapotú ház Érd
| Kedvencbe | Megosztás | Árfigyelő |
| Kedvezményes lakáshitel ajánlatok | ||
| 169 000 000 HUF | ||
Ingatlan adatai
- Eladó vagy kiadó:Eladó
- Település:Érd
- Kategória:Ház
- Alkategória:Ikerház
- Alapterület:255 m2
- Telekterület:1192 m2
- Csere is:Nem
- Hirdető:Cég
- Élő videón megtekinthető:Nem
- Építés éve:2003
- Szobaszám:7
- Állapot:Jó állapotú
- Hány szintes az ingatlan:Földszintes
- Tetőtér:nincs megadva
- Komfortosság:nincs megadva
- Parkolási lehetőség:nincs megadva
- Fűtés:Gáz (cirko)
- Bútorozottság:nincs megadva
- Fényviszony:Jó
- Tájolás:ÉK
- Kilátás:nincs megadva
- Internet:nincs megadva
- Akadálymentesített:nincs megadva
- Energiatanúsítvány:nincs megadva
- Villany:nincs megadva
- Víz:nincs megadva
- Gáz:nincs megadva
- Csatorna:nincs megadva
- Üzenetküldés
- Hívás

Referencia szám: HZ090363

Hitel ajánlat
Ingatlan hirdetés leírása
Eladó ház, Érd, Eladó jó állapotú ház - Érd
Érd parkvárosban, gyönyörű telken, impozáns környezetben, kényelmes, tágas, napelemes ikerházak ELADÓK!RÖVID időn belül birtokba VEHETŐK!
TELEK: a jobboldali ikerház: 1192 m2,
TELEK: a baloldali ikerház 930 m2!
INGATLAN: a jobboldali ikerház 255 m2,
INGATLAN: a baloldali ikerház 265 m2
***169. 000. 000 Ft***
***+36 30 202 9547***
Átgondoltan kialakított terek,
A kert valódi értéket ad,
A télikert használható plusz lakótérként,
A hatalmas kert és terasz jó terep a pihenésre és a vendégfogadásra,
A gyerekeket hinta és csúszda várja,
A fürdőszobák idén lettek felújítva,
Kiszámítható rezsi,
ALSÓ SZINTEN:
*Garázs 2 autó számára,
*Kondi terem,
*Szabadidős helyiség,
*Tároló,
*WC,
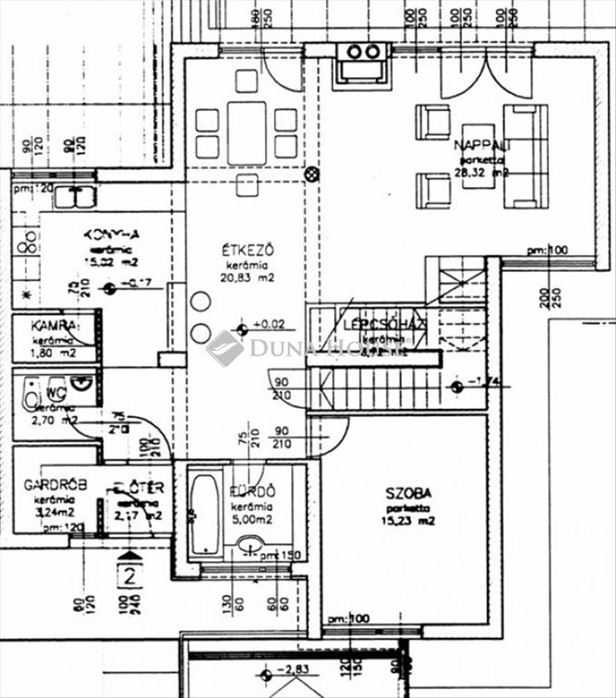
A FÖLDSZINTEN:
*Tágas nappali étkezővel,
*Konyha,
*Kamra,
*Szoba,
*Gardrób,
*Fürdő,
*WC,
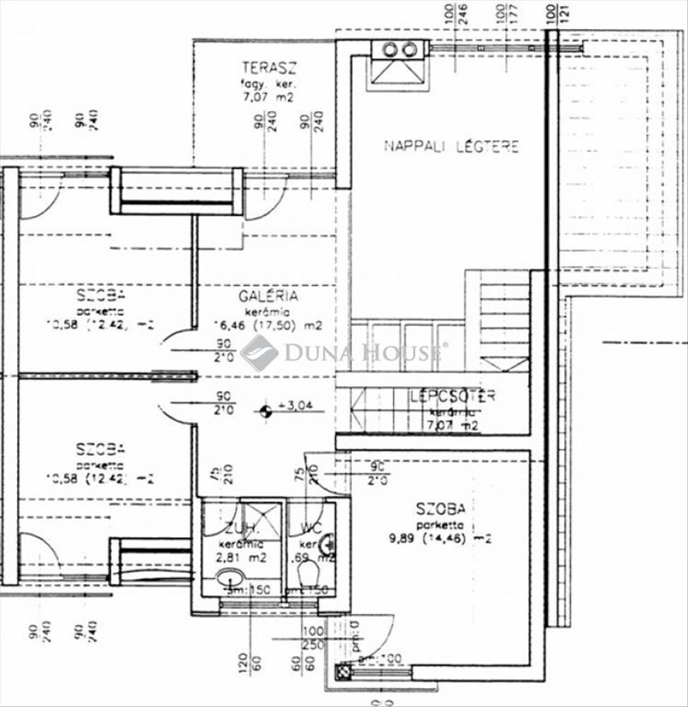
AZ EMELETEN:
*Három hálószoba,
*Fürdő,
*WC,
*Galéria,
MŰSZAKI PARAMÉTEREK:
*30 Tégla,
*12 cm Grafitos hőszigetelés,
*Kamerarendszer,
*Távírányítással működő kapuk,
*Rámpafűtés,
EXTRÁK:
*8 Kw napelem éves elszámolással, (7 évig biztosít megtérülést),
*Kandalló,
*Klímák,
*A kertben külső épített kemence,
*Magaságyások,
*Komposztáló,
*Gyümölcsfák,
*Öntözőrendszer a tudatos kertműveléshez,
*Fedett sütögető, bográcsozó,
*Szerszámoskamra,
***169. 000. 000 Ft**
További információért és ha időpontot szeretne egyeztetni a megtekintésekkel kapcsolatban, forduljon hozzám bizalommal, a hét minden napján elérhető vagyok!
Várom megtisztelő hívását!
Szlávik Mária +36 30 202 9547
Érd: Szlávik Mária : 0630 2029547
Referencia szám: hz090363-ml Hitel.hu - Hasonlítsa össze a bankok lakáshitel ajánlatait

