Eladó felújított ház - Érd
- INGYENES HIRDETÉS FELADÁS
Ingatlan adatai
- Eladó vagy kiadó:Eladó
- Település:Érd
- Kategória:Ház
- Alkategória:Ikerház
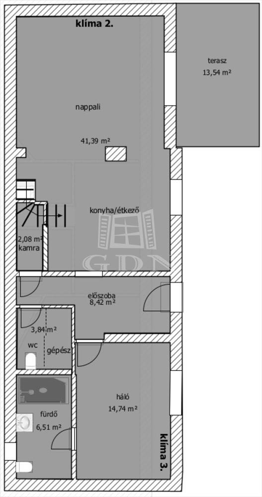
- Alapterület:145 m2
- Telekterület:200 m2
- Csere is:Nem
- Hirdető:Cég
- Élő videón megtekinthető:Nem
- Építés éve:1980
- Szobaszám:4
- Állapot:Felújított
- Hány szintes az ingatlan:2 szintes
- Tetőtér:nincs megadva
- Komfortosság:nincs megadva
- Pince:nincs megadva
- Parkolási lehetőség:Beállóban
- Fűtés:Egyéb
- Bútorozottság:nincs megadva
- Fényviszony:nincs megadva
- Tájolás:nincs megadva
- Kilátás:nincs megadva
- Internet:nincs megadva
- Klíma:nincs megadva
- Akadálymentesített:nincs megadva
- Energiatanúsítvány:nincs megadva
- Villany:Van
- Víz:Van
- Gáz:Telken belül
- Csatorna:Van
- Kapcsolatfelvétel

Szőke Lívia
+36-(20)-517-7372
Mondd meg a hirdetőnek, hogy a megveszLAK-on találtad a hirdetést.
Hitel ajánlatok
Ingatlan hirdetés leírása
Akár Otthon Start Programmal is megvásárolható! Költözz be má...
Akár Otthon Start Programmal is megvásárolható!
Költözz be már holnap – felújított ikerház Érd szívében!
Megtaláltad, amit keresel: felújított, azonnal költözhető, modern otthon, saját kerttel és szuper elhelyezkedéssel!
Nem kell felújítással bajlódnod – csak hozd a bőröndöd, és már élvezheted is az új otthonod. ✨
145 M² lakótér + kb. 200 M² saját kert, csendes mellékutcában, pár perc sétára boltoktól, iskolától, tömegközlekedéstől.
Ideális választás családoknak, többgenerációs együttéléshez vagy bárkinek, aki nyugalomra és kényelemre vágyik.
Főbb extrák:
✅ Teljeskörű felújítás
✅ Szobánként klíma
✅ 3 háló + nappali + tágas étkező, konyha
✅ 3 wc, külön fürdők
✅ Zárt autóbeálló
✅ Alacsony rezsi
Lokáció: Érd központ – minden gyalog elérhető!
Stop Shop, spar, Aldi, vasútállomás, iskola, óvoda – minden itt van a közelben.
Ez az ingatlan ritka kombinációja a minőségnek, elhelyezkedésnek és azonnali költözhetőségnek – ne hagyd ki!
Megtekintés rugalmasan, akár hétvégén is! FIX 3% lakáshitelre megvehető
Tetszett ez az eladó Érdi felújított 4 szobás ikerház? Hívd fel a hirdetőt most, és tudj meg mindent erről az eladó ikerházról! Ha gondolod nézelődj tovább az eladó ház Érd oldal hirdetései között. Ennek az eladó háznak az ára 119000000 Ft és mivel az alapterülete 145 négyzetméter, ezért az átlagos négyzetméterára 820690 HUF/m2.
Az eladó házak menüpontban további hirdetések között is böngészhetsz. Ha van kedved, akkor böngészhetsz a Szőke Lívia összes hirdetése között, vagy akár a/az GDN Ingatlanhálózat összes hirdetése között is.

