Eladó új építésű ház Érd
| Kedvencbe | Megosztás | Árfigyelő |
| FIX 3% lakáshitelre megvehető | ||
| 138 000 000 HUF | ||
Ingatlan adatai
- Eladó vagy kiadó:Eladó
- Település:Érd
- Kategória:Ház
- Alkategória:Ikerház
- Alapterület:125 m2
- Telekterület:1000 m2
- Csere is:Nem
- Hirdető:Cég
- Élő videón megtekinthető:Nem
- Építés éve:2022
- Szobaszám:5
- Állapot:Új építésű
- Hány szintes az ingatlan:Földszintes
- Tetőtér:nincs megadva
- Komfortosság:nincs megadva
- Parkolási lehetőség:Udvaron
- Fűtés:Elektromos
- Bútorozottság:nincs megadva
- Fényviszony:Napfényes
- Tájolás:nincs megadva
- Kilátás:nincs megadva
- Internet:nincs megadva
- Klíma:Van
- Akadálymentesített:nincs megadva
- Energiatanúsítvány:nincs megadva
- Villany:Telken belül
- Víz:Nincs
- Gáz:nincs megadva
- Csatorna:nincs megadva
- Üzenetküldés
- Hívás

Sasaran-Kereki Katalin
Mondd meg a hirdetőnek, hogy a megveszLAK-on találtad a hirdetést.
Referencia szám: M289175

Hitel ajánlat
Ingatlan hirdetés leírása
Eladó Ház, Érd, Eladó új építésű ház - Érd
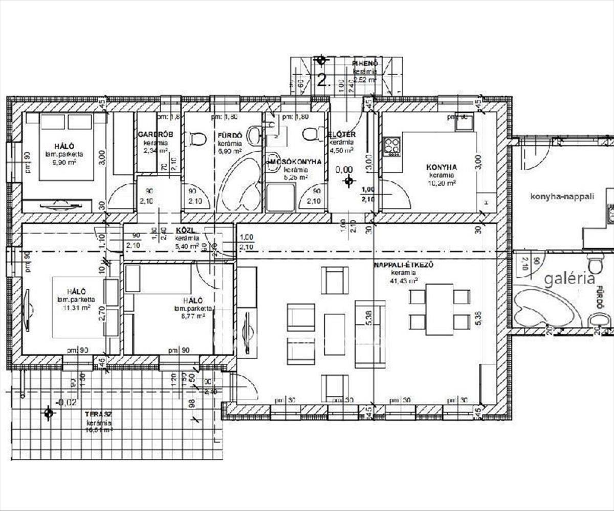
Nagy telek, csend, béke, nyugalom! Érd Ófalu Városközponthoz közeli részén újszerű, megújuló energiával ellátott ikerház hátsó fele eladó akár 2 generációnak is! a 125 nm-es lakóterületen megtalálható egy napfényes konyha, étkező-nappali, fürdőszoba, mosókonyha, gardrób, 3 hálószoba, valamint egy különálló garzonlakás is, amelyben 19 nm-en konyha-nappali és egy fürdőszoba taláható, ami fölött galériás hálószoba kapott helyet. a 2022-ben épült ház tégla falazattal, cserépfedésű tetővel, betongerendás födémszerkezettel készült. Kiválóan szigetelt, fűtéséről energiatakarékos hőszivattyú gondoskodik, minden helyiségben padlófűtéssel! Az 1000 nm saját, körbekerített telkét a természet közelsége jellemzi, ahol 2 autó részére fedett parkolóhely is kialakításra került. a lakások külön mérőórákkal felszereltek, valamint a társasházi alapító okiratnak köszönhetően külön helyrajzi számmal kerülnek átadásra. Az otthon csendes, forgalomtól mentes utcában található, 1km távolságra buszmegállók is elérhetőek, de autóval számtalan szolgáltatóegység, Stop Shop, vonatmegálló, valamint m6 autópálya, 6-os, 7-es főút szintén pár perc alatt megközelíthető. a kínálatunkból választott ingatlan finanszírozásához az OTP Bank vevőinket kedvezményes hitelkonstrukcióval támogatja. a szerződés megkötéséhez igény esetén megbízható ügyvédi közreműködést biztosítunk. További információkért várom szeretettel megtisztelő érdeklődését!138000000 Ft
Referencia szám: m289175 FIX 3% lakáshitelre megvehető

