Eladó új építésű ház Fót
| Kedvencbe | Megosztás | Árfigyelő |
| FIX 3% lakáshitelre megvehető | ||
| 135 000 000 HUF | ||
Ingatlan adatai
- Eladó vagy kiadó:Eladó
- Település:Fót
- Kategória:Ház
- Alkategória:Ikerház
- Alapterület:142 m2
- Telekterület:500 m2
- Csere is:Nem
- Hirdető:Cég
- Élő videón megtekinthető:Nem
- Építés éve:2026
- Szobaszám:4 + 1 fél
- Állapot:Új építésű
- Hány szintes az ingatlan:nincs megadva
- Tetőtér:nincs megadva
- Komfortosság:nincs megadva
- Parkolási lehetőség:Garázsban
- Fűtés:nincs megadva
- Bútorozottság:nincs megadva
- Fényviszony:nincs megadva
- Tájolás:nincs megadva
- Kilátás:nincs megadva
- Internet:nincs megadva
- Klíma:Van
- Akadálymentesített:nincs megadva
- Energiatanúsítvány:nincs megadva
- Villany:Van
- Víz:Van
- Gáz:Van
- Csatorna:Van
- Üzenetküldés
- Hívás


Hitel ajánlat
Ingatlan hirdetés leírása
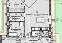
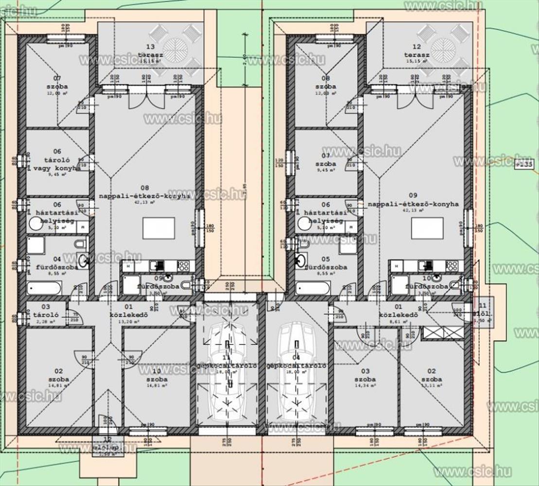
Fóton, új építésű, egyszintes, 4+1 szobás ikerház fél eladó
Eladó új építésű földszintes ikerház Fóton kertvárosi környezetben!START+
Megvételre kínálunk egy 142 m²-es, modern kialakítású földszintes ikerházat, amely nappali + 4 szobával, dupla komforttal, háztartási helyiséggel, tágas, világos terekkel és praktikus elrendezéssel garázzsal várja leendő tulajdonosát.
Főbb jellemzők:
• Energiahatékony hőszivattyús fűtés padlófűtéssel, amely garantálja az alacsony rezsiköltséget.
• Saját garázs, amely kényelmes parkolási lehetőséget biztosít.
• Nagy terasz és saját kert, tökéletes helyszín a pihenéshez és családi összejövetelekhez.
• Személyre szabható belső tér, a szaniterek, burkolatok és belső ajtók választhatók az egyedi igények szerint.
Ház helyiségei:
• amerikai konyhás nappali 42 nm
• hálószoba
• hálószoba
• hálószoba
• hálószoba
• zuhanyzós fürdőszoba
• fürdő
• előszoba
• közlekedő
• terasz 15, 15 nm
• garázs: 18, 00 nm
Műszaki tartalom:
• falazat 30 cm-es tégla, 15 cm szigeteléssel
• nyílászárók 3 rétegű, fehér hőszigetelt
• klíma előkészítés
• a fűtését hőszivattyús rendszer biztosítja, a hőleadás pedig padlófűtéssel történik.
• H - tarifa
Fótról pár szóban:
Ez a város Budapest szomszédságában található, de már a nyugalom szigete. Remek közlekedés, három vasútállomással büszkélkedhet, de séta távolságra található a buszmegálló is mellyel könnyedén elérhető Újpest városközpont és a környékbeli városok, települések. (M3, vonat, busz), természetközeli életérzés, de minden városi kényelem megmarad.
A város barátságos, családias hangulatú, számos szabadidős lehetőséggel és közösségi programmal – ide tényleg jó hazatérni.
Ne hagyja ki ezt a kivételes lehetőséget, hogy egy modern, kényelmes otthon tulajdonosa legyen!
Ebben a felgyorsult időszakban is, hitel szakértőink díjmentesen segítenek megtalálni a legjobb és a legideálisabb pénzintézetet a hitelfelvételhez, legyen az start +, CSOK + babaváró vagy lakás célú hitel!
További információért és megtekintésért hívjon bizalommal FIX 3% lakáshitelre megvehető

