Eladó ház - Fót
- INGYENES HIRDETÉS FELADÁS
Ingatlan adatai
- Eladó vagy kiadó:Eladó
- Település:Fót
- Kategória:Ház
- Alkategória:Ikerház
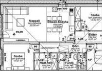
- Alapterület:103 m2
- Telekterület:300 m2
- Csere is:Nem
- Hirdető:Cég
- Élő videón megtekinthető:Nem
- Szobaszám:3
- Állapot:nincs megadva
- Hány szintes az ingatlan:nincs megadva
- Tetőtér:nincs megadva
- Komfortosság:nincs megadva
- Pince:Nincs
- Parkolási lehetőség:nincs megadva
- Fűtés:nincs megadva
- Bútorozottság:nincs megadva
- Fényviszony:nincs megadva
- Tájolás:nincs megadva
- Kilátás:nincs megadva
- Internet:nincs megadva
- Klíma:nincs megadva
- Akadálymentesített:nincs megadva
- Energiatanúsítvány:nincs megadva
- Villany:nincs megadva
- Víz:nincs megadva
- Gáz:nincs megadva
- Csatorna:nincs megadva
- Kapcsolatfelvétel

Czirják Mihály
+36-(20)-220-9995
Mondd meg a hirdetőnek, hogy a megveszLAK-on találtad a hirdetést.
Hitel ajánlatok
Ingatlan hirdetés leírása
Új Építésű földszintes ikerház eladó Fót egyik legkedveltebb r...
Új Építésű földszintes ikerház eladó Fót egyik legkedveltebb részén!
Költözzön Fót egyik legkedveltebb, új parcellázású részére! Eladó egy modern megjelenésű, 103 nm -es, földszintes ikerház, amely a legmagasabb energetikai elvárásoknak megfelelően épül. Ideális választás azoknak, akik a főváros közelében, mégis nyugodt, természetközeli környezetben keresnek minőségi otthont.
Műszaki tartalom és Fenntarthatóság:
Fűtés: Korszerű hőszivattyús rendszer, minden helyiségben padlófűtéssel.
Nyílászárók: 6 légkamrás, melegperemes, 3 rétegű üvegezés a tökéletes szigetelésért.
Személyre szabhatóság: a burkolatok, szaniterek és belső ajtók saját ízlés szerint választhatók, így az ingatlan valóban az Ön stílusát tükrözi majd!
Praktikus Elrendezés:
Tágas közösségi terek: Nappali, étkező és konyha egy légtérben, közvetlen kijárással a teraszra.
Privát szféra: 2 külön nyíló, világos hálószoba.
Kényelmi funkciók: Fürdőszoba, külön wc, háztartási helyiség.
Biztonság: Saját garázs az épületen belül.
Miért ezt az ingatlant válassza?
Várható átadás: 2026. November vége! Tervezze meg az év végét már az új otthonában! Megbízhatóság: Referenciákkal rendelkező, nagy múltú kivitelezőtől.
Kedvezmények: CSOK Plusz és illetékkedvezmények igénybe vehetők.
Díjmentes, profi hitelügyintézéssel segítjük az adásvételt, hogy a folyamat zökkenőmentes legyen.
Megtekinthető telefonos időpont-egyeztetés alapján: Czirják Mihály 20/220-9995 FIX 3% lakáshitelre megvehető
Tetszett ez az eladó Fóti 3 szobás ikerház? Hívd fel a hirdetőt most, és tudj meg mindent erről az eladó ikerházról! Ha gondolod nézelődj tovább az eladó ház Fót oldal hirdetései között. Ennek az eladó háznak az ára 135000000 Ft és mivel az alapterülete 103 négyzetméter, ezért az átlagos négyzetméterára 1310680 HUF/m2.
Az eladó házak menüpontban további hirdetések között is böngészhetsz. Ha van kedved, akkor böngészhetsz a Czirják Mihály összes hirdetése között, vagy akár a/az Dunakeszi Ingatlanközpont összes hirdetése között is.

