Eladó új építésű ház - Fót
- INGYENES HIRDETÉS FELADÁS
Ingatlan adatai
- Feladva:5 hónapja a megveszLAK-on
- Eladó vagy kiadó:Eladó
- Település:Fót
- Kategória:Ház
- Alkategória:Ikerház
- Alapterület:90 m2
- Telekterület:356 m2
- Csere is:Nem
- Hirdető:Cég
- Élő videón megtekinthető:Nem
- Építés éve:2026
- Szobaszám:3
- Állapot:Új építésű
- Hány szintes az ingatlan:Földszintes
- Tetőtér:nincs megadva
- Komfortosság:nincs megadva
- Pince:Nincs
- Parkolási lehetőség:Garázsban
- Fűtés:nincs megadva
- Bútorozottság:nincs megadva
- Fényviszony:nincs megadva
- Tájolás:nincs megadva
- Kilátás:nincs megadva
- Internet:nincs megadva
- Klíma:Van
- Akadálymentesített:nincs megadva
- Energiatanúsítvány:nincs megadva
- Villany:Van
- Víz:Van
- Gáz:nincs megadva
- Csatorna:Van
- Kapcsolatfelvétel

Kovács Péter
+36-(70)-418-1960
Mondd meg a hirdetőnek, hogy a megveszLAK-on találtad a hirdetést.
Hitel ajánlatok
Ingatlan hirdetés leírása
4657/1: Új építésű, földszintes, garázsos ikerházi lakás eladó...
Kedves Otthonkereső!
Új építésű, földszintes, garázsos ikerházi lakás eladó Fóton!
CÉGES építkezés, az aktuális állami támogatások valamint kedvezményes, kamattámogatott hitelek felvehetőek – akár a 3%-os otthon start hitel, CSOK plus, babaváró is igényelhető, az ügyintézésben díjmentesen segítünk!
Az építő munkájára jellemző a megbízhatóság és igényesség, leinformálható, referencia házai megtekinthetők.
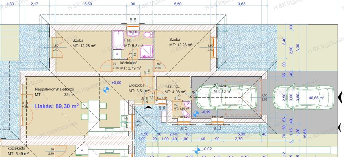
Az ikerház jobb oldali lakása amerikai konyhás nappali + 2 szobás, 90 nm -es alapterülettel, földszintes, 356 nm -es saját telekrésszel.
Rövid műszaki leírás:
A ház homlokzati falai 30-as Ytong téglából épülnek, 10 cm grafitos hőszigeteléssel. a tető Bramac beton cseréppel lesz fedett barna színben.
Az ablakok műanyag szerkezetűek, 3 rétegű hőszigetelő üvegezéssel, fehér színben.
Az ingatlan modern, hőszivattyús fűtés rendszerrel épül, a hő leadás padlófűtéssel történik.
+ Vállalások: riasztó rendszer, szobákba hűtő-fűtő klíma, elektromos kapunyitás
Helyiséglista: amerikai konyhás nappali 32 nm , 2 szoba 12, 28 nm és 12, 28 nm , fürdőszoba 5, 8 nm , háztartási helyiség 4 nm , külön wc 1, 56 nm , előtér 3, 51 nm , közlekedő 2, 79 nm , garázs 15 nm , terasz
Parkolás a garázsban és az udvari beállón lesz megoldott.
A lakás kulcsrakész állapotban kerül átadásra, konyhabútor nélkül.
Belső nyílászárók és a burkolatok választhatók, a belső műszaki tartalomban megjelölt összegig a vételár részét képezik.
A látványterv a lehetséges kialakítást és hangulatot szemlélteti. a tényleges megvalósítás az alaprajz és műszaki tartalom szerint történik. a berendezett kép csak egy látványterv, hogy könnyebb legyen elképzelni a tér lehetőségeit – az ingatlan a valóságban bútorozatlan.
Kulcsrakész ár: 105. 000. 000. - Ft
Azonosító: 4657/1 FIX 3% lakáshitelre megvehető
Tetszett ez az eladó Fóti új építésű 3 szobás ikerház? Hívd fel a hirdetőt most, és tudj meg mindent erről az eladó ikerházról! Ha gondolod nézelődj tovább az eladó ház Fót oldal hirdetései között. Ennek az eladó háznak az ára 105000000 Ft és mivel az alapterülete 90 négyzetméter, ezért az átlagos négyzetméterára 1166667 HUF/m2.
Az eladó házak menüpontban további hirdetések között is böngészhetsz. Ha van kedved, akkor böngészhetsz a Kovács Péter összes hirdetése között, vagy akár a/az H &K Ingatlaniroda összes hirdetése között is.

