Eladó új építésű ház Fót
| Kedvencbe | Megosztás | Árfigyelő |
| FIX 3% lakáshitelre megvehető | ||
| 144 500 000 HUF | ||
Ingatlan adatai
- Eladó vagy kiadó:Eladó
- Település:Fót
- Kategória:Ház
- Alkategória:Ikerház
- Alapterület:145 m2
- Telekterület:400 m2
- Csere is:Nem
- Hirdető:Cég
- Élő videón megtekinthető:Nem
- Építés éve:2026
- Szobaszám:5
- Állapot:Új építésű
- Hány szintes az ingatlan:nincs megadva
- Tetőtér:nincs megadva
- Komfortosság:nincs megadva
- Pince:Nincs
- Parkolási lehetőség:Garázsban
- Fűtés:nincs megadva
- Bútorozottság:Bútorozatlan
- Fényviszony:nincs megadva
- Tájolás:nincs megadva
- Kilátás:nincs megadva
- Internet:nincs megadva
- Akadálymentesített:nincs megadva
- Energiatanúsítvány:nincs megadva
- Villany:Van
- Víz:Van
- Gáz:nincs megadva
- Csatorna:Van
- Üzenetküldés
- Hívás


Hitel ajánlat
Ingatlan hirdetés leírása
4639/B1-B2: Fót legújabb, panorámás lakóparkjában épülő, ikerh...
Fót legújabb, panorámás lakóparkjában épülő, ikerházak eladók! !A lakások kizárólag a garázsokkal kapcsolódnak, így a lakótérből áthallás nincs, ezáltal szinte önálló családi ház érzetet biztosíthat!
CÉGES építkezés, az aktuális állami támogatások valamint kedvezményes, kamattámogatott hitelek felvehetőek – akár a 3%-os otthon start hitel, CSOK plus, babaváró is igényelhető, az ügyintézésben díjmentesen segítünk!
Az építő munkájára jellemző a megbízhatóság és igényesség, leinformálható, referencia házai megtekinthetők.
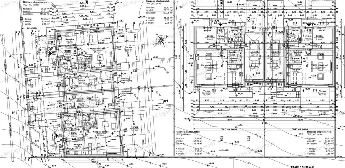
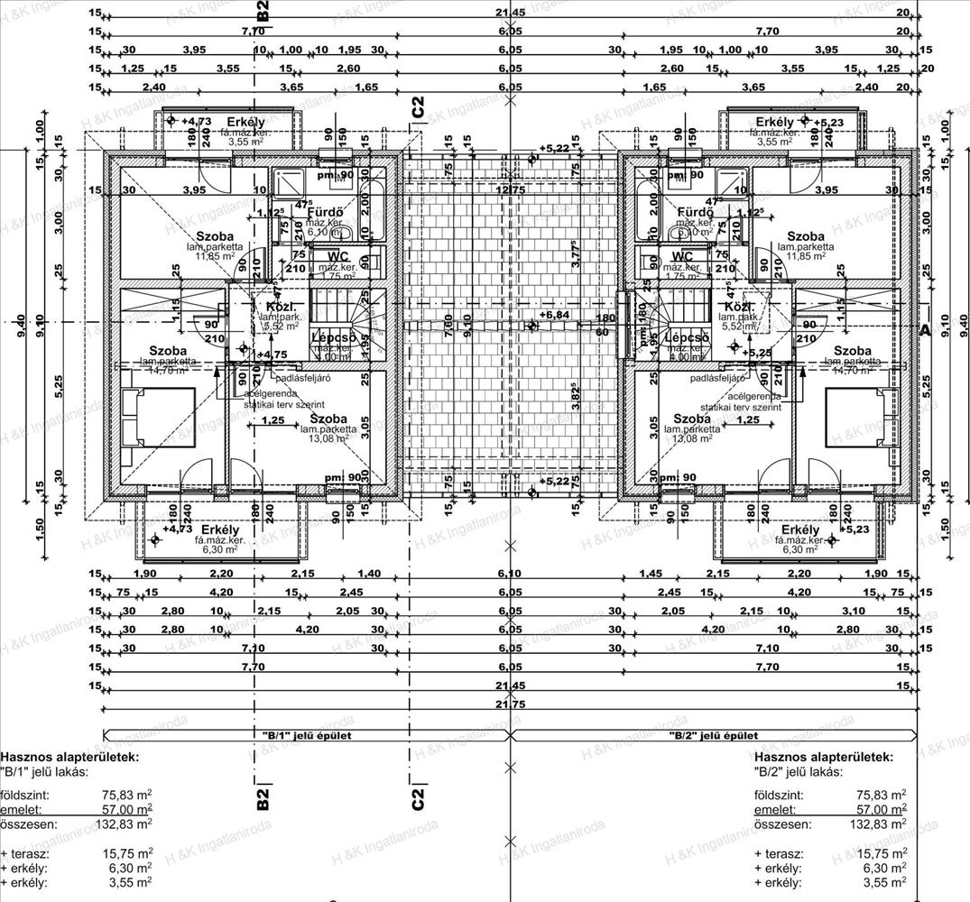
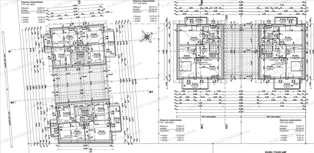
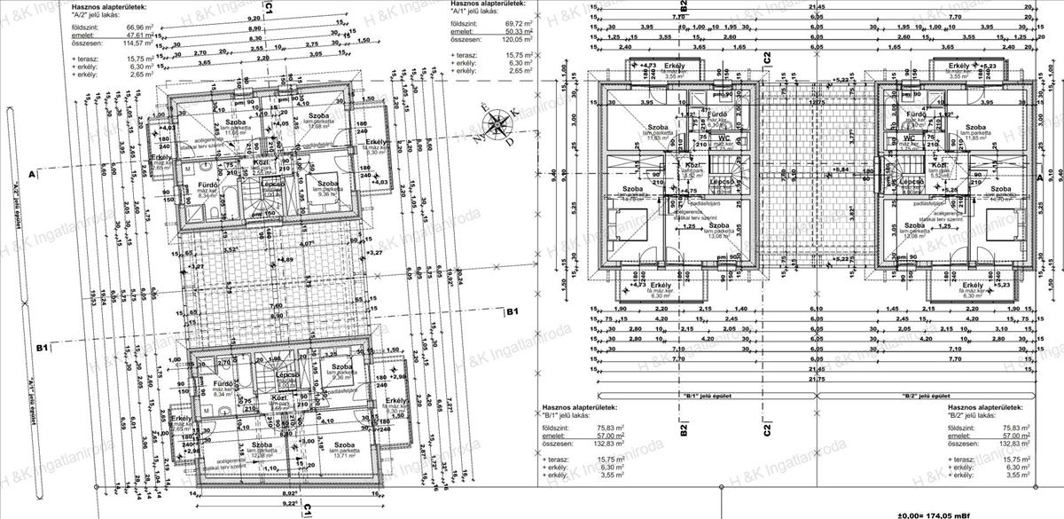
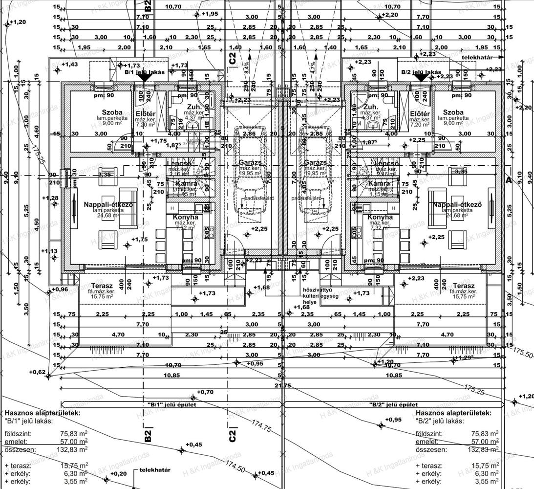
Az 1200 nm-es telekre két ikerház épül.
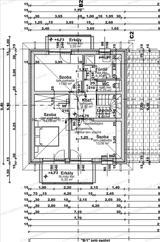
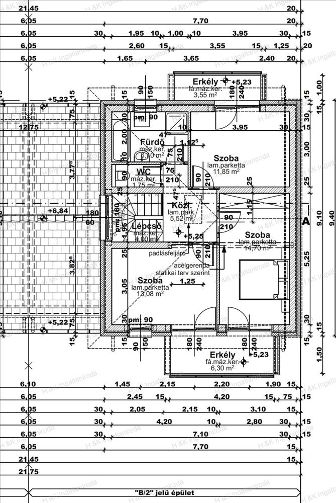
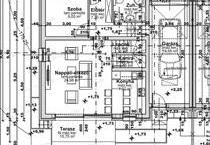
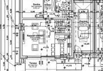
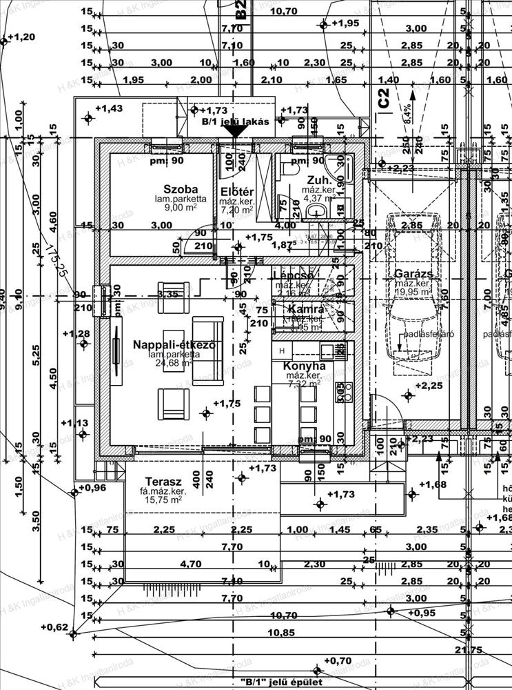
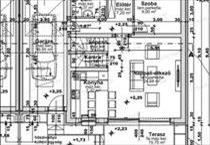
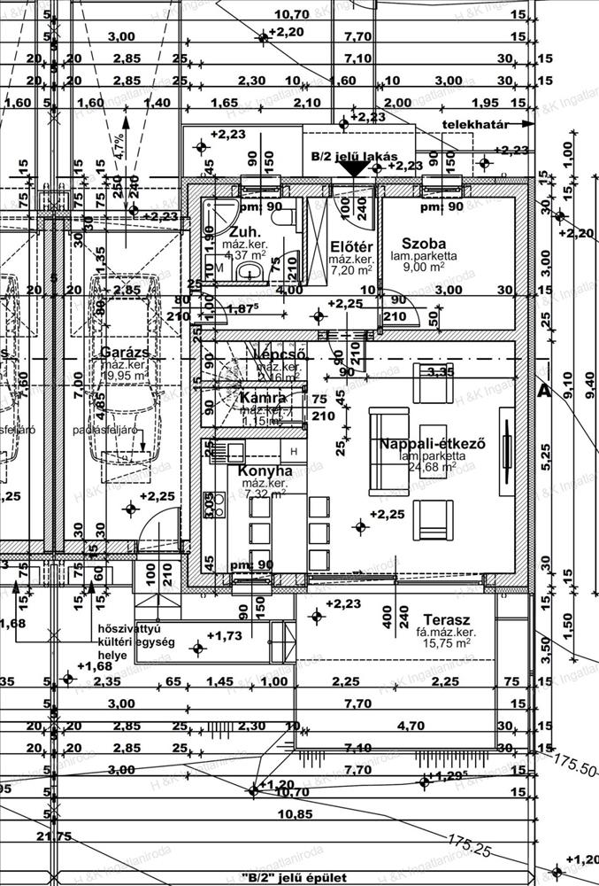
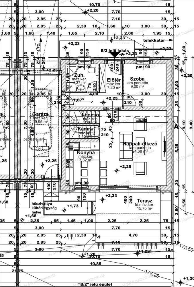
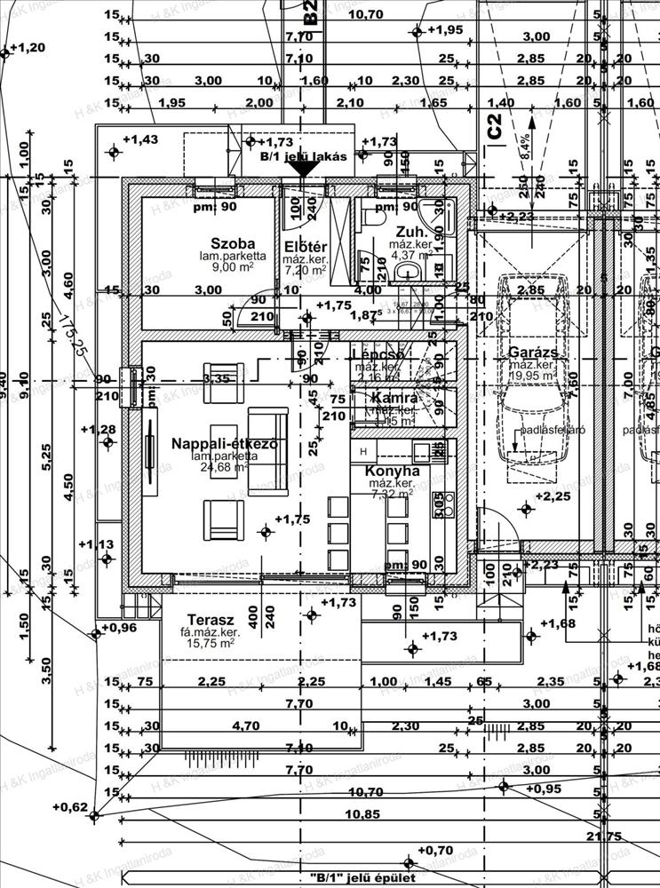
Jelen hirdetésben az B épület 1-es és 2-es lakása szerepel, mely hasznos lakóterülete a garázzsal 132, 83 nm + terasz + erkélyek, amerikai-konyhás nappali + 4 szobás, dupla-komfortos, kb. 400 Nm-es telekrésszel.
A földszint 75, 83 nm a garázzsal + terasz: amerikai konyhás nappali + fürdőszoba zuhanyzóval + kamra + előtér + terasz
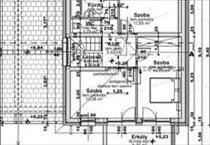
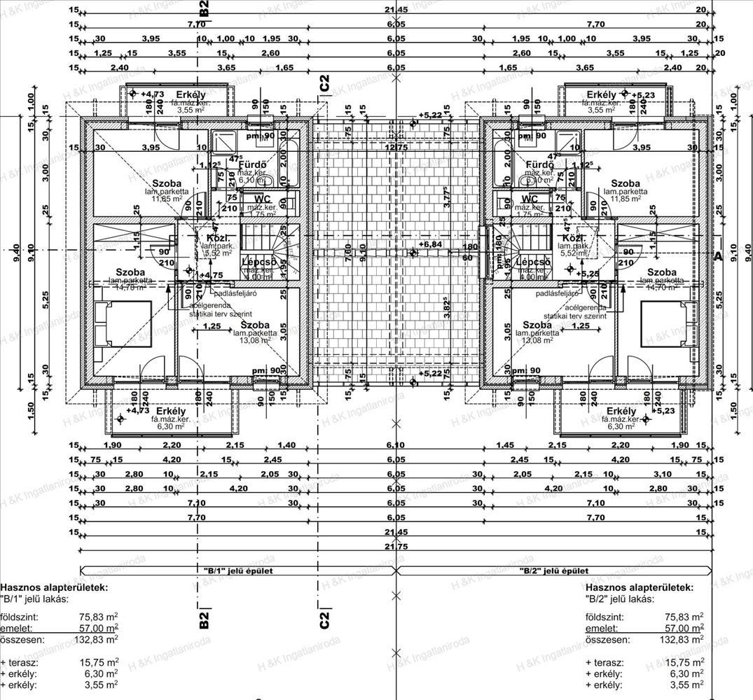
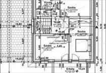
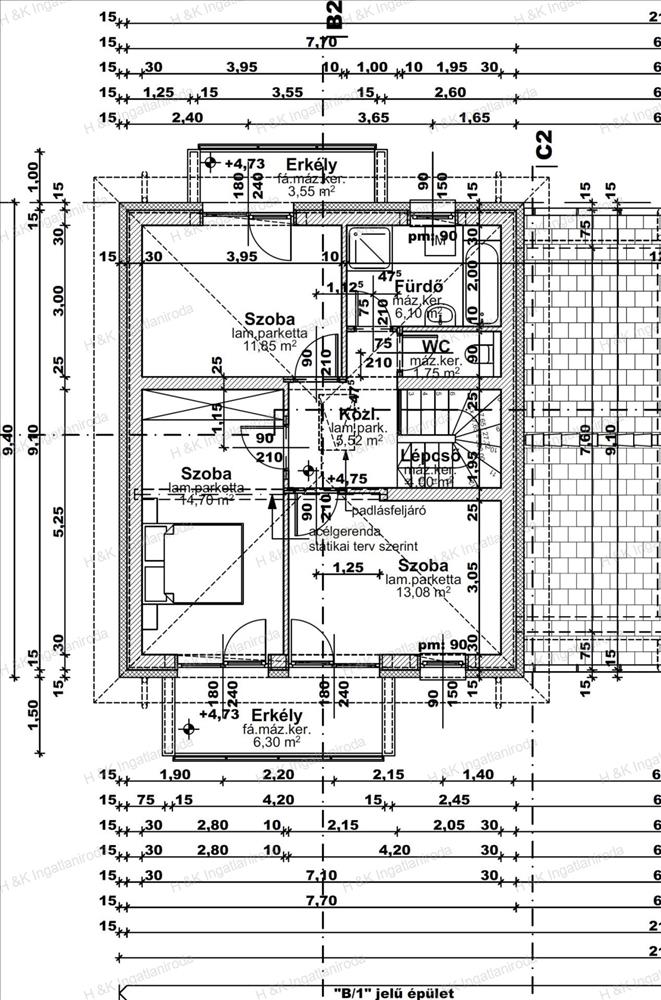
Az emelet 57 nm + 2 erkély: 3 hálószoba (mindegyik erkélykapcsolatos), fürdőszoba káddal, közlekedő
Rövid műszaki tartalom:
A főfalak Porotherm 30 n+f téglából épülnek, a válaszfalak pedig Porotherm 10 n+f téglából, 15 cm-es homlokzati szigeteléssel.
Prémium nyílászárók kerülnek beépítésre, kitűnő hő- és hangszigeteléssel
A fűtés modern hőszivattyús rendszerrel kerül kiépítésre, a hő leadás padlófűtéssel történik.
Az ingatlan kulcsrakész állapotban kerül átadásra, konyhabútor nélkül. Belső nyílászárók és a burkolatok választhatók, a belső műszaki tartalomban megjelölt összegig a vételár részét képezik.
A projekt részletes adataiért, valamint a többi lakással kapcsolatban is várjuk hívását.
Ára: 144, 5 M Ft
Azonosító: 4639/b1-b2 FIX 3% lakáshitelre megvehető

