Eladó új építésű ház - Fót
- INGYENES HIRDETÉS FELADÁS
Ingatlan adatai
- Eladó vagy kiadó:Eladó
- Település:Fót
- Kategória:Ház
- Alkategória:Ikerház
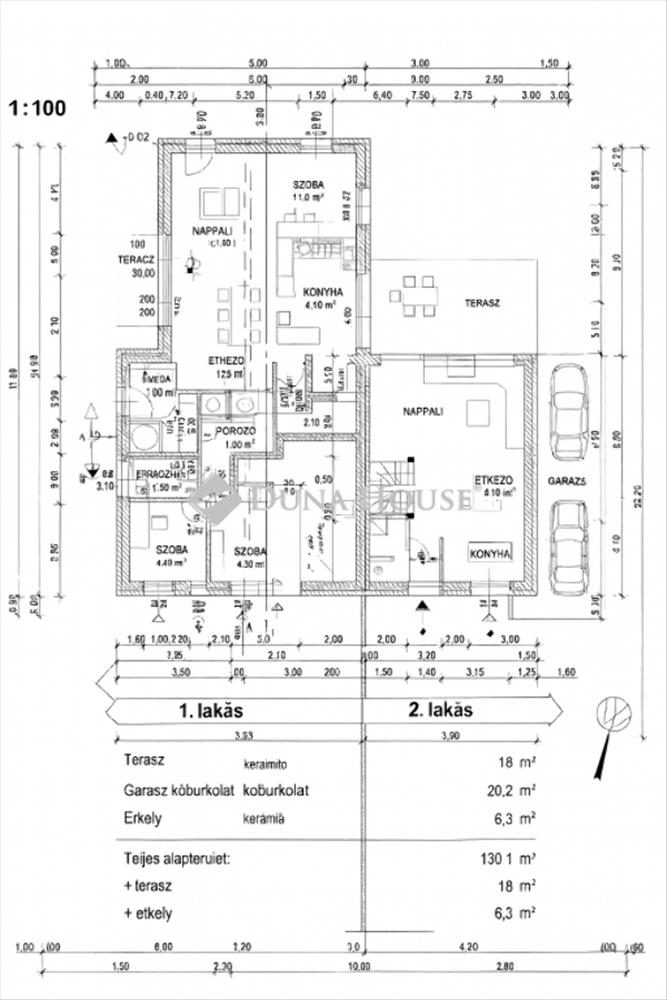
- Alapterület:132 m2
- Telekterület:423 m2
- Csere is:Nem
- Hirdető:Cég
- Élő videón megtekinthető:Nem
- Építés éve:2026
- Szobaszám:4
- Állapot:Új építésű
- Hány szintes az ingatlan:Földszintes
- Tetőtér:nincs megadva
- Komfortosság:nincs megadva
- Pince:nincs megadva
- Parkolási lehetőség:nincs megadva
- Fűtés:Hőszivattyús
- Bútorozottság:nincs megadva
- Fényviszony:Napfényes
- Tájolás:DNY
- Kilátás:nincs megadva
- Internet:nincs megadva
- Klíma:nincs megadva
- Akadálymentesített:nincs megadva
- Energiatanúsítvány:nincs megadva
- Villany:nincs megadva
- Víz:nincs megadva
- Gáz:nincs megadva
- Csatorna:nincs megadva
- Kapcsolatfelvétel

Balázs Mónika
+36-(20)-952-0602
Mondd meg a hirdetőnek, hogy a megveszLAK-on találtad a hirdetést.
Referencia szám: HZ058827
Hitel ajánlatok
Ingatlan hirdetés leírása
Eladó ház, Fót, Eladó új építésű ház - Fót
Új építésű ikerház álomotthon Fóton Csillagdomb projektÁtadás: 2026 márciusElhelyezkedés: Fót, Csillagdomb modern, családbarát környezetIngatlan típusa: ikerház külön bejárattal és saját telekkelFőbb paraméterek:Telek: 420 m² saját használatú területLakótér: 101, 9 m² jól átgondolt, praktikus elrendezésselGépkocsi-beálló: 28, 20 m²Erkély: 6, 3 m2Terasz: 18 m2Fűtés-hűtés: hőszivattyú, padlófűtés és mennyezethűtés a+ energiaosztálySzigetelés: 15 cm homlokzati hőszigetelésKialakítás: nappali + 3 hálószoba, két fürdőszoba, külön háztartási helyiség. Kivitelezés: magas műszaki tartalom, modern anyaghasználatKörnyezeti előnyök:Újonnan kialakított, rendezett utcák, zöldövezet, családias lakókörnyezetKiváló megközelíthetőség: Budapest 1520 perc autóval, jó tömegközlekedési kapcsolatokIskolák, óvodák, bevásárlási lehetőségek a közelbenMiért érdemes megtekinteni? Ez az ingatlan a modern komfort és a nyugodt kertvárosi élet tökéletes kombinációja. Az energiatakarékos megoldásoknak és a minőségi kivitelezésnek köszönhetően hosszú távon is értékálló otthon. Minden aktuális állami támogatás és hitel igénybe vehető. Érdeklődés:További információért és helyszíni megtekintésért keressen bizalommal a megadott elérhetőségen. Az ár, alaprajz és műszaki dokumentáció kérésre rendelkezésre állnak. Magas fokú hitel tanácsadásban is tudok segíteni teljesen díjmentesen! Hívjon bizalommal! FIX 3% lakáshitelre megvehető
Tetszett ez az eladó Fóti új építésű 4 szobás ikerház? Hívd fel a hirdetőt most, és tudj meg mindent erről az eladó ikerházról! Ha gondolod nézelődj tovább az eladó ház Fót oldal hirdetései között. Ennek az eladó háznak az ára 142600000 Ft és mivel az alapterülete 132 négyzetméter, ezért az átlagos négyzetméterára 1080303 HUF/m2.
Az eladó házak menüpontban további hirdetések között is böngészhetsz. Ha van kedved, akkor böngészhetsz a Balázs Mónika összes hirdetése között, vagy akár a/az Duna House Fót összes hirdetése között is.

