Eladó új építésű ház - Hajdúsámson
- INGYENES HIRDETÉS FELADÁS
Ingatlan adatai
- Feladva:63 napja a megveszLAK-on
- Eladó vagy kiadó:Eladó
- Település:Hajdúsámson
- Kategória:Ház
- Alkategória:Ikerház
- Alapterület:118 m2
- Telekterület:457 m2
- Csere is:Nem
- Hirdető:Cég
- Élő videón megtekinthető:Nem
- Építés éve:2026
- Szobaszám:4
- Állapot:Új építésű
- Hány szintes az ingatlan:nincs megadva
- Tetőtér:nincs megadva
- Komfortosság:nincs megadva
- Pince:nincs megadva
- Parkolási lehetőség:nincs megadva
- Fűtés:nincs megadva
- Bútorozottság:nincs megadva
- Fényviszony:nincs megadva
- Tájolás:DK
- Kilátás:nincs megadva
- Internet:nincs megadva
- Klíma:nincs megadva
- Akadálymentesített:nincs megadva
- Energiatanúsítvány:nincs megadva
- Villany:Van
- Víz:Van
- Gáz:Nincs
- Csatorna:Van
- Kapcsolatfelvétel

Szaszala Zsolt
+36-(70)-469-3681
Mondd meg a hirdetőnek, hogy a megveszLAK-on találtad a hirdetést.
Hitel ajánlatok
Ingatlan hirdetés leírása
FIGYELEM! ÚJ ÉPÍTÉSŰ, DÉLI FEKVÉSŰ IKERHÁZ ELADÓ – GARÁZZSAL, ...
Figyelem! Új építésű, déli fekvésű ikerház eladó – garázzsal, saját telekkel, kiemelkedő ÁRON!
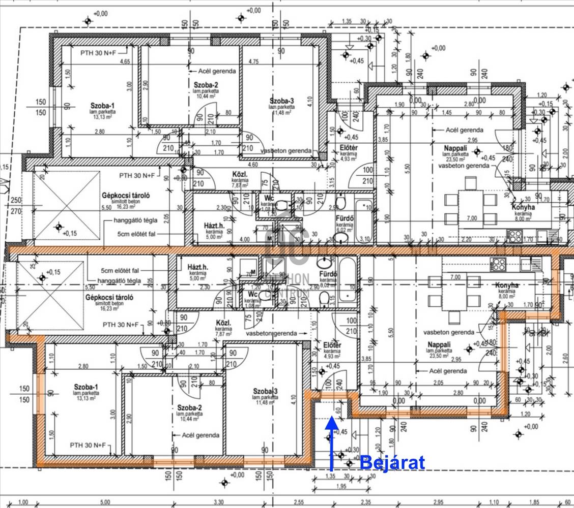
Debrecen vonzáskörzetében, Hajdúsámson - Sámsonkert fejlődő részén, 108 m²-es, egyszintes ikerház, 457 m² saját telekrésszel eladó. Az ikerház déli fekvésű, így a lakótér egész nap világos és kellemesen benapozott. a két lakás közül már csak a jobb oldali lakás érhető el!
Kulcsrakész, modern otthon garázzsal, 59 millió Ft. – a négyzetméterár mindössze 546. 000 Ft,
A 24 méteres utcafronttal rendelkező telekrész külön is kiemelkedő értékű, mindössze 12, 9 millió Ft.
A vételár 71. 9 Millió Ft ( ház+telek)
Helyiségek
-Előszoba
-3 külön nyíló szoba
-Tágas, 38 m²-es nappali – étkező – konyha egy légtérben
-Fürdőszoba sarokkáddal, zuhannyal és WC-vel
-Külön WC
-Háztartási helyiség / mosókonyha
-Nappaliból nyíló terasz
-Garázs
Műszaki tartalom
-Porotherm 30 nf tégla falazat
-15 cm külső hőszigetelés
-30 cm födémszigetelés
-12 cm aljzatszigetelés
-5 légkamrás, 3 rétegű műanyag nyílászárók
-Hőszivattyús fűtési rendszer padlófűtéssel
Az ár tartalmazza a hátsó és oldalsó kerítést, valamint 1 db klímaberendezést.
Átadás
Az ingatlan kulcsrakész állapotban, legkésőbb 2026. 12. 30-Ig elkészül.
Debrecenben egy 70 m²-es panel lakás ára gyakran eléri ezt az összeget – garázs és saját telek nélkül.
Finanszírozás
Az ingatlanra banki hitel és CSOK is igényelhető.
Ne maradjon le róla – már csak az egyik ikerház elérhető!
További információért, alaprajzokért vagy megtekintésért hívjon bizalommal! FIX 3% lakáshitelre megvehető
Tetszett ez az eladó Hajdúsámsoni új építésű 4 szobás ikerház? Hívd fel a hirdetőt most, és tudj meg mindent erről az eladó ikerházról! Ha gondolod nézelődj tovább az eladó ház Hajdúsámson oldal hirdetései között. Ennek az eladó háznak az ára 73900000 Ft és mivel az alapterülete 118 négyzetméter, ezért az átlagos négyzetméterára 626271 HUF/m2.
Az eladó házak menüpontban további hirdetések között is böngészhetsz. Ha van kedved, akkor böngészhetsz a Szaszala Zsolt összes hirdetése között, vagy akár a/az Otthon Centrum Debrecen - Hatvan utca összes hirdetése között is.

