Eladó újszerű állapotú ház - Hajdúsámson
- INGYENES HIRDETÉS FELADÁS
Ingatlan adatai
- Feladva:4 hónapja a megveszLAK-on
- Eladó vagy kiadó:Eladó
- Település:Hajdúsámson
- Kategória:Ház
- Alkategória:Ikerház
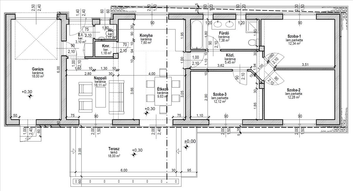
- Alapterület:80 m2
- Telekterület:400 m2
- Csere is:Nem
- Hirdető:Cég
- Élő videón megtekinthető:Nem
- Építés éve:2026
- Szobaszám:4
- Állapot:Újszerű, kitűnő
- Hány szintes az ingatlan:nincs megadva
- Tetőtér:nincs megadva
- Komfortosság:nincs megadva
- Pince:nincs megadva
- Parkolási lehetőség:nincs megadva
- Fűtés:Gáz (cirko)
- Bútorozottság:nincs megadva
- Fényviszony:nincs megadva
- Tájolás:nincs megadva
- Kilátás:nincs megadva
- Internet:nincs megadva
- Klíma:nincs megadva
- Akadálymentesített:nincs megadva
- Energiatanúsítvány:nincs megadva
- Villany:nincs megadva
- Víz:nincs megadva
- Gáz:nincs megadva
- Csatorna:nincs megadva
- Kapcsolatfelvétel

Biró Zsolt
+36-(30)-749-8827
Mondd meg a hirdetőnek, hogy a megveszLAK-on találtad a hirdetést.
Hitel ajánlatok
Ingatlan hirdetés leírása
Sámsonkert központjában, 80 m2-es, N+3 szobás, padlófűtéses, k...
Sámsonkertben, a Szűcs utca mellett, 2026. Év végi átadással, 80 m2-es, nappali+ 3 szobás, padlófűtéses ikerház, garázzsal, terasszal, magas műszaki tartalommal, saját 400 m2-es telekkel eladó!
Jellemzői:
- Sámsonkert központja mellett épül, kiváló helyen
- a ház új építésű, a belső még igény szerint alakítható
- Porotherm® 30 n+f tégla falazat
- Beton tetőcserép
- 15 cm Austrotherm® at-h80 hőszigetelés a homlokzati falakon, mely biztosítja az alacsony fűtési költséget
- 30 cm Rockwool® Multirock hőszigetelés a födémen
- 10 cm Austrotherm® at-n100 aljzatszigetelés
- a fűtést az ingatlanba egyedileg beépített, méretezett kondenzációs kazán biztosítja
- Hőszivattyús fűtéssel is kérhető (+ 3 MFt)
- Padlófűtés kerül kialakításra, igény szerint helyiségenként külön termosztát szabályzással
- Hő- és hangszigetelt ablakok: 3 rétegű, 6 légkamrás, műanyag profilrendszerű, horganyzott idomacél merevítéssel (0, 6 W/m2K)
- Napelem előkészítés
- hd felbontású kamera rendszer előkészítés
- Riasztórendszer előkészítés
- Elektromos vezérelhető, alumínium redőny előkészítés
- Inverteres, hűtő-fűtő klíma az árban
- Amerikai konyhás nappali
- Belső kialakítás flexibilis, az Ön elképzelése szerint alakítunk ki mindent
- Választható burkolatok: Kerámia burkolat 6 000 Ft/m2-ig, laminált parketta 6 000 Ft/m2-ig a vételárban
- 18 m2-es terasz
- 18 m2-es garázs
- Térkövezés szintén a vételárban
- Tömegközlekedés kiváló!
Igény szerint füvesítés, parkosítás, öntözőrendszer, sziklakert, bográcsozási lehetőség, pergolla, filagória kialakításra kerülhet, igy Önnek csak költöznie kell!
Rezsiátlag alatti az energiafogyasztása az ingatlannak, így az új rezsiszabályozással is alacsony marad a fenntartási költsége!
Babaváró, illetékmentesség, Otthon Start 3 %-os hitel, csok+ igénybe vehető a házra!
Nálunk illetékmentes a vásárlás!
Várható befejezés: 2026. December 31.
Irányár: 57 MFt (hivatkozási szám: m124420) FIX 3% lakáshitelre megvehető
Tetszett ez az eladó Hajdúsámsoni újszerű állapotú 4 szobás ikerház? Hívd fel a hirdetőt most, és tudj meg mindent erről az eladó ikerházról! Ha gondolod nézelődj tovább az eladó ház Hajdúsámson oldal hirdetései között. Ennek az eladó háznak az ára 57000000 Ft és mivel az alapterülete 80 négyzetméter, ezért az átlagos négyzetméterára 712500 HUF/m2.
Az eladó házak menüpontban további hirdetések között is böngészhetsz. Ha van kedved, akkor böngészhetsz a Biró Zsolt összes hirdetése között.

