Eladó új építésű ház - Jászberény
- INGYENES HIRDETÉS FELADÁS
Ingatlan adatai
- Eladó vagy kiadó:Eladó
- Település:Jászberény
- Kategória:Ház
- Alkategória:Ikerház
- Alapterület:92 m2
- Telekterület:399 m2
- Csere is:Nem
- Hirdető:Cég
- Élő videón megtekinthető:Nem
- Építés éve:2025
- Szobaszám:3
- Állapot:Új építésű
- Hány szintes az ingatlan:Földszintes
- Tetőtér:nincs megadva
- Komfortosság:nincs megadva
- Pince:nincs megadva
- Parkolási lehetőség:Beállóban
- Fűtés:nincs megadva
- Bútorozottság:nincs megadva
- Fényviszony:nincs megadva
- Tájolás:nincs megadva
- Kilátás:nincs megadva
- Internet:nincs megadva
- Klíma:nincs megadva
- Akadálymentesített:nincs megadva
- Energiatanúsítvány:nincs megadva
- Villany:Van
- Víz:Van
- Gáz:Utcában
- Csatorna:Van
- Kapcsolatfelvétel

Horváth Péter
+36-(70)-606-2990
Mondd meg a hirdetőnek, hogy a megveszLAK-on találtad a hirdetést.
Hitel ajánlatok
Ingatlan hirdetés leírása
Jászberényben a Szatmári lakóparkban a Bársony utában, 798 m2-...
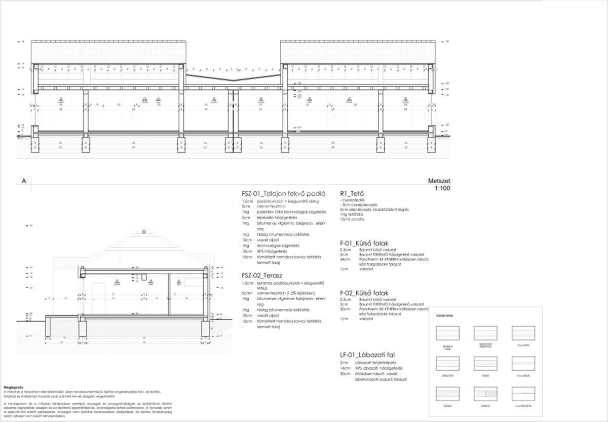
Jászberényben a Szatmári lakóparkban a Bársony utában, 798 m2-es telken, eladó 2db nettó 85, 32m2-es + 12, 83m2 terasszal és 16, 31 m2-es gépkocsibeállóval rendelkező, 30-as Porotherm p30 n+f tégla falazóelemmel épült, fafödémes, 3 szoba plusz amerikaikonyha- nappalis kertkapcsolatos Ikerházfél.
A jobb oldali ikerfél elkelt.
Az ingatlan tetejét Terran betoncseréppel fedték, a 7 légkamrás Aluplast nyílászárók korszerű 3 rétegű üveggel szerelt műanyag thermo kivitelűek, gránit párkányokkal, aluminium elektromos távirányítható okos redőnnyökkel és szúnyoghálóval. a belső nyílászárók cpl dekorfóliás prémium minőségűek.
A homlokzatok 15cm dryvit szigeteléssel, a padló 15cm lépésálló szigeteléssel, a födém 30 cm szórt purhab szigeteléssel lett ellátva. a két egymás melletti lakást elválasztó falai, Wienerberger Porotherm 30 aku Z 30 léghanggátló kézi falazóblokkból készültek, az áthallás kizárásának érdekében.
A fűtésről a melegvíz ellátásáról és a hűtésről energiahatékony Bosch 11 kw-os split rendszerű hőszivattyú gondoskodik, uponor padlófűtésrendszer segítségével indirekt puffertartállyal.
A magas minőségű műszaki tartalom szerint, minőségi szaniterek, Geberit falsík mögötti wc tartályok, Teka csaptelepek, legrand kapcsolók és konnektorok kerültek beépítésre.
Az első osztályú nagykopásállóságú melegburkolatok és hideg burkolatok, Spanyol és Olasz minőségi termékek.
A padlásterek külön padlásfeljárón megközelíthetőek és burkoltak így lehetőséget kínálnak a tárolásra.
Saját felszíni kocsibeállón van lehetőség a parkolásra két autó részére. a parkosított udavron gyepszőnyeg került kialakításra, autómata öntözőrendszerrel.
A biztonságért riasztórendszerek felelnek.
A társasházi alapító okiratnak köszönhetően minden lakás külön helyrajzi számot kapott.
Kérésre az ingatlan teljes tervdokumentációja, hatósági bizonyítványa rendelkezésre áll.
INGYENES hitel tanácsadás, CSOK Plusz ügyintézés!
BANKFÜGGETLEN hitelcentrumunk az összes elérhető bank és hitelintézet ajánlatát versenyezteti az Ön kedvéért, ráadásul DÍJMENTESEN.
- Egyedi, bankfiókban nem elérhető kamat- és díjkedvezmények
- Hitelképesség vizsgálat
- Idő, energia és pénz megtakarítás
- Teljes hivatali ügyintézés
Amennyiben hirdetésem felkeltette az érdeklődését vagy egyéb információra van szüksége hívjon bizalommal! FIX 3% lakáshitelre megvehető

