Eladó új építésű ház - Keszthely
- INGYENES HIRDETÉS FELADÁS
Ingatlan adatai
- Eladó vagy kiadó:Eladó
- Település:Keszthely
- Kategória:Ház
- Alkategória:Ikerház
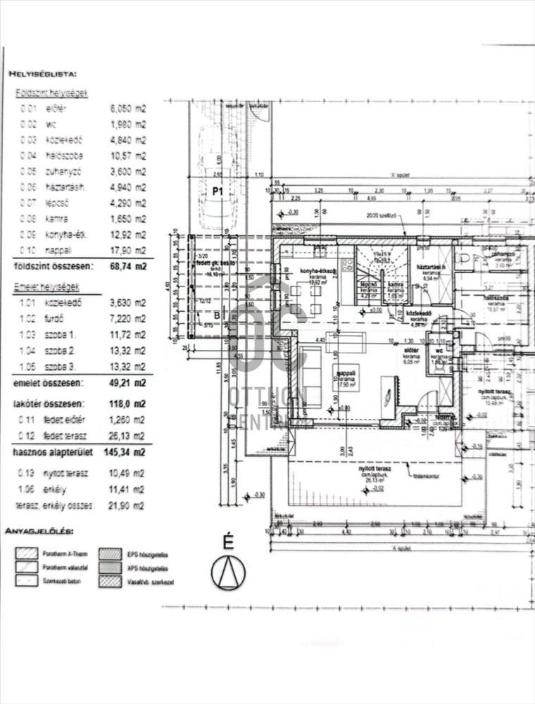
- Alapterület:145 m2
- Telekterület:450 m2
- Csere is:Nem
- Hirdető:Cég
- Élő videón megtekinthető:Nem
- Építés éve:2026
- Szobaszám:5
- Állapot:Új építésű
- Hány szintes az ingatlan:nincs megadva
- Tetőtér:nincs megadva
- Komfortosság:nincs megadva
- Pince:nincs megadva
- Parkolási lehetőség:nincs megadva
- Fűtés:nincs megadva
- Bútorozottság:nincs megadva
- Fényviszony:nincs megadva
- Tájolás:D
- Kilátás:nincs megadva
- Internet:nincs megadva
- Klíma:nincs megadva
- Akadálymentesített:nincs megadva
- Energiatanúsítvány:nincs megadva
- Villany:Van
- Víz:Van
- Gáz:Utcában
- Csatorna:Van
- Kapcsolatfelvétel

Hitel ajánlatok
Ingatlan hirdetés leírása
Keszthely kertvárosi részén, csendes, nyugodt környezetben IKE...
Keszthely kertvárosi részén, csendes, nyugodt környezetben
IKERHÁZFÉL ELADÓ!
A lakóparki új építésű ingatlan főbb jellemzői:
- a belső két szintes ingatlan lakótere összesen: 118 m2
- terasz mérete:36 m2
- erkély mérete: 11 m2
- saját udvarrész mérete: 450 m2
- 2 térkövezett, nyitott gépkocsibeálló
- falazat: 30-as tégla
- külső szigetelés vastagsága: 15 cm
- nyílászárók : 3 rétegű műanyag
- fűtés: padlófűtés hőszivattyúval
- hűtés: mennyezethűtés
- szobákban melegburkolat, többi helyiségben járólap
- belső falszín: fehér
- gondozott, lakóparki zárt udvar, távirányítós kapuval
- szaniterek, kapcsolók, lámpák, szerelvények tekintetében az új tulajdonosnak kell kiválasztania, megvásárolnia, felszerelését viszont az ár tartalmazza
Amennyiben az ingatlan felkeltette érdeklődését, és szeretne egy csendes, nyugodt környéken élni, mégis néhány km-es távolságra mind a Hévízi-Gyógytótól, mind pedig a Balatontól, kérem hívjon bizalommal!
Az adatok kizárólag a megbízóink által rendelkezésünkre bocsátott információkon alapulnak. Fentiekre tekintettel az adatok teljességéért, helyességéért és aktualitásáért nem vállalunk felelősséget. Az árváltozás, adatmódosítás és közbeni értékesítés jogát fenntartjuk, mindezekért jogi felelősséget nem áll módunkban vállalni. FIX 3% lakáshitelre megvehető
Tetszett ez az eladó Keszthelyi új építésű 5 szobás ikerház? Hívd fel a hirdetőt most, és tudj meg mindent erről az eladó ikerházról! Ha gondolod nézelődj tovább az eladó ház Keszthely oldal hirdetései között. Ennek az eladó háznak az ára 129000000 Ft és mivel az alapterülete 145 négyzetméter, ezért az átlagos négyzetméterára 889655 HUF/m2.
Az eladó házak menüpontban további hirdetések között is böngészhetsz. Ha van kedved, akkor böngészhetsz a Horváth Anita összes hirdetése között, vagy akár a/az Otthon Centrum Keszthely - Kossuth Lajos utca összes hirdetése között is.
További hirdetéseket találsz az eladó Balaton északi parti nyaralók között. Ha a teljes régió kínálata érdekel, nézd meg az eladó Balatoni nyaralók oldalt.

