Eladó új építésű ház - Monor
- INGYENES HIRDETÉS FELADÁS
Ingatlan adatai
- Eladó vagy kiadó:Eladó
- Település:Monor
- Kategória:Ház
- Alkategória:Ikerház
- Alapterület:86 m2
- Telekterület:350 m2
- Csere is:Nem
- Hirdető:Cég
- Élő videón megtekinthető:Nem
- Építés éve:2026
- Szobaszám:4
- Állapot:Új építésű
- Hány szintes az ingatlan:nincs megadva
- Tetőtér:nincs megadva
- Komfortosság:nincs megadva
- Pince:Nincs
- Parkolási lehetőség:Garázsban
- Fűtés:nincs megadva
- Bútorozottság:nincs megadva
- Fényviszony:nincs megadva
- Tájolás:nincs megadva
- Kilátás:nincs megadva
- Internet:Optikai
- Klíma:Van
- Akadálymentesített:nincs megadva
- Energiatanúsítvány:nincs megadva
- Villany:Van
- Víz:Van
- Gáz:Van
- Csatorna:Van
- Kapcsolatfelvétel

Horváth Zoltán
+36-(70)-550-6680
Mondd meg a hirdetőnek, hogy a megveszLAK-on találtad a hirdetést.
Hitel ajánlatok
Ingatlan hirdetés leírása
Megvételre kínálunk Monoron egy újépítésű, HÓSZIVATTYÚS, KLÍMÁ...
Megvételre kínálunk Monoron egy új építésű, hószivattyús, klímás, garázsos, teraszos, 86 nm -es, 4 szobás ikerházat. Minőségi alapanyagokból, igényes kivitelezés jellemzi a projektet, ahol a biztonság és a kényelem mellett az energiatakarékosság volt a fő szempont. Az ingatlan fűtéséről, egy modern, energia takarékos, innovatív levegő-víz hőszivattyú, míg a használati melegvíz ellátásáról egy hőszivattyús bojler gondoskodik H tarifás üzemeltetéssel.
Ennek köszönhetően a rezsi költségek minimalizálódnak.
Az ingatlan hűtéséről egy klíma berendezés fog gondoskodni.
Ennél a beruházásnál most lehetősége van kompromisszumok nélkül egy olyan lakásba költözni, ahol Ön kiválaszthatja a hideg és meleg burkolatokat, szanitereket, valamint az egyéb kiegészítőket a családja legnagyobb megelégedésére, ez által személyre szabva álmai otthonát.
A kulcsra kész ár tartalmazza a redőnyöket, három rétegű nyílászárókat, riasztó előkészítést, kaputelefon és motoros kapu kiépítést. a gépjárművekkel az ingatlanhoz tartozó garázsban vagy a térkövezett beállón lehet biztonságosan parkolni.
Az ingatlanhoz megközelítőleg egy 350 nm -es privát telek tartozik.
Igénybe vehető lehetséges kedvezmények:
CSOK
5% Áfa visszatérítés
Babaváró hitel
Illeték kedvezmény vagy mentesség.
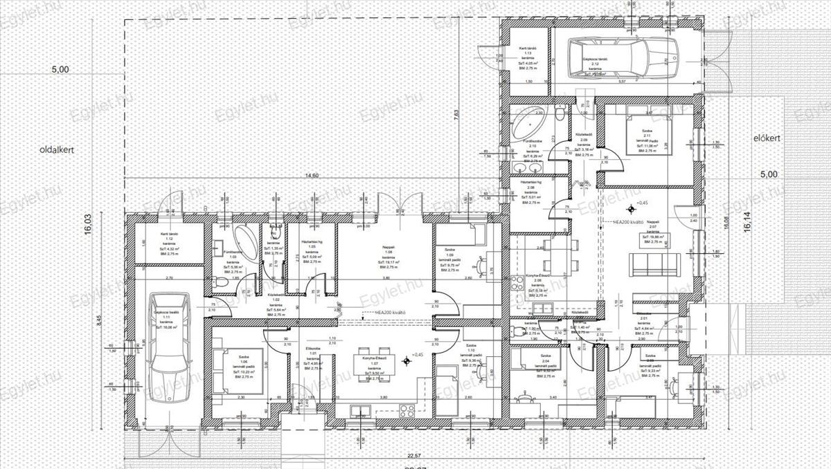
Helyiség lista:
- Előszoba
- Közlekedő
- Háztartási helyiség
- wc, mosdó
- Három hálószoba
- Fürdőszoba
- Amerikai konyha,
- Étkező
- Nappali
- Tároló
- Terasz
- Garázs
A hirdetés referencia fotókat is tartalmaz.
Az ingatlan biztonságos, nyugodt, csendes, kertes házas övezetében, Monor egyik legszebb részén található. a környék fejlett infrastruktúrájának köszönhetően bővelkedik a szociális intézményekben, bölcsőde, óvoda, általános iskola, orvosi intézmények, bevásárlási lehetőségek, találhatóak a közelben.
Közlekedése kiváló, busszal a centrum vagy vonattal a Nyugati pu. Rövid idő alatt megközelíthető. Az M4-es autópálya öt perc alatt elérhető.
Hitel, CSOK igénylésben díjmentes ügyintézéssel állunk rendelkezésére! Nálunk kiválaszthatja az Ön számára legkedvezőbb ajánlatot.
Várom megtisztelő érdeklődésüket. FIX 3% lakáshitelre megvehető
Tetszett ez az eladó Monori új építésű 4 szobás ikerház? Hívd fel a hirdetőt most, és tudj meg mindent erről az eladó ikerházról! Ha gondolod nézelődj tovább az eladó ház Monor oldal hirdetései között. Ennek az eladó háznak az ára 79700000 Ft és mivel az alapterülete 86 négyzetméter, ezért az átlagos négyzetméterára 926744 HUF/m2.
Az eladó házak menüpontban további hirdetések között is böngészhetsz. Ha van kedved, akkor böngészhetsz a Horváth Zoltán összes hirdetése között, vagy akár a/az Egylet.hu összes hirdetése között is.

