Eladó újszerű állapotú ház Pécel
| Kedvencbe | Megosztás | Árfigyelő |
| FIX 3% lakáshitelre megvehető | ||
| 139 000 000 HUF | ||
Ingatlan adatai
- Eladó vagy kiadó:Eladó
- Település:Pécel
- Kategória:Ház
- Alkategória:Ikerház
- Alapterület:200 m2
- Telekterület:352 m2
- Csere is:Nem
- Hirdető:Cég
- Élő videón megtekinthető:Nem
- Építés éve:2023
- Szobaszám:6
- Állapot:Újszerű, kitűnő
- Hány szintes az ingatlan:2 szintes
- Tetőtér:nincs megadva
- Komfortosság:nincs megadva
- Parkolási lehetőség:Teremgarázsban
- Fűtés:Gáz (cirko)
- Bútorozottság:nincs megadva
- Fényviszony:Napfényes
- Tájolás:nincs megadva
- Kilátás:nincs megadva
- Internet:nincs megadva
- Klíma:Van
- Akadálymentesített:nincs megadva
- Energiatanúsítvány:B
- Villany:nincs megadva
- Víz:nincs megadva
- Gáz:nincs megadva
- Csatorna:nincs megadva
- Üzenetküldés
- Hívás

Sasaran-Kereki Katalin
Mondd meg a hirdetőnek, hogy a megveszLAK-on találtad a hirdetést.
Referencia szám: M299558

Hitel ajánlat
Ingatlan hirdetés leírása
Eladó Ház, Pécel, Eladó újszerű állapotú ház - Pécel
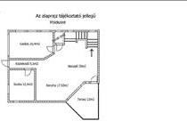
Prémium minőségű kivitelezés!Pécelen - annak is Budapesthez legközelebb eső felén - eladó egy 2023-ban elkészült ikerházfél. 352m2-es telken áll a ház. 4 Háló, 2 nappali, duplakomfort biztosítja a tulajdonosok kényelmét.
Minden szobához panorámás terasz tartozik az emeleten.
Teraszok, 15, 35m2, 8m2, és 22 m2.
A telek körbe van kerítve. Az ikerszomszédtól még nincs lekerítve. Rendezett kert és gyönyörű panorámás fedett teraszok jellemzik az ingatlant.
Műszaki adatok: beton alapon 36cm-es tégla falak.
Tetőn 30 cm, homlokzaton 15 cm hungarocell szigetelés van.
Tetőn beton cserép található.
Tetőszigetelés, párazáró fólia, 30 cm kőzetgyapot, hőtükrös reflex fólia van, illetve beton födém.
Érdemes megtekinteni!
A kínálatunkból választott ingatlan finanszírozásához kedvezményes hitel- és lízingkonstrukciókat, csok, falusi CSOK megoldásokat kínálunk.
m299558
139000000 Ft
Referencia szám: m299558 FIX 3% lakáshitelre megvehető

