Eladó befejezetlen ház - Pomáz (89572357)
ELADÓ INGATLANOK
KIADÓ INGATLANOK
CSERE INGATLANOK
KÜLFÖLDI INGATLANOK
RÉSZLETES KERESÉS
INGATLAN HÍREK
HIRDETÉS FELADÁS
BELÉPÉS
REGISZTRÁCIÓ

Ingatlan adatai

  • Eladó vagy kiadó:Eladó
  • Település:Pomáz
  • Kategória:Ház
  • Alkategória:Ikerház
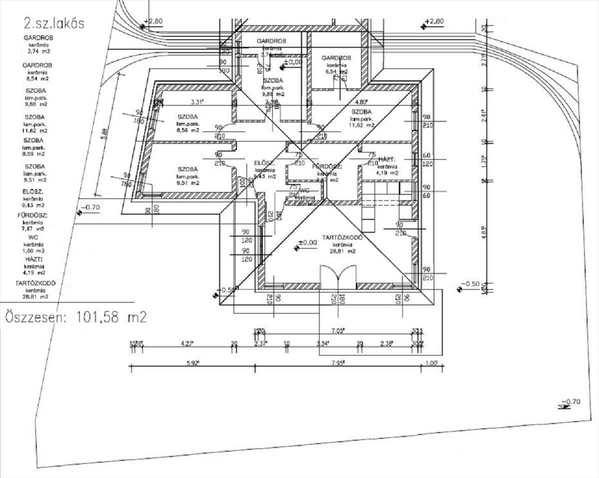
  • Alapterület:115 m2
  • Telekterület:340 m2
  • Csere is:Nem
  • Hirdető:Cég
  • Élő videón megtekinthető:Nem
  • Építés éve:2025
  • Szobaszám:5
  • Állapot:Befejezetlen
  • Hány szintes az ingatlan:Földszintes
  • Tetőtér:nincs megadva
  • Komfortosság:nincs megadva
  • Pince:Nincs
  • Parkolási lehetőség:Udvaron
  • Fűtés:nincs megadva
  • Bútorozottság:nincs megadva
  • Fényviszony:nincs megadva
  • Tájolás:nincs megadva
  • Kilátás:nincs megadva
  • Internet:nincs megadva
  • Klíma:Van
  • Akadálymentesített:nincs megadva
  • Energiatanúsítvány:nincs megadva
  • Villany:Van
  • Víz:Van
  • Gáz:Nincs
  • Csatorna:Van
  • Kapcsolatfelvétel
02. Tóth Helga - Hirde...
02. Tóth Helga - Hirde...
+36-(30)-255-5500
Mondd meg a hirdetőnek, hogy a megveszLAK-on találtad a hirdetést.
Érdekel kedvezményes lakáshitel ajánlat is
Az ASZF-et és az Adatkezelési tájékoztatót elfogadom

Hitel ajánlatok

 

Ingatlan hirdetés leírása

Pomázon a Meselia déli oldalában egy szintes, nappali + 4 háló...


Pomázon a Meselia déli oldalában, csendes környezetben 340 nm -es saját, kizárólagos használatú kerttel rendelkező, egy szintes, nappali + 4 hálószobás ikerház-fél eladó.

Az építéssel kapcsolatos paraméterek:
- Tervezett átadás: szerződés kötéstől számított egy éven belül
- hőszivattyús fűtés, padlófűtéssel, radiátorokkal
- magas minőségű hőszigetelés, zöld hitelnek megfelelő energetikai besorolás
- több rétegű, műanyag nyílászárók
- választható belső burkolatok, szaniterek
- riasztó rendszer előkészítés
- 30 nm -es, az amerikai konyhás nappalihoz kapcsolódó terasz
- durva tereprendezés
- kulcsrakész átadás
Finanszírozási lehetőség:
- Zöld hitel kompatibilitás
- CSOK (10+15m) hitel, illeték mentesség, Áfa visszatérítés igényelhető.
- Az alaprajz igény szerint még módosítható.

A beruházó a környék elismert építési vállalkozója, rengeteg referenciamunkával rendelkezik. FIX 3% lakáshitelre megvehető

Tetszett ez az eladó Pomázi befejezetlen 5 szobás ikerház? Hívd fel a hirdetőt most, és tudj meg mindent erről az eladó ikerházról! Ha gondolod nézelődj tovább az eladó ház Pomáz oldal hirdetései között. Ennek az eladó háznak az ára 122900000 Ft és mivel az alapterülete 115 négyzetméter, ezért az átlagos négyzetméterára 1068696 HUF/m2.

Az eladó házak menüpontban további hirdetések között is böngészhetsz. Ha van kedved, akkor böngészhetsz a 02. Tóth Helga - Hirdetünk ön helyett! összes hirdetése között, vagy akár a/az Körültekintő Ingatlan - hirdetünk ön helyett! összes hirdetése között is.

 
 
© megveszLAK.hu - Az egyszerűen jó ingatlan hirdetési oldal