Eladó új építésű ház - Szentendre
- INGYENES HIRDETÉS FELADÁS
Ingatlan adatai
- Eladó vagy kiadó:Eladó
- Település:Szentendre
- Kategória:Ház
- Alkategória:Ikerház
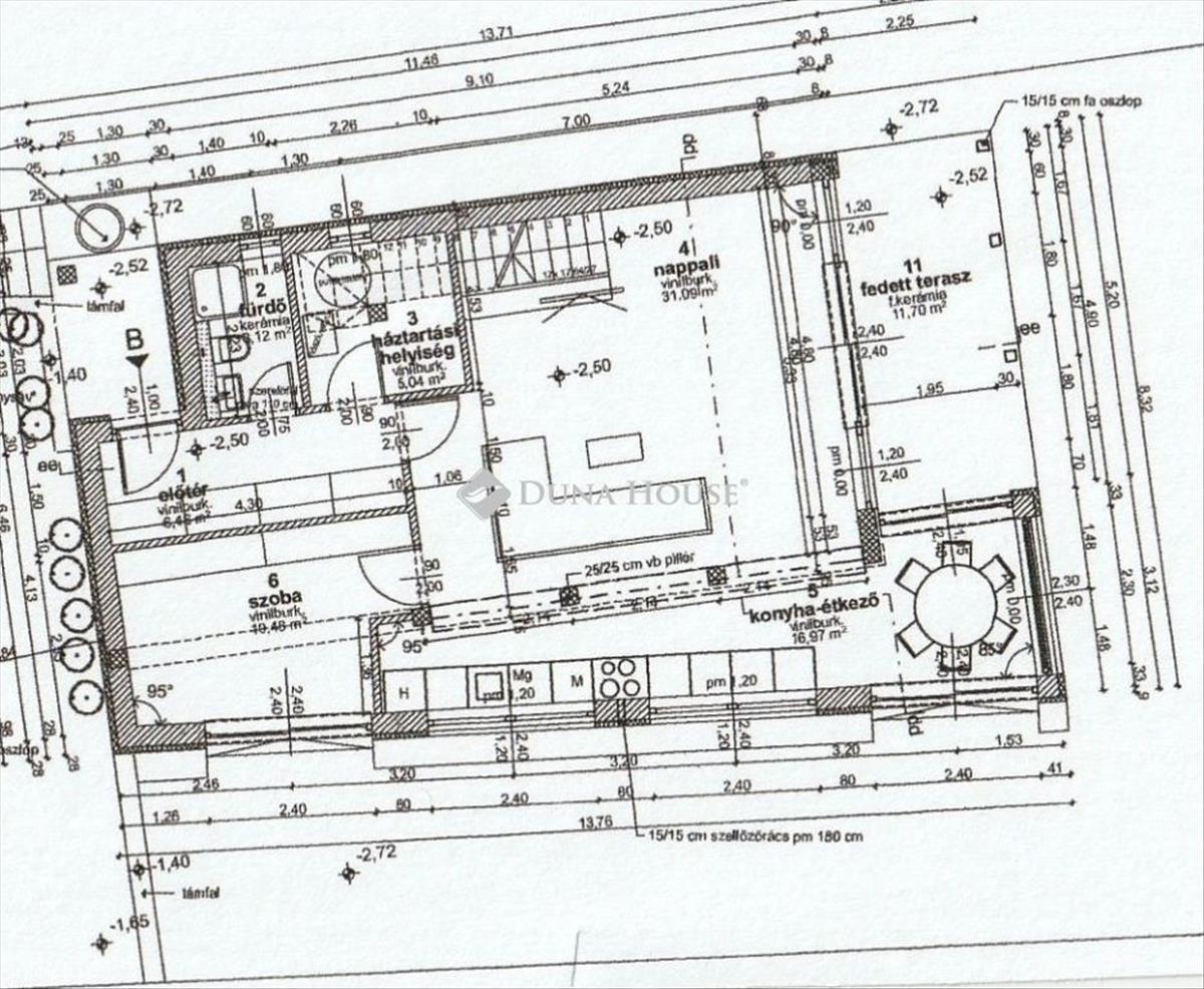
- Alapterület:122 m2
- Telekterület:300 m2
- Csere is:Nem
- Hirdető:Cég
- Élő videón megtekinthető:Nem
- Építés éve:2026
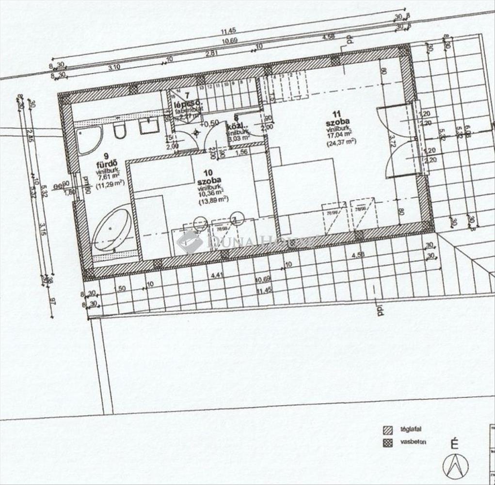
- Szobaszám:4
- Állapot:Új építésű
- Hány szintes az ingatlan:2 szintes
- Tetőtér:nincs megadva
- Komfortosság:nincs megadva
- Pince:nincs megadva
- Parkolási lehetőség:nincs megadva
- Fűtés:Hőszivattyús
- Bútorozottság:nincs megadva
- Fényviszony:Napfényes
- Tájolás:K
- Kilátás:nincs megadva
- Internet:nincs megadva
- Klíma:nincs megadva
- Akadálymentesített:nincs megadva
- Energiatanúsítvány:nincs megadva
- Villany:nincs megadva
- Víz:nincs megadva
- Gáz:nincs megadva
- Csatorna:nincs megadva
- Kapcsolatfelvétel

Dr. Nagy Gabriella
+36-(30)-915-5514
Mondd meg a hirdetőnek, hogy a megveszLAK-on találtad a hirdetést.
Referencia szám: HZ066221
Hitel ajánlatok
Ingatlan hirdetés leírása
Eladó ház, Szentendre
Az egyetlen új építésű ingatlan Szentendre belvárosában! Kivételes lehetőséget kínálunk! Osztatlan, összesen 600nm -es telken két ház épül, melyből itt a bejárattól távolabbi ingatlan kerül bemutatásra. (A látványterveken ez az egyenes ház)A telek 300nm -es, az épülő lakóház, belső két szinten összesen 122nm . Minőségi anyagokból épülő, kíváló ár-érték arányú ingatlant kínálunk megvételre! a kaputól térkővel burkolt járda vezet az elegáns bejárathoz. a földszinten tágas előtérbe érkezünk. Itt található az ingatlan központi részét adó hatalmas nappali az egybe nyitott, nem szokványos formàjú étkezős konyhával. Ezen a szinten helyet kap még egy hálószoba, fürdőszoba wc-vel és egy háztartási helyiség. a nappaliból a 12nm -es fedett teraszra érkezünk, mely kíválóan alkalmas egy meghitt kávézásra, vagy akár egy családi összejövetel megtartására is. Az emeleten két külön bejáratú hàlószoba, tágas fürdőszoba wc-vel és tetőterasz kerül kialakításra. a fűtésről levegős hőszivattyú rendszer gondoskodik radiátorokon keresztül. Az ablakok 5 légkamrás műanyag nyílászárók 3 réteggű üvegezéssel. Kívül-belül fehér színazonos műanyag párkánnyokkal. Érdeklődés esetén a teljes műszaki tartalom elérhető! Kulcsrakész ára: 165. 000. 000Ft + kocsibeálló 10. 000. 000FtRendezett udvar, saját intim kert. Csend és nyugalom, a Duna közelsége. Legyen az Öné és családjáé mindez! Várom megtisztelő érdeklődését!
Vételár 165000000 Ft
☎️+36-30-915-5514
Egyeztessünk időpontot!
Referencia szám: hz066221 Hitel.hu - Hasonlítsa össze a bankok lakáshitel ajánlatait
Tetszett ez az eladó Szentendrei új építésű 4 szobás ikerház? Hívd fel a hirdetőt most, és tudj meg mindent erről az eladó ikerházról! Ha gondolod nézelődj tovább az eladó ház Szentendre oldal hirdetései között. Ennek az eladó háznak az ára 165000000 Ft és mivel az alapterülete 122 négyzetméter, ezért az átlagos négyzetméterára 1352459 HUF/m2.
Az eladó házak menüpontban további hirdetések között is böngészhetsz. Ha van kedved, akkor böngészhetsz a Dr. Nagy Gabriella összes hirdetése között, vagy akár a/az Duna House Aquincum összes hirdetése között is.

