- >>
- eladó ingatlanok
- >>
- eladó ház
- >>
- eladó ház Szentendre
- >>
Eladó felújított ház - Szentendre
| | |||
| Kedvencnek jelölöm | Elküldöm emailben | Megosztás | Szavazás |
| FIX 3% lakáshitelre megvehető | |||
| 149 900 000 HUF | |||
Ingatlan adatai
- Eladó vagy kiadó:Eladó
- Település:Szentendre
- Kategória:Ház
- Alkategória:Ikerház
- Alapterület:135 m2
- Telekterület:400 m2
- Csere is:Nem
- Hirdető:Cég
- Élő videón megtekinthető:Nem
- Építés éve:2026
- Szobaszám:3 + 2 fél
- Állapot:Felújított
- Hány szintes az ingatlan:nincs megadva
- Tetőtér:nincs megadva
- Komfortosság:nincs megadva
- Parkolási lehetőség:nincs megadva
- Fűtés:Egyéb
- Bútorozottság:nincs megadva
- Fényviszony:nincs megadva
- Tájolás:nincs megadva
- Kilátás:nincs megadva
- Internet:nincs megadva
- Klíma:Van
- Akadálymentesített:nincs megadva
- Energiatanúsítvány:nincs megadva
- Villany:nincs megadva
- Víz:nincs megadva
- Gáz:nincs megadva
- Csatorna:nincs megadva
- Üzenetküldés
- Hívás


Hitel ajánlat
Ingatlan hirdetés leírása
Eladó Szentendrén a Füzesparkban egy 135 nm-es, nappali+4 szob...
Eladó Szentendrén a Füzesparkban egy 135 nm-es, nappali+4 szobás ikerházfél, 400 nm-es telken, kiváló lokációval.A ház komplett felújítás alatt áll, 3 szintes, DK-i fekvésű és egy 400 nm-es sík telken fekszik.
Várható átadás: 2026. II. Negyedév
Műszaki adatok:
- Falazata: 40 cm-es tégla + 15 cm eps szigeteléssel
- Födémek: vasbeton
- Tető: nyeregtető-kerámia cserépfedéssel
- Tetőszigetelés: 25 cm kőzetgyapot
- Nyílászárók: 7 légkamrás, fehér műanyag, 3 rétegű üvegezéssel
- Fűtése: H tarifáról működő hőszivattyú-padlófűtéssel
- Elektromos garázskapu
- Elektromos kapu
- Napelem vezetékek kiépítése
- H villanyóra kivezetékelése fogadószekrényig
- Elektromos autótöltő vezeték kiállása
- Riasztó kiépítés előkészülete
- 2, 70 m belmagasság
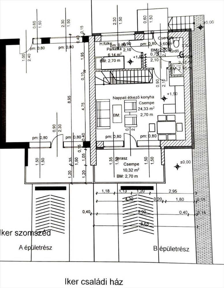
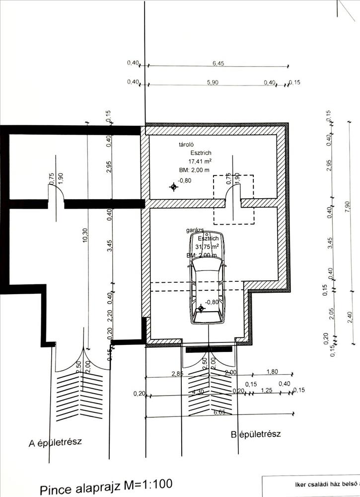
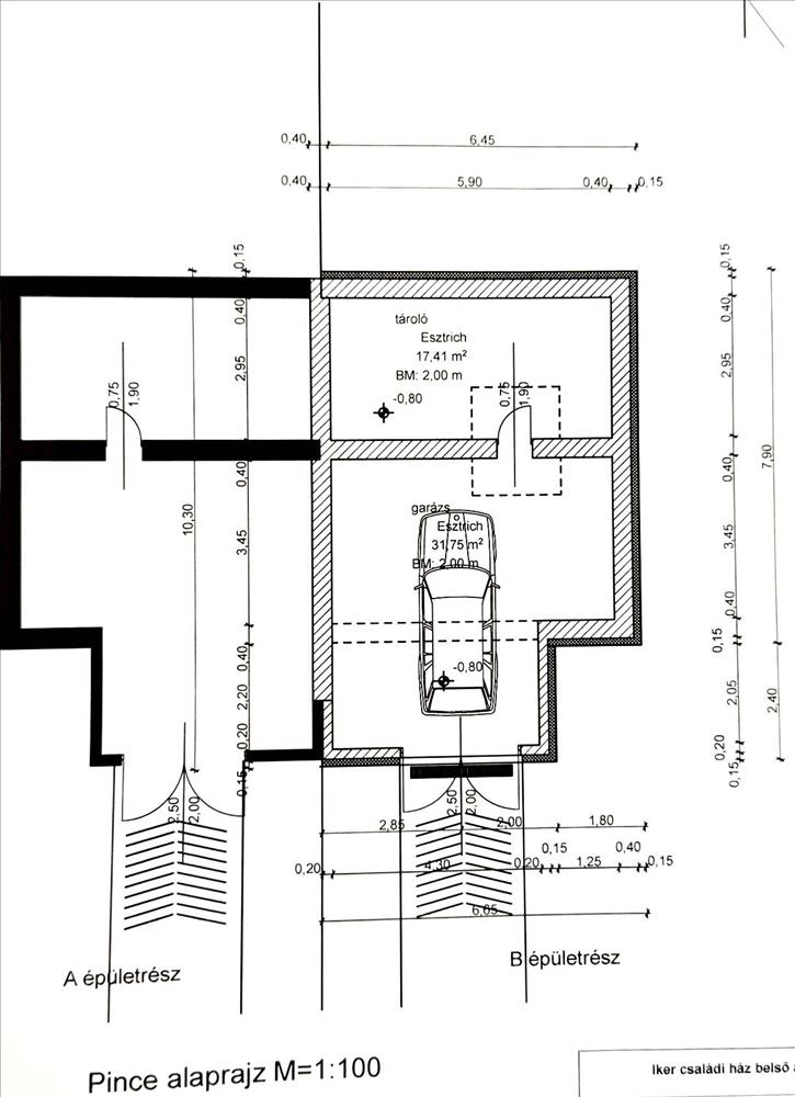
Helyiséglista:
- Pince: 1 autós garázs, tároló-háztartási helyiség
- Földszint: amerikai konyhás nappali-étkezővel-teraszkapcsolattal, hálófülke, tusolós fürdőszoba-wc vel
- Emelet: hálószoba-teraszkapcsolattal, hálófülke, kádas fürdőszoba-wc-vel
- Tetőtér: hálószoba, gardrób
Még saját igényeire szabhatja leendő otthonát!
Választható: burkolatok, belsőajtók, lámpák, csapok, szaniterek
Részletes műszaki tartalomért keressenek.
A belső képek illusztrációk!
A konyhabútort nem tartalmazza az ár!
Lokációja kiváló!
Családi házas övezet.
Gyógyszertár, bolt, buszmegálló pár perc sétára. Iskolák, óvodák, orvosi rendelők, Egészségház a közelben. ( 10-15 Percre gyalogosan)
A hév állomás, buszállomás 10 percre autóval, tömegközlekedéssel 4-5 megálló.
A belváros kényelmes sétával 15 percre.
A kivitelező számos referenciával rendelkezik, Szentendrén és Pomázon is.
Várom hívását a hét bármely napján! FIX 3% lakáshitelre megvehető

