Eladó új építésű ház - Vecsés
- INGYENES HIRDETÉS FELADÁS
Ingatlan adatai
- Feladva:5 hónapja a megveszLAK-on
- Eladó vagy kiadó:Eladó
- Település:Vecsés
- Kategória:Ház
- Alkategória:Ikerház
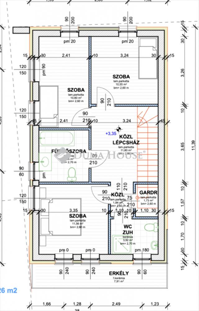
- Alapterület:140 m2
- Telekterület:238 m2
- Csere is:Nem
- Hirdető:Cég
- Élő videón megtekinthető:Nem
- Építés éve:2026
- Szobaszám:5
- Állapot:Új építésű
- Hány szintes az ingatlan:Földszintes
- Tetőtér:nincs megadva
- Komfortosság:nincs megadva
- Pince:nincs megadva
- Parkolási lehetőség:nincs megadva
- Fűtés:Hőszivattyús
- Bútorozottság:nincs megadva
- Fényviszony:Napfényes
- Tájolás:DNY
- Kilátás:nincs megadva
- Internet:nincs megadva
- Klíma:nincs megadva
- Akadálymentesített:nincs megadva
- Energiatanúsítvány:nincs megadva
- Villany:nincs megadva
- Víz:nincs megadva
- Gáz:nincs megadva
- Csatorna:nincs megadva
- Kapcsolatfelvétel

Káplár Ildikó
+36-(30)-468-9905
Mondd meg a hirdetőnek, hogy a megveszLAK-on találtad a hirdetést.
Referencia szám: HZ023020
Hitel ajánlatok
Ingatlan hirdetés leírása
Eladó ház, Vecsés, Eladó új építésű ház - Vecsés
Eladó új építésű, kétszintes ikerházfél Vecsés központjában modern kialakítás, saját garázzsal, terasszal és udvarrésszel! Vecsés egyik legkeresettebb, legnagyobb presztízsű részén, a Fő út közelében, kiváló infrastruktúrával rendelkező területen megvételre kínálunk egy 140 m²-es, új építésű ikerházfelet. a projekt átadása 2026. I. Negyedévében várható. Ez az ingatlan egyedülálló lehetőséget kínál azoknak, akik korszerű, energiahatékony otthont keresnek Vecsés központjában. Főbb jellemzők:* Alapterület: 140 m²* Telek területe: 256 m²* Szerkezet: Ytong falazat, kiváló hő- és hangszigeteléssel* Fűtés: hőszivattyú* Szintek: földszint + emelet* Gépkocsibeállás: garázs + külső parkolóhely (10-20 m-re az ingatlantól)* Terasz és óvott udvarrész* Erkély a felső szinten, a hálószobákból közvetlen kijárattal* a ház a garázsnál kapcsolódik az ikerfélhez, ezáltal teljesen szeparált, intimitása és önállósága megmaradt. Választható belső elemek:* Hideg- és melegburkolatok 7. 000 Ft/m² árig* Belső ajtók 100. 000 Ft/db árig* Szaniterek 600. 000 Ft értékhatárigMűszaki felszereltség:* Korszerű hőszivattyús fűtési rendszer* Hőszigetelt, 3 rétegű nyílászárók* Elektromos redőny és klímaelőkészítés* Igényes, minőségi burkolatok és szaniterekElhelyezkedés:* Iskola: közvetlenül az utca túloldalán* Bevásárlási lehetőségek: Market Centrál, Lidl, Aldi néhány perc autóval* Busz- és vasútállomás gyalogosan is közel* Budapest központja kb. 20 Perc alatt elérhető autóval vagy tömegközlekedésselMiért érdemes megtekinteni? * Kiváló lokáció Vecsés legkeresettebb része* Modern, energiatakarékos technológia* Magas műszaki tartalom* Saját garázs, udvar és terasz* Tökéletes választás családoknak és befektetőknek egyarántEz az ikerházfél egy olyan új építésű otthon, ahol a modern technológia és a kénylem találkozik a kiváló elhelyezkedéssel. a kivitelezés magas minőségű, a ház építése folyamatban van, az átadás 2026 tavaszára várható. Érdeklődés esetén több információval, alaprajzzal és személyes egyeztetési lehetőséggel állok rendelkezésre. Ügyvédi közreműködés és hitelügyintézés egy helyen.
Referencia szám: hz023020 FIX 3% lakáshitelre megvehető
Tetszett ez az eladó Vecsési új építésű 5 szobás ikerház? Hívd fel a hirdetőt most, és tudj meg mindent erről az eladó ikerházról! Ha gondolod nézelődj tovább az eladó ház Vecsés oldal hirdetései között. Ennek az eladó háznak az ára 149000000 Ft és mivel az alapterülete 140 négyzetméter, ezért az átlagos négyzetméterára 1064286 HUF/m2.
Az eladó házak menüpontban további hirdetések között is böngészhetsz. Ha van kedved, akkor böngészhetsz a Káplár Ildikó összes hirdetése között, vagy akár a/az Duna House Maglód összes hirdetése között is.

