- >>
- eladó ingatlanok
- >>
- eladó ház
- >>
- eladó ház Vecsés
- >>
Eladó új építésű ház - Vecsés
| | |||
| Kedvencnek jelölöm | Elküldöm emailben | Megosztás | Szavazás |
| FIX 3% lakáshitelre megvehető | |||
| 140 000 000 HUF | |||
Ingatlan adatai
- Eladó vagy kiadó:Eladó
- Település:Vecsés
- Kategória:Ház
- Alkategória:Ikerház
- Alapterület:149 m2
- Telekterület:505 m2
- Csere is:Nem
- Hirdető:Cég
- Élő videón megtekinthető:Nem
- Építés éve:2025
- Szobaszám:5
- Állapot:Új építésű
- Hány szintes az ingatlan:Földszintes
- Tetőtér:nincs megadva
- Komfortosság:nincs megadva
- Parkolási lehetőség:nincs megadva
- Fűtés:Hőszivattyús
- Bútorozottság:nincs megadva
- Fényviszony:Napfényes
- Tájolás:DNY
- Kilátás:nincs megadva
- Internet:nincs megadva
- Akadálymentesített:nincs megadva
- Energiatanúsítvány:nincs megadva
- Villany:nincs megadva
- Víz:nincs megadva
- Gáz:nincs megadva
- Csatorna:nincs megadva
- Üzenetküldés
- Hívás

Referencia szám: HZ016595

Hitel ajánlat
Ingatlan hirdetés leírása
Eladó ház, Vecsés, Eladó új építésű ház - Vecsés
Új építésű, modern családi házak Vecsés legfiatalosabb, családias részén!Fedezze fel Vecsés legmodernebb, fiatalos és családbarát lakóparkját, ahol a kényelem, a tágas terek és a privát kert találkozik a stílussal és a minőséggel!
A HÁZAKRÓL
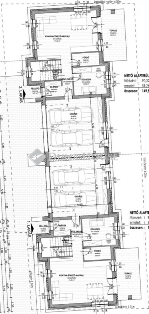
Méret: 149, 58 m² lakótér + 505 m² privát kert
Elrendezés: nappali + 4 hálószoba + gardrób
Szülői háló: 16, 10 m², erkélykapcsolattal
Fedett terasz: 13, 57 m² (földszint)
Erkély: 6, 12 m² a szülői hálóhoz
Garázs: 36 m²-es, 2 állásos, elektromos kapu
Az ikerházak csak a garázsoknál érintkeznek – a többi rész teljesen privát.
Műszaki felszereltség és MINŐSÉG
30-as Prototherm tégla + 15 cm homlokzati szigetelés
18 cm aljzatszigetelés, 8 cm födém szigetelés
3 rétegű műanyag nyílászárók (kívül antracit, belül fehér)
Hőszivattyús fűtés és hűtés fan coil rendszerrel
2 fürdőszoba + mosókonyha
Elektromos redőnyök, riasztó- és kaputelefon kiállás
Térkövezett autóbeálló
Burkolatok, beltéri ajtók és szaniterek választhatók – az otthon teljesen az Ön ízlésére szabható
lakópark és KÖRNYEZET
Modern, új építésű környezet, játszótérrel és fákkal
Nyugodt, családbarát utcák
Ideális a gyermekes családoknak, akik a biztonságot és a minőséget keresik
KÖZLEKEDÉS
Autóval: Gyorsforgalmi út, Üllői út, Gyömrői út, m0, m4 – mind 3 perc alatt elérhető
Tömegközlekedés:
Volánbusz 3 perc sétára (Kőbánya-Kispest)
Vecsési vasútállomás 10 perc sétára (Nyugati pályaudvar 30 perc)
Átadás: 2026 IV. Negyedév
⭐ miért ez az OTTHON?
Modern, tágas terek, családbarát elrendezés
Privát kert és dupla garázs
Energiatakarékos, minőségi építés
Biztonságos, fiatalos és élhető lakópark
Felkeltette érdeklődését? Hívjon bizalommal a hét bármely napján, és foglalja le új otthonát Vecsés legújabb lakóparkjában!
Érd: Gál Beáta 06705521003 gal. Beata@dh. Hu
Referencia szám: hz016595 FIX 3% lakáshitelre megvehető

