- >>
- eladó ingatlanok
- >>
- eladó ház
- >>
- eladó ház Vecsés
- >>
Eladó új építésű ház - Vecsés
| | |||
| Kedvencnek jelölöm | Elküldöm emailben | Megosztás | Szavazás |
| FIX 3% lakáshitelre megvehető | |||
| 149 000 000 HUF | |||
Ingatlan adatai
- Eladó vagy kiadó:Eladó
- Település:Vecsés
- Kategória:Ház
- Alkategória:Ikerház
- Alapterület:160 m2
- Telekterület:460 m2
- Csere is:Nem
- Hirdető:Cég
- Élő videón megtekinthető:Nem
- Építés éve:2025
- Szobaszám:5
- Állapot:Új építésű
- Hány szintes az ingatlan:Földszintes
- Tetőtér:nincs megadva
- Komfortosság:nincs megadva
- Parkolási lehetőség:nincs megadva
- Fűtés:Hőszivattyús
- Bútorozottság:nincs megadva
- Fényviszony:Napfényes
- Tájolás:DNY
- Kilátás:nincs megadva
- Internet:nincs megadva
- Akadálymentesített:nincs megadva
- Energiatanúsítvány:nincs megadva
- Villany:nincs megadva
- Víz:nincs megadva
- Gáz:nincs megadva
- Csatorna:nincs megadva
- Üzenetküldés
- Hívás

Referencia szám: HZ015496

Hitel ajánlat
Ingatlan hirdetés leírása
Eladó ház, Vecsés, Eladó új építésű ház - Vecsés
Új építésű, modern családi házak Vecsés krakkón – privát lakópark, kényelem és minőség!Eladó Vecsés csendes, családias részén, Krakkón, egy exkluzív, zárt lakóparkban épülő 4 modern családi ház. a lakóparkot privát magánúton, zárt kapuk mögött lehet megközelíteni, így biztosított a nyugalom és a biztonság.
Tér és ELRENDEZÉS
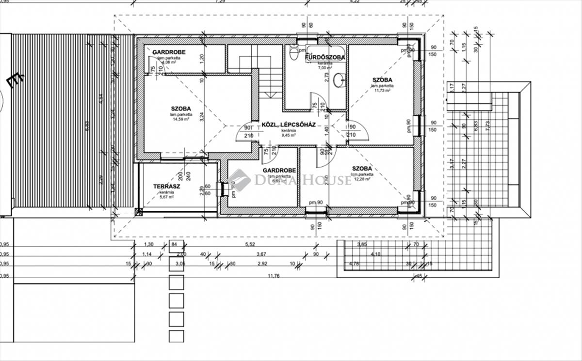
Hasznos lakótér: 160, 88 m² két szinten
Kert: 460 m² privát kert
Földszint: 32 m² amerikai konyhás nappali, L-alakú, 35, 92 m² részben fedett terasz, közvetlen kertkapcsolat
Emelet: 4 tágas hálószoba, 2 gardrób, 2 fürdőszoba + 1 külön WC
A házak csak a duplagarázsnál érintkeznek, így minden ingatlannak saját utcafrontja van
minőség és TECHNOLÓGIA
30-as Prototherm tégla falazat, 15 cm homlokzati szigetelés
25 cm szigetelés az aljzat és a födém felől
3 rétegű műanyag nyílászárók (kívül antracit, belül fehér)
Hőszivattyús fűtés/hűtés, 2 fürdőszoba, kamra
Elektromos redőny előkészítés, riasztó, napelem és kamera kiállás
Térkövezett autóbeálló és kétállásos garázs
Burkolatok, beltéri ajtók és szaniterek még választhatók
környék és KÖZLEKEDÉS
Új, modern lakópark játszótérrel és fákkal
Kiváló közlekedés: autóval Gyorsforgalmi út, Üllői út, m0 és 4-es út 3 perc alatt elérhető
Tömegközlekedés: Volánbuszmegálló 3 perc sétára, Vecsési vonatállomás 15 perc sétával, gyors eljutás a Nyugati pályaudvarra
⭐ miért ez a LAKÁS?
Privát, zárt lakópark biztonságos környezettel
Tágas, modern és praktikus elrendezés
Minőségi kivitelezés referenciákkal
Kényelmes kert, terasz és kétállásos garázs
Átadás: 2026. Július
Érdeklődés esetén hívjon bizalommal, és legyen az elsők között, aki birtokba veheti ezt az exkluzív otthont Vecsés Krakkón!
Érd: Gál Beáta 06705521003 gal. Beata@dh. Hu
Referencia szám: hz015496 FIX 3% lakáshitelre megvehető

