- >>
- eladó ingatlanok
- >>
- eladó ipari ingatlan
- >>
- eladó ipari ingatlan Tiszaföldvár
- >>
Eladó ipari ingatlan - Tiszaföldvár
| | |||
| Kedvencnek jelölöm | Elküldöm emailben | Megosztás | Szavazás |
| Kedvezményes lakáshitel ajánlatok | |||
| 39 900 000 HUF | |||
Ingatlan adatai
- Eladó vagy kiadó:Eladó
- Település:Tiszaföldvár
- Kategória:Ipari ingatlan
- Alkategória:Egyéb
- Alapterület:530 m2
- Telekterület:931 m2
- Csere is:Nem
- Hirdető:Cég
- Élő videón megtekinthető:Nem
- Hány szintes az ingatlan:nincs megadva
- Hányadik emeleti:nincs megadva
- Parkolási lehetőség:nincs megadva
- Energiatanúsítvány:nincs megadva
- Villany:nincs megadva
- Víz:nincs megadva
- Gáz:nincs megadva
- Csatorna:nincs megadva
- Üzenetküldés
- Hívás


Hitel ajánlat
Ingatlan hirdetés leírása
Tiszaföldváron a volt dobozüzem épülete eladó
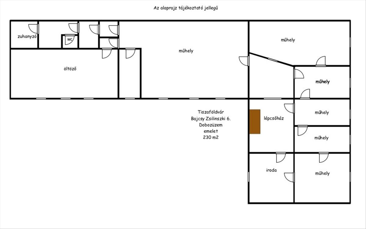
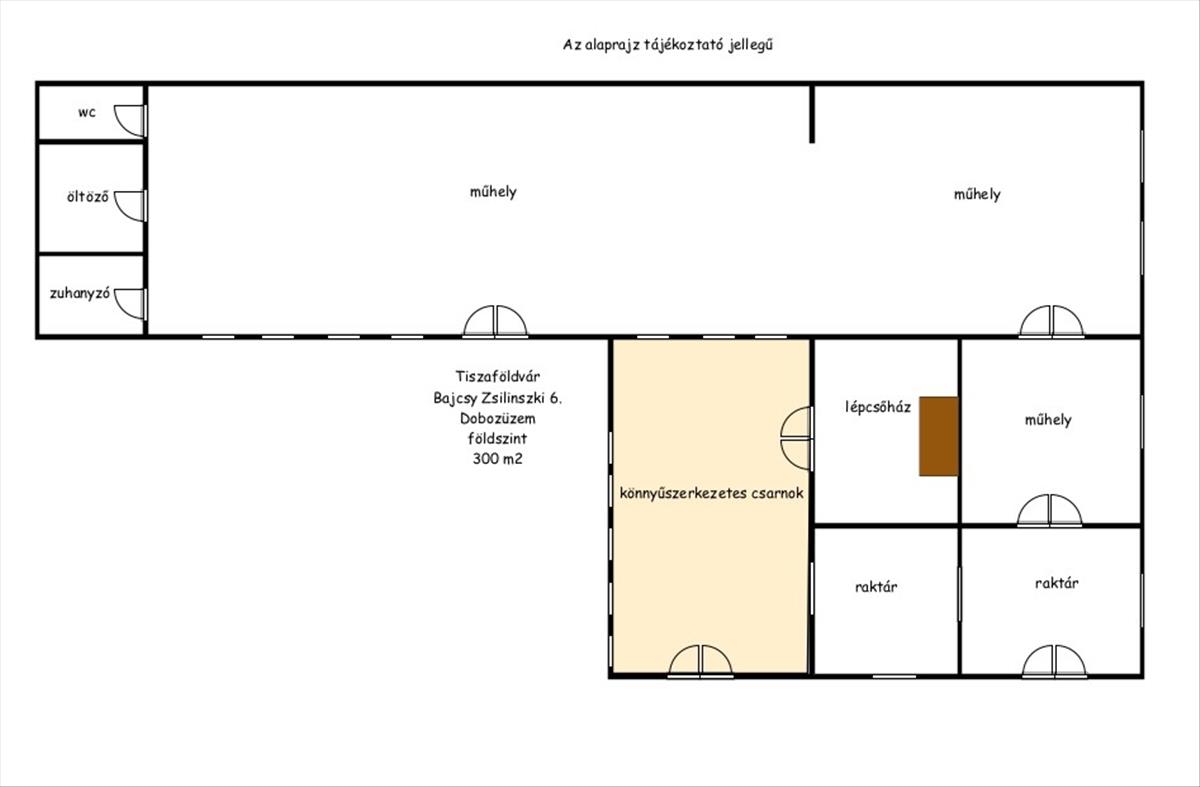
Tiszaföldváron eladó a volt dobozüzemTiszaföldváron kínálunk eladásra egy 1960-as években épült, 530 m² alapterületű téglából készült épületet.
Az ingatlan korábban dobozgyártó üzemként funkcionált.
A két épületszárnyban műhelyek, gyártócsarnok, irodák és szociális helyiségek találhatóak.
A telek mérete 931 m², az épület további raktárakat és irodákat is magában foglal.
Az épület ipari árammal van ellátva, a fűtést gáz tüzelésű kazán biztosítja.
Könnyen megközelíthető helyen fekszik, a bejárat közvetlenül a főútról nyílik.
A stabil szerkezetű épület teljes felújításra szorul.
Tiszaföldvár a Közép-Tiszavidékhez tartozó Nagykunság Szolnok-Túri-sík kistájegységében helyezkedik el, Szolnoktól délre, a Tisza folyó középső szakaszának bal partján, a Tiszazug északi részén.
A várostól legközelebb északra Martfű, délre Cibakháza, keletre Mezőhék található. Budapesttől kb. 130 Km-re helyezkedik el.
Az ingatlan vételára + áfával terhelt
Irodánk teljes körű szolgáltatást nyújt ügyfeleinek: hitelügyintézés, ügyvédi szolgáltatás, ingatlanértékbecslés, energetikai tanúsítvány készítése. (Hivatkozási szám: m116044) Hitel.hu - Hasonlítsa össze a bankok lakáshitel ajánlatait

