Eladó iroda Budapest II. kerület
| Kedvencbe | Megosztás | Árfigyelő |
| Kedvezményes lakáshitel ajánlatok | ||
| 1 200 000 000 HUF | ||
Ingatlan adatai
- Eladó vagy kiadó:Eladó
- Település:Budapest II. kerület
- Kategória:Iroda
- Alkategória:Irodaház
- Alapterület:810 m2
- Csere is:Nem
- Hirdető:Cég
- Élő videón megtekinthető:Nem
- Állapot:nincs megadva
- Hány szintes az ingatlan:nincs megadva
- Hányadik emeleti:nincs megadva
- Parkolási lehetőség:nincs megadva
- Őrzött parkoló:nincs megadva
- Bútorozottság:nincs megadva
- Fényviszony:nincs megadva
- Tájolás:nincs megadva
- Kilátás:nincs megadva
- Internet:nincs megadva
- Klíma:Van
- Akadálymentesített:nincs megadva
- Energiatanúsítvány:nincs megadva
- Üzenetküldés
- Hívás

Referencia szám: IR031375

Hitel ajánlat
Ingatlan hirdetés leírása
Eladó iroda, Budapest 2. ker.
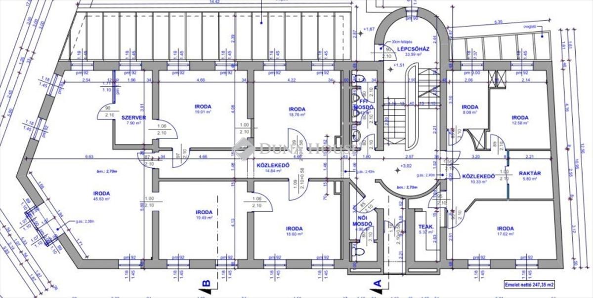
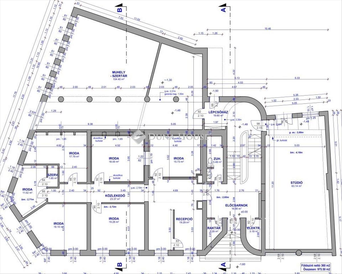
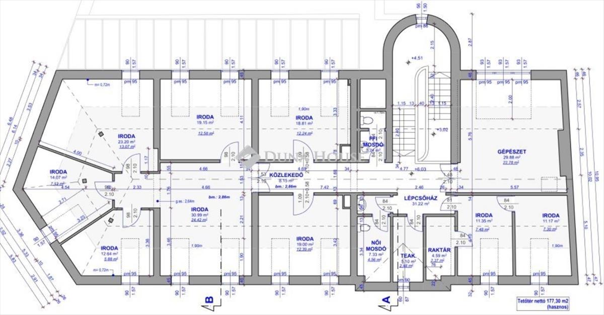
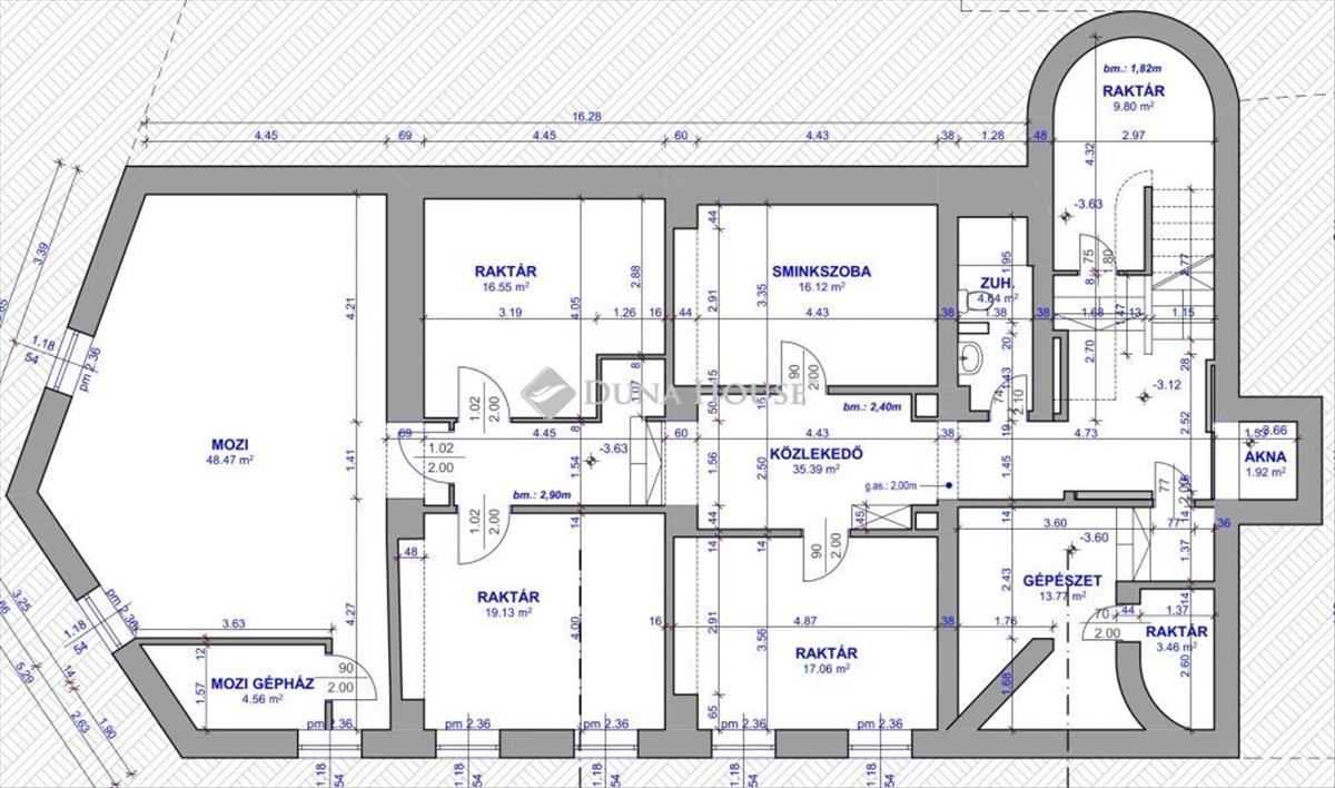
Eladó irodaház frekventált lokáció mellett, a Kolosy tér és a Szépvölgyi út közelében!A négy szintes, önálló épület tökéletesen alkalmas cégközpont, irodák, egészségügyi intézmény, klinika, rendelő számára.
A funkció váltás is lehetséges: akár lakás, szállás jellegű, kereskedelmi, szolgáltató, alapintézményi: oktatási, egészségügyi, szociális, hitéleti, kulturális, igazgatási, valamint egyéb intézményi, irodai, vendéglátó, sport, önálló parkolóház, mélygarázs létesíthető.
Az épület pinceszint + földszint + 2 emeletből áll.
A helyiségben 5 különálló vizsgáló található, amelyek egyenként kb. 15 M²-esek, valamint egy kialakított steril műtőrész és műtő előkészítő is rendelkezésre áll.
Főbb jellemzők:
-Modern kialakítás, közelmúltban történt felújítás
-műterem, moziszoba, közösségi konyha, fürdők, irodák
Az épület kiváló elhelyezkedéssel és infrastruktúrával rendelkezik, remek befektetési lehetőség!
1200000000 Ft Hitel.hu - Hasonlítsa össze a bankok lakáshitel ajánlatait
Tetszett ez az eladó Budapest II. kerületi iroda? Hívd fel a hirdetőt most, és tudj meg mindent erről az eladó irodáról! Ha gondolod nézelődj tovább az eladó iroda Budapest II. kerület oldal hirdetései között.
Az eladó irodák menüpontban további hirdetések között is böngészhetsz. Ha van kedved, akkor böngészhetsz a Cseh Klaudia összes hirdetése között, vagy akár a/az Duna House Csillaghegy összes hirdetése között is.

