Eladó lakás Budapest VI. kerület
| Kedvencbe | Megosztás | Árfigyelő |
| Kedvezményes lakáshitel ajánlatok | ||
| 114 500 000 HUF | ||
Ingatlan adatai
- Eladó vagy kiadó:Eladó
- Település:Budapest VI. kerület
- Kategória:Lakás
- Alkategória:Egyéb
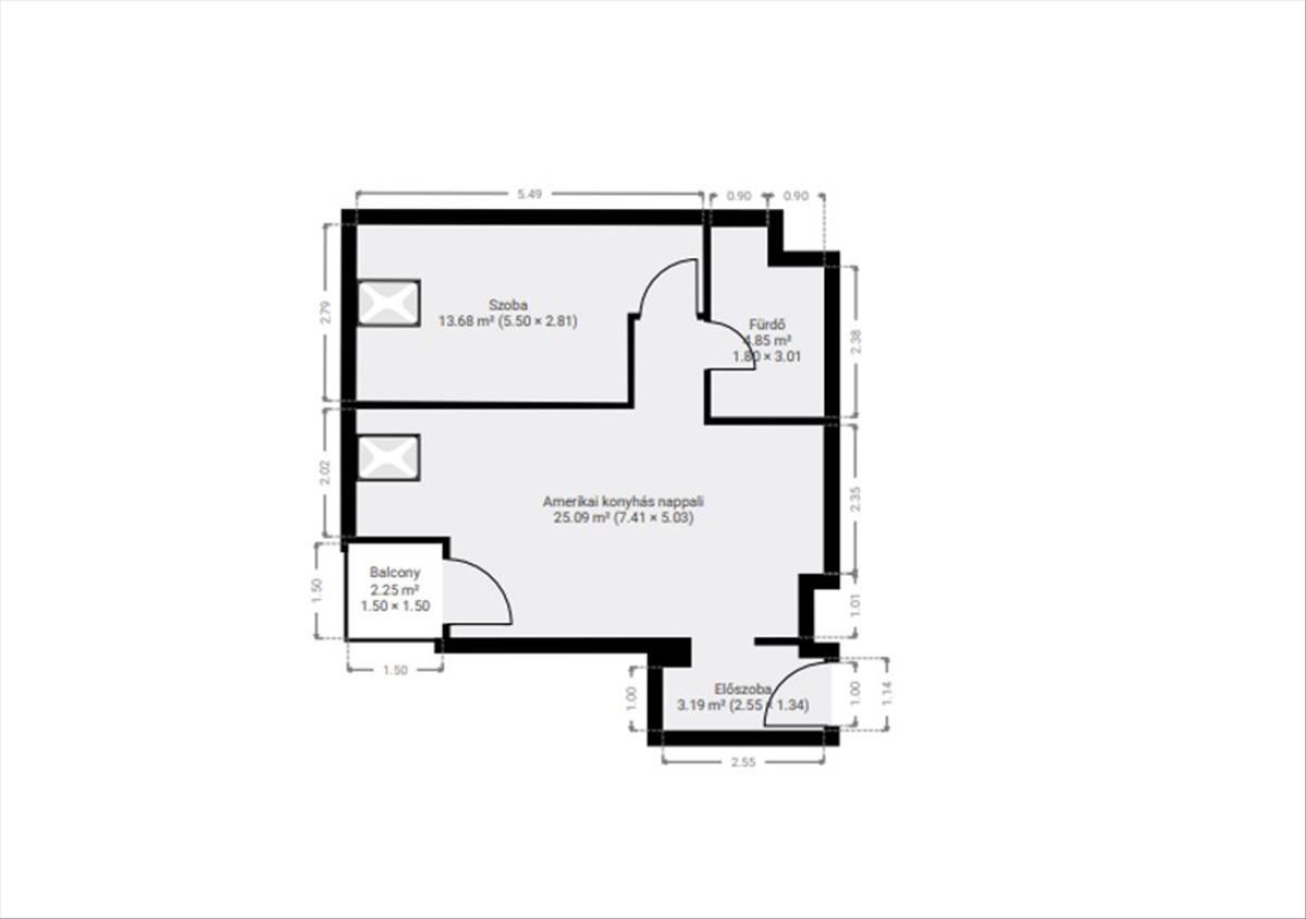
- Alapterület:47 m2
- Csere is:Nem
- Hirdető:Cég
- Élő videón megtekinthető:Nem
- Szobaszám:2
- Állapot:nincs megadva
- Hány szintes az ingatlan:nincs megadva
- Komfortosság:nincs megadva
- Hányadik emeleti:nincs megadva
- Erkély:Van
- Parkolási lehetőség:nincs megadva
- Fűtés:nincs megadva
- Bútorozottság:nincs megadva
- Fényviszony:nincs megadva
- Tájolás:nincs megadva
- Kilátás:nincs megadva
- Internet:nincs megadva
- Akadálymentesített:Akadálymentesített
- Energiatanúsítvány:nincs megadva
- Villany:nincs megadva
- Víz:nincs megadva
- Gáz:nincs megadva
- Csatorna:nincs megadva
- Üzenetküldés
- Hívás

Szentgyörgyvölgyi Ruben
Mondd meg a hirdetőnek, hogy a megveszLAK-on találtad a hirdetést.

Hitel ajánlat
Ingatlan hirdetés leírása
Megvételre kínáljuk Budapest VII. kerületében, a Király utca e...
Megvételre kínáljuk Budapest VII. kerületében, a Király utca egyik legmodernebb, 2020-ban épült, prémium kategóriás társasházában ezt az újszerű, összkomfortos, 5. emeleti, dél tájolású, utcai nézetű, erkélyes, liftes, akadálymentesített és klímával felszerelt lakást, házközponti fűtéssel egyedi méréssel, a+ energetikai besorolással.A belsőépítész által megálmodott enteriőr elegáns és letisztult megjelenést kapott, az ingatlan teljes berendezéssel együtt kerül értékesítésre. Az átgondolt térszervezésnek és a kedvező tájolásnak köszönhetően világos, barátságos hangulat jellemzi.
A hálószobában motorosan állítható, kiemelten kényelmes boxspring ágy gondoskodik a magas szintű komfortérzetről.
Az ingatlan állapota kiváló, azonnal használható vagy tovább hasznosítható.
A lakás egy 7 szintes, modern társasházban helyezkedik el, ahol a lakók biztonságáról 24 órás portaszolgálat gondoskodik.
Kiemelkedő adottságként a legfelső szinten nyitott élménymedence és napozóterasz áll rendelkezésre, ahonnan páratlan budapesti panoráma tárul elénk.
Fontos kiemelni, hogy ebben a társasházban rendkívül ritkán kerül eladó ingatlan a piacra, ami tovább növeli az ajánlat értékét és exkluzivitását.
A fenntartás gazdaságos: gáz nincs bekötve, a fűtés és hűtés hőszivattyúval és klímával megoldott, a 10 cm-es szigetelés és az a+ energetikai besorolás hosszú távon is alacsony rezsiköltséget biztosít.
Igény szerint a lakás hosszú távú bérlővel és üzemeltetővel együtt is átvehető, így havi fix, kiemelkedő bevételt nyújt.
A környék infrastruktúrája kivételes: a Gozsdu Udvar mindössze néhány lépésre található, emellett 100 méteren belül elérhető spar, éttermek, bárok, gyógyszertár, valamint számtalan szórakozási és kikapcsolódási lehetőség.
A belvárosi élet pezsgése és az ingatlan kiváló kiadhatósága együtt teszik ezt az ajánlatot igazán időtállóvá.
Elsősorban azok számára ideális választás, akik biztos helyen szeretnék tudni a pénzüket, és egy ritka, azonnali hozamot termelő belvárosi befektetést keresnek, de saját otthonként is prémium színvonalú megoldásban gondolkodnak. Hitel.hu - Hasonlítsa össze a bankok lakáshitel ajánlatait

