Eladó felújított lakás - Budapest VI. kerület
- INGYENES HIRDETÉS FELADÁS
Ingatlan adatai
- Eladó vagy kiadó:Eladó
- Település:Budapest VI. kerület
- Kategória:Lakás
- Alkategória:Egyéb
- Alapterület:55 m2
- Csere is:Nem
- Hirdető:Cég
- Élő videón megtekinthető:Nem
- Szobaszám:3
- Állapot:Felújított
- Hány szintes az ingatlan:nincs megadva
- Komfortosság:nincs megadva
- Hányadik emeleti:nincs megadva
- Erkély:nincs megadva
- Lift:nincs megadva
- Parkolási lehetőség:nincs megadva
- Fűtés:nincs megadva
- Bútorozottság:Bútorozott
- Fényviszony:nincs megadva
- Tájolás:nincs megadva
- Kilátás:nincs megadva
- Internet:nincs megadva
- Klíma:Van
- Akadálymentesített:nincs megadva
- Energiatanúsítvány:nincs megadva
- Villany:nincs megadva
- Víz:nincs megadva
- Gáz:nincs megadva
- Csatorna:nincs megadva
- Kapcsolatfelvétel

Dr. Czakó Orsolya
+36704281447
Mondd meg a hirdetőnek, hogy a megveszLAK-on találtad a hirdetést.
Hitel ajánlatok
Ingatlan hirdetés leírása
Budapest VI. kerületében, a Lovag utcában található ingatlan e...
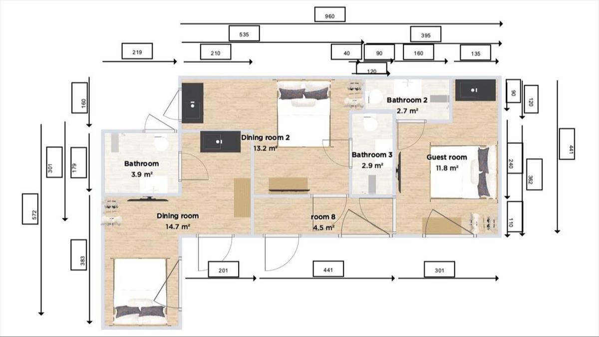
Budapest VI. kerületében, a Lovag utcában található ingatlan egyszerre felel meg jogilag egy lakásnak és funkcionálisan három külön lakótérnek.
Egy 1890-es években épült, klasszikus polgári társasház első emeletén helyezkedik el ez az 55 m²-es lakás, amely 2023 végén teljes műszaki és esztétikai felújításon esett át. a tulajdonos az ingatlant tudatos befektetési szemlélettel alakította át három önálló minigarzonná egy egységes koncepció mentén.
A 3 apartman egyben eladó, mert 1 helyrajzi számon szerepelnek, ugyanakkor mindhárom egység önálló élettérként működik. a képeken látható teljes berendezéssel együtt kerülnek értékesítésre.
Mindhárom lakrész saját:
- szobával,
- konyhafülkével,
- fürdőszoba WC-vel rendelkezik.
A felújítás során:
- megtörtént a víz- és villanyhálózat teljes cseréje,
- H-tarifás villanyóra került kialakításra,
- mindhárom egység önálló hűtő–fűtő klímával rendelkezik, külön kültéri egységgel,
- gáz nincs az ingatlanban, a melegvizet elektromos bojler biztosítja,
- korszerű műanyag nyílászárókat építettek be,
- az eredetileg 4 méter feletti belmagasság egységes álmennyezettel lett optimalizálva.
Korábban rövid távú kiadásban működött, további lépésként több irányban is rugalmasan hasznosítható:
- közép- és hosszú távú bérbeadásra,
- egyetemisták, Erasmus-hallgatók számára,
- Budapesten dolgozó, vidéken lakók részére,
- vagy akár szolgáltatási célra (pl. Masszázs, kozmetika, iroda jelleg).
A Lovag utca Terézváros belső, klasszikus városi szövetében helyezkedik el, néhány perc sétára az Oktogontól, az Andrássy úttól és a Nagykörúttól. A környéket állandó bérlői kereslet jellemzi, köszönhetően a kiváló közlekedésnek (m1 metró, 4–6-os villamos, buszjáratok), valamint annak, hogy egyetemek, irodák, szolgáltatások és kulturális helyszínek gyalogtávolságon belül elérhetők.
Mindezt jól egészíti ki az ingatlan belső udvari, nyugodt elhelyezkedése, amely ritka kombinációt jelent belvárosi környezetben.
A társasház klasszikus polgári jellegű, a lépcsőház állapota közepes. A házban a víz- és villanyvezetékek korszerűsítése már megtörtént, a homlokzat és a födém felújítása tervben van, amelyre a társasház rendelkezik megtakarítással.
A közös költség: 18. 000 Ft, amely tartalmazza a korlátlan vízfogyasztást is (a teljes, három egységre). Ezen felül az átlagos havi rezsi: kb. 10. 000 Ft (szintén a teljes, 3 egységre).
Amennyiben olyan ingatlant keres, amely egyben kezelhető, mégis többféle hasznosítási lehetőséget kínál egy stabil belvárosi lokációban, kérem, hívjon bizalommal a részletekért és a megtekintés egyeztetéséhez. Hitel.hu - Hasonlítsa össze a bankok lakáshitel ajánlatait
Tetszett ez az eladó Budapest VI. kerületi felújított 3 szobás lakás? Hívd fel a hirdetőt most, és tudj meg mindent erről az eladó lakásról! Ha gondolod nézelődj tovább az eladó lakás Budapest VI. kerület oldal hirdetései között. Ennek az eladó lakásnak az ára 100000000 Ft és mivel az alapterülete 55 négyzetméter, ezért az átlagos négyzetméterára 1818182 HUF/m2.
Az eladó lakások menüpontban további hirdetések között is böngészhetsz. Az összes eladó budapesti lakás hirdetést tartalmazó oldalon tudsz böngészni. Ha van kedved, akkor böngészhetsz a Dr. Czakó Orsolya összes hirdetése között, vagy akár a/az The Hunters összes hirdetése között is.

