Eladó jó állapotú lakás Budapest XX. kerület
| Kedvencbe | Megosztás | Árfigyelő |
| FIX 3% lakáshitelre megvehető | ||
| 59 500 000 HUF | ||
Ingatlan adatai
- Eladó vagy kiadó:Eladó
- Település:Budapest XX. kerület
- Kategória:Lakás
- Alkategória:Csúsztatott zsalus
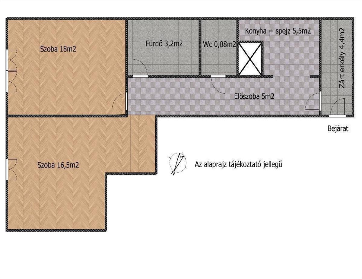
- Alapterület:51 m2
- Csere is:Nem
- Hirdető:Cég
- Élő videón megtekinthető:Nem
- Szobaszám:2
- Állapot:Jó állapotú
- Hány szintes az ingatlan:Földszintes
- Komfortosság:nincs megadva
- Hányadik emeleti:9
- Erkély:Van
- Lift:Van
- Parkolási lehetőség:nincs megadva
- Fűtés:Távfűtés
- Bútorozottság:nincs megadva
- Fényviszony:Jó
- Tájolás:nincs megadva
- Kilátás:nincs megadva
- Internet:nincs megadva
- Akadálymentesített:nincs megadva
- Energiatanúsítvány:nincs megadva
- Villany:Van
- Víz:Van
- Gáz:nincs megadva
- Csatorna:Van
- Közös költség:14 000 Ft
- Üzenetküldés
- Hívás

Major Katalin Tünde
Mondd meg a hirdetőnek, hogy a megveszLAK-on találtad a hirdetést.
Referencia szám: M315810

Hitel ajánlat
Ingatlan hirdetés leírása
Eladó Lakás, Budapest 20. ker.
Budapest XX. kerületének központi részén kínálunk megvételre egy 51 m2-es, 9. emeleti, 2 szobás, összkomfortos lakást, mely jó műszaki állapotban van, így akár azonnal költözhető.Felújítások és műszaki jellemzők:
- Hőszigetelt, új modern műanyag nyílászárók, új hideg- és meleg burkolatok a vizes helyiségekben és a szobákban egyaránt.
- Alacsony költségű távfűtés, jól szabályozható, kiszámítható:
- Közös költség 14. 000Ft, Rezsi kb 20. 000 Ft/ hó
A lépcsőház rendezett, tiszta, az épületben 2 lift segíti a kényelmes közlekedést.
Környék és elhelyezkedés:
- a lakás kiváló elhelyezkedésű:
- Bevásárlási lehetőségek (kisboltok, szupermarketek, plázák) a közelben.
- Óvoda, iskola, orvosi rendelő, patika gyalogosan elérhető.
- Kiváló tömegközlekedés: több busz- és villamosjárat, gyors eljutás a belvárosba.
Autósok számára az autópályák könnyen elérhetők, így az agglomerációs kapcsolat is kiváló.
Ez a lakás ideális választás lehet fiatal pároknak első lakásként, idősebbeknek, akik jó közlekedésű, mégis nyugodt otthont keresnek, de akár befektetőknek, kiadásra
Amennyiben felkeltettem érdeklődését, hívjon bizalommal a hét bármely napján!
Az OTP Bankcsoport teljeskörű ügyintézéssel áll az eladók és a vevők rendelkezésére! a kínálatunkból választott ingatlan finanszírozásához kedvezményes hitelkonstrukciókat kínálunk. Az adásvételi szerződés megkötéséhez igény szerint megbízható ügyvédi közreműködést biztosítunk és segítséget nyújtunk az adásvételhez kapcsolódó ügyek intézéséhez.
Referenciaszám: m315810 FIX 3% lakáshitelre megvehető

