Eladó átlagos állapotú lakás - Győr
- INGYENES HIRDETÉS FELADÁS
Ingatlan adatai
- Eladó vagy kiadó:Eladó
- Település:Győr
- Kategória:Lakás
- Alkategória:Egyéb
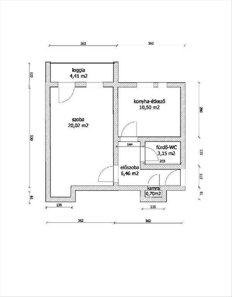
- Alapterület:42 m2
- Csere is:Nem
- Hirdető:Cég
- Élő videón megtekinthető:Nem
- Szobaszám:1
- Állapot:Átlagos állapotú
- Hány szintes az ingatlan:Földszintes
- Komfortosság:nincs megadva
- Hányadik emeleti:2
- Erkély:nincs megadva
- Lift:Nincs
- Parkolási lehetőség:Utcán
- Fűtés:Távfűtés
- Bútorozottság:nincs megadva
- Fényviszony:Jó
- Tájolás:nincs megadva
- Kilátás:nincs megadva
- Internet:nincs megadva
- Klíma:nincs megadva
- Akadálymentesített:nincs megadva
- Energiatanúsítvány:nincs megadva
- Villany:Van
- Víz:Van
- Gáz:nincs megadva
- Csatorna:Van
- Közös költség:1 000 Ft
- Kapcsolatfelvétel

Szabó Gábor
+36-(70)-639-8927
Mondd meg a hirdetőnek, hogy a megveszLAK-on találtad a hirdetést.
Referencia szám: M324086
Hitel ajánlatok
Ingatlan hirdetés leírása
Eladó Lakás, Győr, Eladó átlagos állapotú lakás - Győr
Erkélyes lakás eladó Győr egyik legkeresettebb városrészében, Nádorvárosban!
Győr kedvelt városrészében, Nádorvárosban kínálok megvételre egy 42 m2-es, 2. emeleti, erkélyes lakást. Az ingatlan 1 szobás, közepes állapotú, így új tulajdonosa saját elképzelései szerint alakíthatja.
A lakás egyik nagy előnye a parkra néző kilátás, amely csendes, nyugodt lakókörnyezetet biztosít. a tágas konyha lehetőséget ad egy kényelmes étkező kialakítására is.
Elhelyezkedésének köszönhetően kiváló választás saját otthonnak vagy befektetésnek, hiszen a környék infrastruktúrája kiváló, minden fontos szolgáltatás könnyen elérhető.
A vásárlás finanszírozásában is segítünk:
INGYENES ügyintézéssel támogatjuk az Otthon Start és Babaváró kölcsön igénylését, valamint egyedi, kedvezményes banki ajánlatokat biztosítunk.
Segítséget nyújtok az adásvételi szerződés megszervezésében, az energetikai tanúsítvány elkészítésében, a banki folyamatok lebonyolításában és a földhivatali ügyintézésben egészen a birtokbaadásig.
Hívjon bizalommal további információért és megtekintésért!
Referencia szám: M324086
Amennyiben felkeltettük érdeklődését, kérem hívjon bizalommal!
Szabó Gábor +36-70-639-8927
Referencia szám: m324086-ml FIX 3% lakáshitelre megvehető
Tetszett ez az eladó Győri átlagos állapotú 1 szobás lakás? Hívd fel a hirdetőt most, és tudj meg mindent erről az eladó lakásról! Ha gondolod nézelődj tovább az eladó lakás Győr oldal hirdetései között. Ennek az eladó lakásnak az ára 49600000 Ft és mivel az alapterülete 42 négyzetméter, ezért az átlagos négyzetméterára 1180952 HUF/m2.
Az eladó lakások menüpontban további hirdetések között is böngészhetsz. Ha van kedved, akkor böngészhetsz a Szabó Gábor összes hirdetése között, vagy akár a/az OTPip Mosonmagyaróvár Lucsony utca 20 - OTP Ingatlanpont Iroda összes hirdetése között is.

