Eladó új építésű lakás - Miskolc
- INGYENES HIRDETÉS FELADÁS
Ingatlan adatai
- Eladó vagy kiadó:Eladó
- Település:Miskolc
- Kategória:Lakás
- Alkategória:Egyéb
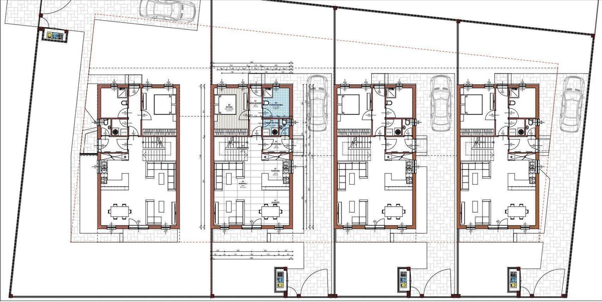
- Alapterület:129 m2
- Csere is:Nem
- Hirdető:Cég
- Élő videón megtekinthető:Nem
- Szobaszám:4
- Állapot:Új építésű
- Hány szintes az ingatlan:nincs megadva
- Komfortosság:nincs megadva
- Kertkapcsolatos:Igen
- Hányadik emeleti:nincs megadva
- Erkély:nincs megadva
- Lift:nincs megadva
- Parkolási lehetőség:nincs megadva
- Fűtés:nincs megadva
- Bútorozottság:nincs megadva
- Fényviszony:nincs megadva
- Tájolás:nincs megadva
- Kilátás:nincs megadva
- Internet:nincs megadva
- Klíma:nincs megadva
- Akadálymentesített:nincs megadva
- Energiatanúsítvány:nincs megadva
- Villany:nincs megadva
- Víz:nincs megadva
- Gáz:nincs megadva
- Csatorna:nincs megadva
- Kapcsolatfelvétel

Kerek Edina
+36307795042
Mondd meg a hirdetőnek, hogy a megveszLAK-on találtad a hirdetést.
Hitel ajánlatok
Ingatlan hirdetés leírása
Miskolc kedvelt részén, Martinkertvárosban új építésű sorházi ...
Miskolc kedvelt részén, Martinkertvárosban új építésű sorházi lakás eladó!
Exkluzív kertkapcsolatos otthonok:
Martinkertváros csendes és barátságos környéke tökéletes választás családoknak és azoknak, akik nyugodt, mégis jól megközelíthető helyen szeretnének élni. Az ingatlan 129 m²-es, kertkapcsolatos, 4 lakásos sorház része. Ráadásul Martinkertváros új, folyamatosan fejlődő részén helyezkedik el, ahol modern infrastruktúra és friss építkezési környezet várja az új lakókat.
Főbb jellemzők:
Modern fűtési rendszer: Hőszivattyús fűtés padlófűtéssel, hidegburkolatok alatt.
Kiváló hő- és hangszigetelés: 30 cm vastag porotherm főfalak, 15 cm szigeteléssel.
Minőségi nyílászárók: Veka háromrétegű üvegezésű, 6 légkamrás ablakok.
Prémium belső kialakítás: Voster belső ajtók (80. 000 Ft/db).
Testreszabhatóság:
Burkolatok választhatók: Az ár 8. 000 Ft/m² árat tartalmaz, de ettől eltérhet.
Fürdőszoba szaniterek: 400. 000 Ft/fürdőszoba kerettel kiváló minőségű kerámiákra.
Megbízható kivitelezés:
A projektet egy tapasztalt kivitelező cég valósítja meg, amely számos referenciamunkával bizonyította szakmai felkészültségét és megbízhatóságát. Az ingatlanok építésében modern technológiákat és minőségi anyagokat használnak, garantálva az Ön elégedettségét.
Finanszírozás:
Az építkezés szakaszos fizetési ütemezéssel történik, igazodva az aktuális munkafázisokhoz. Ez rugalmas megoldást biztosít!
Miért Martinkertváros?
Nyugodt, zöld környezet.
Kiváló infrastruktúra és megközelíthetőség.
Jól kiépített helyi közösség, biztonságos környék.
Új, modern városrész – az ingatlan értéke a jövőben tovább növekedhet.
Banki ügyintézés is biztosított!
Az Express Ingatlanirodánál az ingatlanvásárlást a gv Hitelközponttal együttműködve segítjük, hogy Ön könnyedén találja meg a legjobb hitelmegoldást.
Keresse Kerek Edinát további információért és időpont egyeztetésért!
Teefon: 30/779 5042
Ne maradjon le erről az egyedülálló lehetőségről! FIX 3% lakáshitelre megvehető
Tetszett ez az eladó Miskolci új építésű 4 szobás lakás? Hívd fel a hirdetőt most, és tudj meg mindent erről az eladó lakásról! Ha gondolod nézelődj tovább az eladó lakás Miskolc oldal hirdetései között. Ennek az eladó lakásnak az ára 99490000 Ft és mivel az alapterülete 129 négyzetméter, ezért az átlagos négyzetméterára 771240 HUF/m2.
Az eladó lakások menüpontban további hirdetések között is böngészhetsz. Ha van kedved, akkor böngészhetsz a Kerek Edina összes hirdetése között.

