Eladó új építésű lakás Székesfehérvár
| Kedvencbe | Megosztás | Árfigyelő |
| Kedvezményes lakáshitel ajánlatok | ||
| 75 000 000 HUF | ||
Ingatlan adatai
- Eladó vagy kiadó:Eladó
- Település:Székesfehérvár
- Kategória:Lakás
- Alkategória:Egyéb
- Alapterület:47 m2
- Csere is:Nem
- Hirdető:Cég
- Élő videón megtekinthető:Nem
- Szobaszám:2
- Állapot:Új építésű
- Hány szintes az ingatlan:nincs megadva
- Komfortosság:nincs megadva
- Hányadik emeleti:nincs megadva
- Erkély:Van
- Lift:Van
- Parkolási lehetőség:nincs megadva
- Fűtés:nincs megadva
- Bútorozottság:nincs megadva
- Fényviszony:nincs megadva
- Tájolás:nincs megadva
- Kilátás:nincs megadva
- Internet:nincs megadva
- Akadálymentesített:nincs megadva
- Energiatanúsítvány:nincs megadva
- Villany:nincs megadva
- Víz:nincs megadva
- Gáz:nincs megadva
- Csatorna:nincs megadva
- Üzenetküldés
- Hívás


Hitel ajánlat
Ingatlan hirdetés leírása
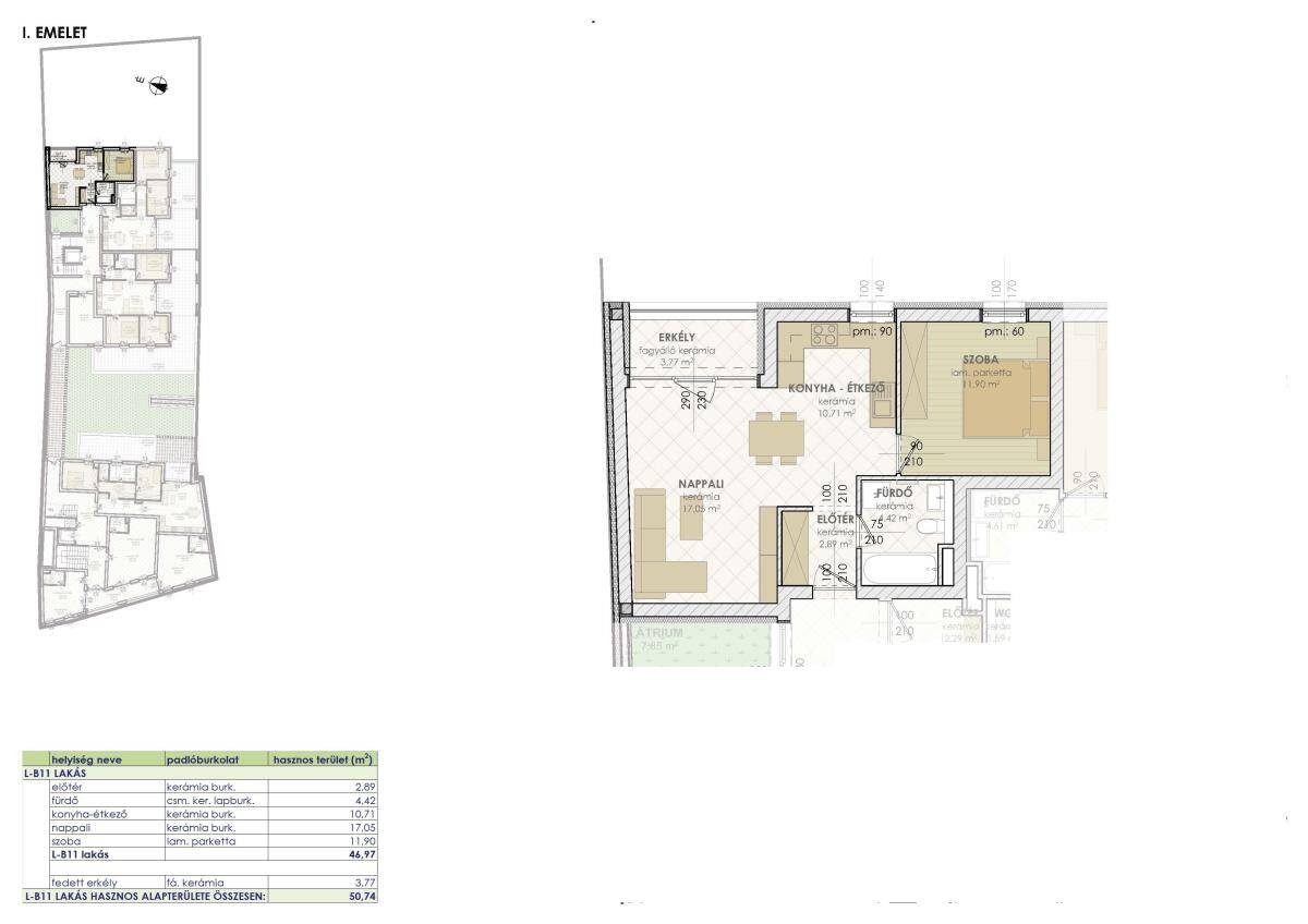
Székesfehérvár központi részén, a Palotai úton kínálunk megvét...
Székesfehérvár központi részén, a Palotai úton kínálunk megvételre egy új építésű, modern társasházban található lakást, kiváló elhelyezkedéssel és praktikus elrendezéssel.A lakás 46, 97 m² alapterületű, nappali–konyha–étkezővel, külön hálószobával, fürdőszoba–WC-vel, valamint 3 m²-es erkéllyel rendelkezik. a jól átgondolt alaprajznak köszönhetően a terek világosak, könnyen bútorozhatók, a lakás ideális választás első otthonnak, fiatal pároknak vagy befektetési célra egyaránt.
A központi elhelyezkedésnek köszönhetően a belváros, üzletek, szolgáltatások, buszmegállók és intézmények gyalogosan is kényelmesen elérhetők, ami jelentősen növeli az ingatlan értékét és kiadhatóságát.
Az ingatlan kulcsrakész állapotban kerül átadásra, modern műszaki megoldásokkal és minőségi anyaghasználattal. a lakáshoz igény szerint fedett gépkocsibeálló is vásárolható, amely tovább növeli a mindennapi kényelmet.
A műszaki átadás várható időpontja 2027 tavasz.
Ez a lakás kiváló lehetőség mindazok számára, akik új építésű, központi elhelyezkedésű, erkélyes otthont vagy értékálló befektetést keresnek Székesfehérváron.
Több mint 15 éves tapasztalattal segítünk eligazodni a pénzügyi lehetőségek között – legyen szó lakáshitelről vagy támogatásokról, és most akár a 2025 szeptemberétől elérhető 3%-os fix kamatozású Otthon Start lakáshitelről is –, hogy Ön a lehető legkedvezőbb feltételekkel valósíthassa meg otthonteremtési céljait.
Érdeklődni akár hétvégén is! Hitel.hu - Hasonlítsa össze a bankok lakáshitel ajánlatait

