Eladó jó állapotú lakás - Székesfehérvár
- INGYENES HIRDETÉS FELADÁS
Ingatlan adatai
- Eladó vagy kiadó:Eladó
- Település:Székesfehérvár
- Kategória:Lakás
- Alkategória:Csúsztatott zsalus
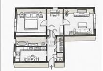
- Alapterület:62 m2
- Csere is:Nem
- Hirdető:Cég
- Élő videón megtekinthető:Nem
- Szobaszám:3
- Állapot:Jó állapotú
- Hány szintes az ingatlan:nincs megadva
- Komfortosság:nincs megadva
- Hányadik emeleti:nincs megadva
- Erkély:nincs megadva
- Lift:nincs megadva
- Parkolási lehetőség:nincs megadva
- Fűtés:Távfűtés
- Bútorozottság:nincs megadva
- Fényviszony:nincs megadva
- Tájolás:DK
- Kilátás:Utcai
- Internet:nincs megadva
- Klíma:nincs megadva
- Akadálymentesített:nincs megadva
- Energiatanúsítvány:nincs megadva
- Villany:Van
- Víz:Van
- Gáz:Van
- Csatorna:Van
- Közös költség:13 000 Ft
- Kapcsolatfelvétel

Leitner Tamás
+36-(70)-469-3531
Mondd meg a hirdetőnek, hogy a megveszLAK-on találtad a hirdetést.
Hitel ajánlatok
Ingatlan hirdetés leírása
Székesfehérvár egyik legkeresettebb részén, a belváros szívébe...
Székesfehérvár egyik legkeresettebb részén, a belváros szívében kínálunk megvételre egy 56 m²-es, 2 különnyíló szobás, jó állapotú lakást, egy szigetelt, rendezett, 4 emeletes társasház 4. emeletén.
A lakás alacsony rezsijének és praktikus elrendezésének köszönhetően tökéletes választás saját célra és befektetésnek is.
Paraméterek:
- 56 m² hasznos alapterület
- 2 különnyíló, világos szoba
- Praktikus elosztás: külön konyha-étkező, kamra, beépített szekrény
- Jó, költözhető állapot
- Új konyhabútor elektromos sütővel
- 2 rétegű műanyag nyílászárók redőnnyel
- Újszerű Ariston villanybojler a meleg vízhez
- Távfűtés – kiszámítható, alacsony rezsi
- 1x25 a elektromos kapacitás
Épület:
- 4 emeletes, jól karbantartott csúsztatott zsalus társasház
- Panelprogramon átesett
- Közös költség: mindössze 13. 000 Ft/hó
- Csendes, kulturált lakóközösség
Lokáció:
- Belvárosi elhelyezkedés
- Kiváló infrastruktúra: iskola, óvoda, orvos, gyógyszertár, posta pár perc sétára
- Tömegközlekedés kiváló (több buszjárat közvetlen közelben)
- Autóval is könnyen megközelíthető
Befektetők figyelem!
Az ingatlan jelenleg bérlővel hasznosított, akik szívesen maradnának, így akár azonnali hozamtermelő befektetésként is megvásárolható.
Ne maradjon le erről a kivételes belvárosi lehetőségről – ideális otthon vagy stabil befektetés egyben!
Hívjon bizalommal és tekintse meg személyesen!
(Az energetikai tanúsítvány elkészítése folyamatban van. Amint elkészül, a hirdetést frissítjük annak adataival. )
#Székesfehérvár #eladólakás #ingatlanbefektetés #belváros #lakáseladó FIX 3% lakáshitelre megvehető
Tetszett ez az eladó Székesfehérvári jó állapotú 3 szobás lakás? Hívd fel a hirdetőt most, és tudj meg mindent erről az eladó lakásról! Ha gondolod nézelődj tovább az eladó lakás Székesfehérvár oldal hirdetései között. Ennek az eladó lakásnak az ára 54900000 Ft és mivel az alapterülete 62 négyzetméter, ezért az átlagos négyzetméterára 885484 HUF/m2.
Az eladó lakások menüpontban további hirdetések között is böngészhetsz. Ha van kedved, akkor böngészhetsz a Leitner Tamás összes hirdetése között, vagy akár a/az Otthon Centrum Székesfehérvár - Várkörút összes hirdetése között is.

