Eladó mezőgazdasági ingatlan - Kistarcsa
- INGYENES HIRDETÉS FELADÁS
Ingatlan adatai
- Eladó vagy kiadó:Eladó
- Település:Kistarcsa
- Kategória:Mezőgazdasági ingatlan
- Alkategória:Egyéb
- Alapterület:nincs megadva
- Telekterület:3355 m2
- Csere is:Nem
- Hirdető:Cég
- Élő videón megtekinthető:Nem
- Fűtés:nincs megadva
- Bútorozottság:nincs megadva
- Fényviszony:nincs megadva
- Tájolás:nincs megadva
- Internet:nincs megadva
- Klíma:nincs megadva
- Akadálymentesített:nincs megadva
- Energiatanúsítvány:nincs megadva
- Villany:Van
- Víz:Van
- Gáz:Van
- Csatorna:Van
- Kapcsolatfelvétel

Horváth Zoltán
+36-(70)-550-6680
Mondd meg a hirdetőnek, hogy a megveszLAK-on találtad a hirdetést.
Hitel ajánlatok
Ingatlan hirdetés leírása
Megvételre kínálunk Kistarcsán 10 % -os beépíthetőséggel, egy ...
Megvételre kínálunk Kistarcsán 10 % -os beépíthetőséggel, egy 3355 nm -es közművekkel rendelkező telket, egy két szobás 45 nm -es házzal, valamint további melléképületekkel.
Kistarcsa egyik legszebb részén található ez a kiváló adottságokkal rendelkező sarok telek.
Magánszemélyeknek és vállalkozásoknak is kitűnő lehetőség.
Közvetlen beépített terület mellett helyezkedik el a telek. Ennek köszönhetően az internet, tv, telefon könnyeden bevezethető.
A ház új, modern nyílászárókat kapott.
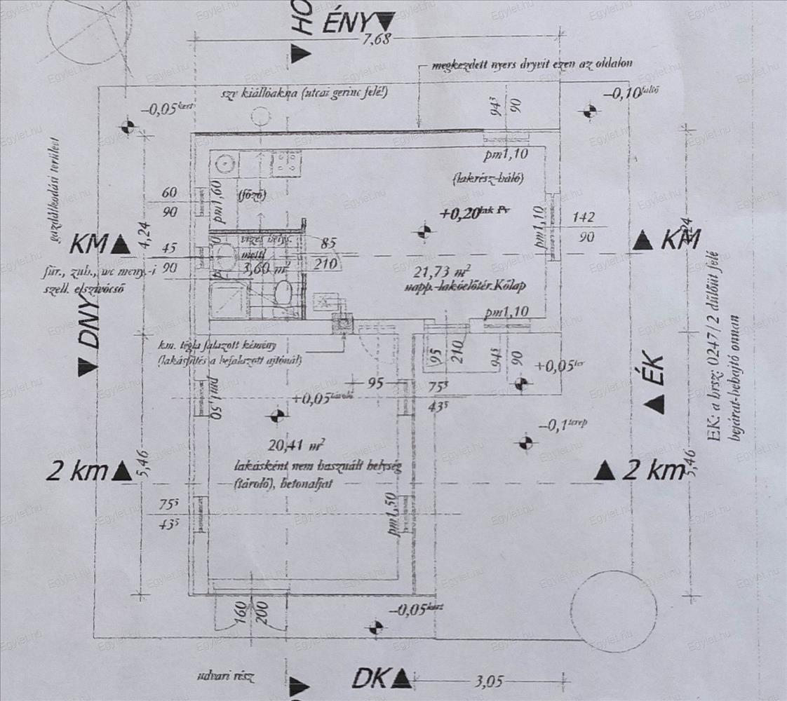
A kialakításának és a felújításoknak köszönhetően kitünő lehetőség akár egy közepes méretű családnak is. Alaprajzot a fotók között találnak.
AZONNAL KÖLTÖZHETŐ!
Besorolása: Kivertt lakóház, udvar
BEÉPÍTHETŐSÉGE: 10 %
Maximális építménymagasság: 5, 5 méter
Közművek: gáz, villany, víz, csatorna
Megközelítőleg 335 nm építhető rá szintenként és tetőtérbeépítéssel ez közel megduplázható.
Lakóház besorolást kap az ingatlan, így be is lehet jelentkezni.
Fúrt és ásott kút is megtalálható a telken.
Az ingatlan biztonságos, nyugodt, csendes, Kistarcsa egyik legszebb részén található.
A környék fejlett infrastruktúrájának köszönhetően bővelkedik a szociális intézményekben, bölcsőde, óvoda, általános iskola, orvosi intézmények, bevásárlási lehetőségek, találhatóak a közelben.
Közlekedése kiváló, busszal vagy hévvel, Budapest rövid idő alatt megközelíthető. Az M0-ás autópálya 5 perc alatt elérhető.
Igény esetén kivitelezőt biztosítunk az építkezéshez.
Hitel, CSOK igénylésben díjmentes ügyintézéssel állunk rendelkezésére! Nálunk kiválaszthatja az Ön számára legkedvezőbb ajánlatot.
Várom megtisztelő érdeklődésüket. Hitel.hu - Hasonlítsa össze a bankok lakáshitel ajánlatait
Tetszett ez az eladó Kistarcsai mezőgazdasági ingatlan? Hívd fel a hirdetőt most, és tudj meg mindent erről az eladó mezőgazdasági ingatlanról! Ha gondolod nézelődj tovább az eladó mezőgazdasági ingatlan Kistarcsa oldal hirdetései között.
Az eladó mezőgazdasági ingatlanok menüpontban további hirdetések között is böngészhetsz. Ha van kedved, akkor böngészhetsz a Horváth Zoltán összes hirdetése között, vagy akár a/az Egylet.hu összes hirdetése között is.

