Eladó műhely - Üllő
- INGYENES HIRDETÉS FELADÁS
Ingatlan adatai
- Eladó vagy kiadó:Eladó
- Település:Üllő
- Kategória:Ipari ingatlan
- Alkategória:Műhely
- Alapterület:150 m2
- Telekterület:nincs megadva
- Csere is:Nem
- Hirdető:Cég
- Élő videón megtekinthető:Nem
- Építés éve:2025
- Hány szintes az ingatlan:nincs megadva
- Hányadik emeleti:nincs megadva
- Parkolási lehetőség:nincs megadva
- Energiatanúsítvány:nincs megadva
- Villany:nincs megadva
- Víz:nincs megadva
- Gáz:nincs megadva
- Csatorna:nincs megadva
- Kapcsolatfelvétel

Aczél Adrienn
+36-(20)-488-1084
Mondd meg a hirdetőnek, hogy a megveszLAK-on találtad a hirdetést.
Referencia szám: IP086491
Hitel ajánlatok
Ingatlan hirdetés leírása
Eladó ipari, Üllő, Eladó műhely - Üllő
Üllőn Új építésű iroda és raktárcsarnok vállalkozóknak, befektetőknek eladó!
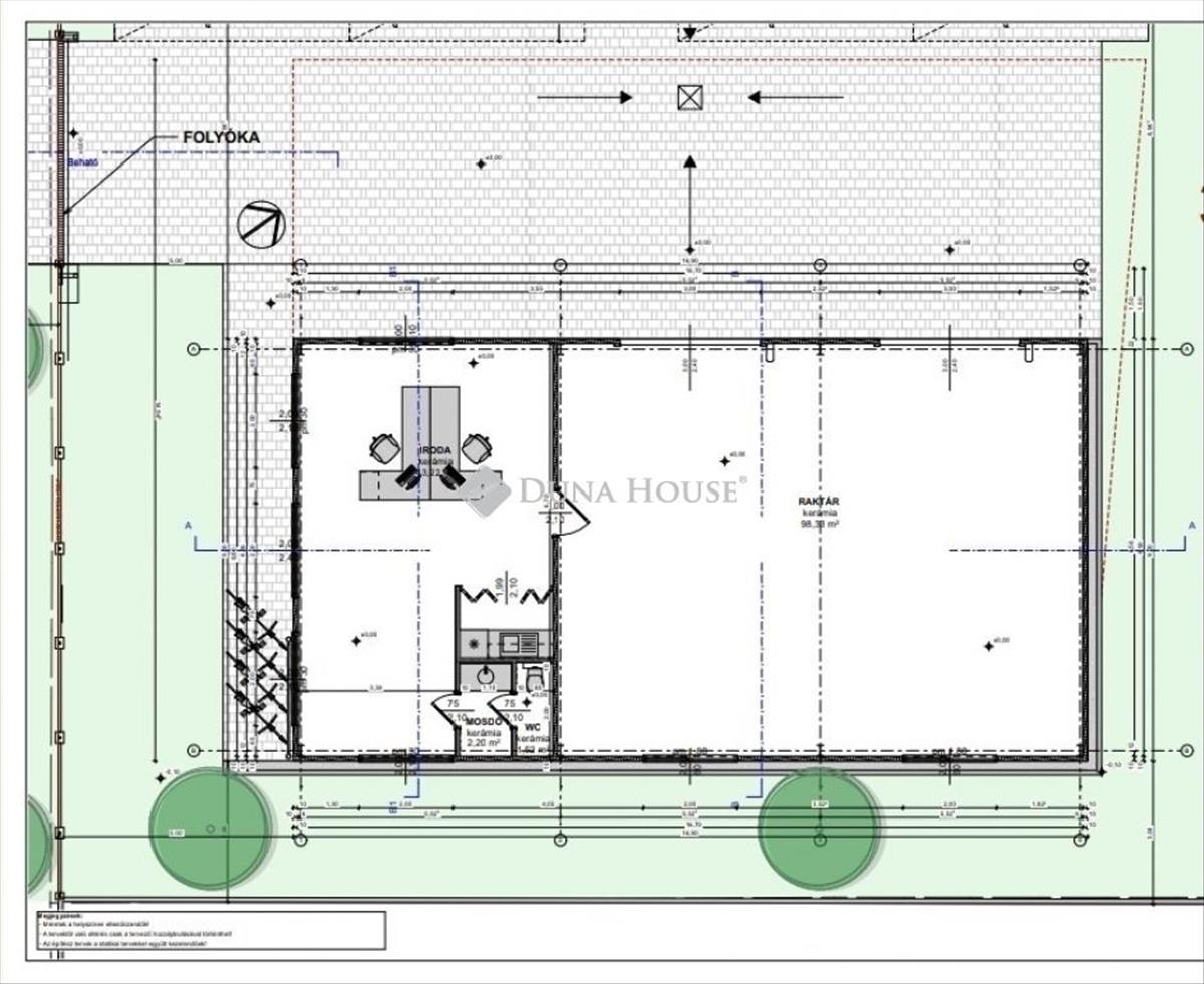
Üllő belterületén, kiváló közlekedési adottságokkal rendelkező részen, 600 m²-es telken kínálunk eladásra egy 150 m²-es, modern raktárcsarnokot mely egy 50 m²-es irodaépületet is magába foglal, amelyek átadása : 2026. Q3 - ban várható.
Ez az ingatlan tökéletes választás lehet kereskedelmi, logisztikai, szolgáltató vagy gyártó vállalkozások számára, akik modern, alacsony fenntartású és hosszú távon értékálló telephelyet keresnek.
Továbbá kiemelkedő befektetési lehetőség is, hiszen a lokáció és a műszaki tartalom miatt hosszú távon, stabilan bérbe adható, így rendszeres hozamot biztosíthat tulajdonosának.
Iroda + csarnok kombináció = sokféle tevékenységre teszi alkalmassá. !
Üllő elhelyezkedése (Budapest közelsége, autópálya, logisztikai csomópont) kiemelten keresetté teszi a kis- és középvállalkozások körében.
Az ingatlan jellemzői:
Korszerű, öntartó ipe 200 acélszerkezet,
10 cm-es pir tűzálló szendvicspanel falazat,
Fűtött iroda és csarnok, 5 kW-os Fujitsu inverteres klímával,
Napelem kiállás előkészítve,
Modern kamerarendszer és riasztó telepítés,
2 db ipari kapu (3×2 m),
Belmagasság: 5, 5 méter, ideális raktározáshoz vagy gyártási tevékenységhez.
Irodai rész:
50 m²-es irodaépület nagy ablakokkal,
Teakonyha és mosdó kialakítás,
Opcionálisan további 30 m² tárgyaló vagy iroda kialakítható az emeleti szinten,
Belső elrendezés jelenleg még igény szerint alakítható.
Külső környezet:
220 m² térkövezett burkolat,
230 m² rendezett zöldterület.
Közműellátottság: víz, villany, csatorna.
Az ár nettó ár!
Érdeklődés vagy megtekintési szándék esetén várom hívását, nézzük meg együtt!
Aczél Adrienn, Tel. : +36/20 488 1084 E-mail: aczel. Adrienn@dh. Hu
A Duna House teljes kínálatával kapcsolatban forduljon hozzám bizalommal.
Hitelügyintézés a legjobb feltételekkel és a leggyorsabban.
Eladás és vétel teljes körű ügyintézése, ingyenes tanácsadás, értékbecslés, megbízható ügyvédi háttér biztosítása.
Nézze meg facebook értékesítői oldalamat, ahol az új megbízásainkat láthatja és hasznos tippeket olvashat.
Https://www. Facebook. Com/misianadrienn
Referencia szám: ip086491 Hitel.hu - Hasonlítsa össze a bankok lakáshitel ajánlatait
Tetszett ez az eladó Üllői ipari ingatlan? Hívd fel a hirdetőt most, és tudj meg mindent erről az eladó ipari ingatlanról! Ha gondolod nézelődj tovább az eladó ipari ingatlan Üllő oldal hirdetései között.
Az eladó ipari ingatlanok menüpontban további hirdetések között is böngészhetsz. Ha van kedved, akkor böngészhetsz a Aczél Adrienn összes hirdetése között, vagy akár a/az Duna House Villa Gyömrő összes hirdetése között is.

