Eladó átlagos állapotú panel lakás - Budapest III. kerület
- INGYENES HIRDETÉS FELADÁS
Ingatlan adatai
- Eladó vagy kiadó:Eladó
- Település:Budapest III. kerület
- Kategória:Lakás
- Alkategória:Panel
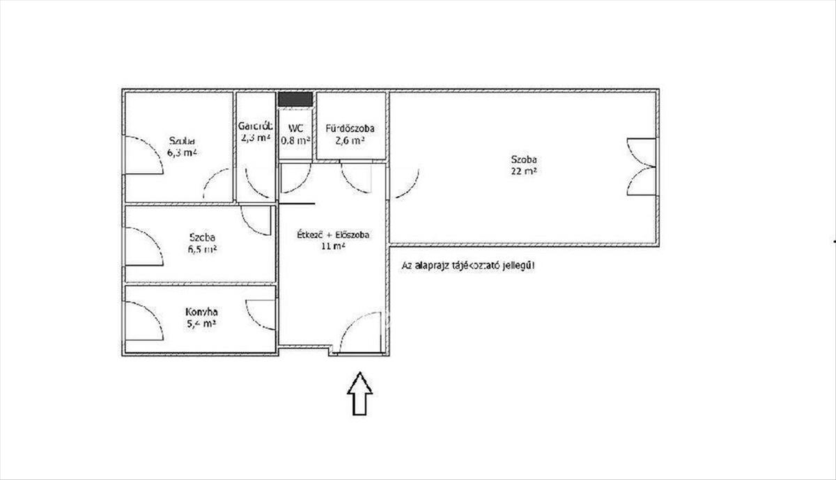
- Alapterület:57 m2
- Csere is:Nem
- Hirdető:Cég
- Élő videón megtekinthető:Nem
- Szobaszám:1 + 2 fél
- Állapot:Átlagos állapotú
- Hány szintes az ingatlan:Földszintes
- Komfortosság:nincs megadva
- Hányadik emeleti:10
- Erkély:nincs megadva
- Lift:Van
- Parkolási lehetőség:nincs megadva
- Fűtés:Távfűtés egyedi mérővel
- Bútorozottság:nincs megadva
- Fényviszony:Napfényes
- Tájolás:DNY
- Kilátás:nincs megadva
- Internet:nincs megadva
- Klíma:nincs megadva
- Akadálymentesített:nincs megadva
- Energiatanúsítvány:nincs megadva
- Villany:Van
- Víz:Van
- Gáz:nincs megadva
- Csatorna:Van
- Közös költség:18 000 Ft
- Kapcsolatfelvétel

Hitel ajánlatok
Ingatlan hirdetés leírása
Eladó Lakás, Budapest 3. ker.
Jó állapotú, erkélyes panellakás eladó Békásmegyeren
ENGLISH description BELOW!
Budapest III. kerületében, Békásmegyeren kínálunk megvételre egy 57 nm -es, jó állapotú, kis erkélyes panellakást.
Az ingatlan egy társasház 10. emeletén található, elosztása rendkívül praktikus: nappali és két félszoba, valamint egy külön gardróbhelyiség biztosít kényelmes életteret. a lakás világos, jól kihasználható terekkel rendelkezik, így ideális választás pároknak vagy családoknak is.
Az épület részt vett a panelprogramban, homlokzata rendezett, a közösség folyamatos fejlesztéseket tervez. a társasház jelentős megtakarítással rendelkezik, ezért a közös költség emelkedése a közeljövőben nem várható.
Főbb jellemzők:
57 nm alapterület, nappali + 2 félszoba, 10. emelet, erkély, panelprogramos épület, jó állapot
A lakás műanyag nyílászárókkal rendelkezik, amelyek redőnnyel és rovarhálóval felszereltek. a fűtést és a meleg vizet távhő biztosítja, a radiátorok egyedi mérővel ellátottak, így a rezsi jól tervezhető.
A környék infrastruktúrája kiváló: a közelben oktatási intézmények, üzletek és bevásárlási lehetőségek találhatók, a tömegközlekedés pedig gyors és kényelmes.
Parkolás a ház előtt kialakított parkolóban, közterületen ingyenesen megoldható.
Az ingatlan tehermentes, rövid időn belül birtokba vehető.
Irodánk teljes körű ügyintézéssel áll az eladók és a vevők rendelkezésére. a kiválasztott ingatlan finanszírozásához kedvező hitel- és lízingkonstrukciókat, valamint különböző támogatási lehetőségeket biztosítunk.
További információért vagy megtekintés egyeztetéséhez keressen bizalommal!
>Well-maintained apartment with balcony for sale in Békásmegyer
A 57 sqm apartment with a small balcony is offered for sale in Budapest’s 3rd district, in Békásmegyer.
The property is located on the 10th floor of a residential building and has a practical layout consisting of a living room, two half rooms, and a separate wardrobe/storage room. The apartment offers bright and well-organized living spaces, making it an ideal choice for couples or families.
The building has participated in the panel renovation program and its façade is well-maintained. The condominium has significant financial reserves, therefore no increase in common costs is expected in the near future.
Main features:
57 sqm floor area, living room + 2 half rooms, 10th floor, balcony, panel-renovated building, good condition
The apartment has modern plastic windows equipped with shutters and mosquito screens. Heating and hot water are provided by district heating, with individual meters installed on the radiators.
The surrounding infrastructure is excellent: schools, shops and shopping opportunities are located nearby, while public transport connections are fast and convenient.
Parking is available free of charge in the public parking area in front of the building.
The property is unencumbered and can be occupied within a short time.
Our office provides full assistance for both buyers and sellers, including financing options, mortgage services and legal support.
For more information or to arrange a viewing, please feel free to contact us.
Referencia szám: m324741-ml FIX 3% lakáshitelre megvehető
Tetszett ez az eladó Budapest III. kerületi átlagos állapotú 1 egész és 2 fél szobás panel lakás? Hívd fel a hirdetőt most, és tudj meg mindent erről az eladó panel lakásról! Ha gondolod nézelődj tovább az eladó lakás Budapest III. kerület oldal hirdetései között. Ennek az eladó lakásnak az ára 64900000 Ft és mivel az alapterülete 57 négyzetméter, ezért az átlagos négyzetméterára 1138596 HUF/m2.
Az eladó lakások menüpontban további hirdetések között is böngészhetsz. Az összes eladó budapesti lakás hirdetést tartalmazó oldalon tudsz böngészni. Ha van kedved, akkor böngészhetsz a Gregoryan Artur összes hirdetése között, vagy akár a/az OTPip Rácz Ildikó Éva összes hirdetése között is.

