Eladó átlagos állapotú panel lakás - Budapest XV. kerület
- INGYENES HIRDETÉS FELADÁS
Ingatlan adatai
- Eladó vagy kiadó:Eladó
- Település:Budapest XV. kerület
- Kategória:Lakás
- Alkategória:Panel
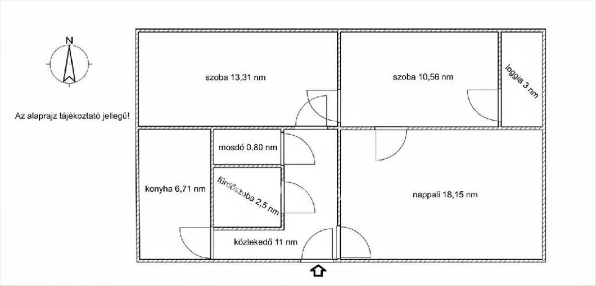
- Alapterület:61 m2
- Csere is:Nem
- Hirdető:Cég
- Élő videón megtekinthető:Nem
- Szobaszám:3
- Állapot:Átlagos állapotú
- Hány szintes az ingatlan:Földszintes
- Komfortosság:nincs megadva
- Hányadik emeleti:3
- Erkély:nincs megadva
- Lift:Van
- Parkolási lehetőség:nincs megadva
- Fűtés:Távfűtés egyedi mérővel
- Bútorozottság:nincs megadva
- Fényviszony:Jó
- Tájolás:nincs megadva
- Kilátás:nincs megadva
- Internet:nincs megadva
- Klíma:nincs megadva
- Akadálymentesített:nincs megadva
- Energiatanúsítvány:nincs megadva
- Villany:Van
- Víz:Van
- Gáz:nincs megadva
- Csatorna:Van
- Közös költség:13 000 Ft
- Kapcsolatfelvétel

Hitel ajánlatok
Ingatlan hirdetés leírása
Eladó Lakás, Budapest 15. ker.
Kiváló adottságú, 3 szobás lakás eladó újpalotán! Valósítsa meg ÁLMAIT!
XV. kerület, Drégelyvár utcában eladó egy 61 nm -es panellakás. Az ingatlan szerkezetileg rendben van, a nyílászárók cseréje megtörtént, a fűtés távhő egyedi méréssel, az alacsony rezsiköltségek maguktól értetődőek!
A lakás közepes állapotú, a teljes értékű komfortérzethez némi felújítást igényelhet, de abszolút lakható állapotban van, így akár fokozatosan is csinosítható. a fürdőszoba újszerű állapotban van, a műanyag nyílászárók és radiátorok modernek és szépek. Redőnyök is fel lettek szerelve. Tavaly nyáron tisztasági festés is történt.
A lakás egyik fele az utcára, a másik fele pedig csendes és parkos zöldövezetre néz.
A 10 emeletes társasház tiszta, rendezett, liftes és számkódos beléptetőrendszerrel védett. a környék igazi zöldövezeti paradicsom: parkok, játszóterek, minden adott, amire szüksége lehet!
Befektetésnek is kiváló, hiszen a környék és az elosztás miatt könnyen kiadható, egy tisztasági festés és kisebb korszerűsítés után pedig az értékállósága hosszú távon garantált.
A lakás megfelel az otthon start program feltételeinek!
Az OTP Ingatlanpont teljes körű ügyintézéssel áll az eladók és a vevők rendelkezésére. a kínálatunkból választott ingatlan finanszírozásához kedvezményes hitelkonstrukciót kínálunk. Az adásvételi szerződés megkötéséhez igény szerint megbízható ügyvédi közreműködést biztosítunk, és segítséget nyújtunk az adásvételhez kapcsolódó ügyek intézéséhez is. FIX 3% lakáshitelre megvehető
Tetszett ez az eladó Budapest XV. kerületi átlagos állapotú 3 szobás panel lakás? Hívd fel a hirdetőt most, és tudj meg mindent erről az eladó panel lakásról! Ha gondolod nézelődj tovább az eladó lakás Budapest XV. kerület oldal hirdetései között. Ennek az eladó lakásnak az ára 64900000 Ft és mivel az alapterülete 61 négyzetméter, ezért az átlagos négyzetméterára 1063934 HUF/m2.
Az eladó lakások menüpontban további hirdetések között is böngészhetsz. Az összes eladó budapesti lakás hirdetést tartalmazó oldalon tudsz böngészni. Ha van kedved, akkor böngészhetsz a Markesz András összes hirdetése között, vagy akár a/az OTPip Jászberény Lehel Vezér tér 13 - OTP Ingatlanpont Iroda összes hirdetése között is.

